578
9
0
Nytt hus i Ytong
22
0
Kjære dyktige, kreative og kritiske medlemmer av Byggebolig
Vi (familie på 4) planlegger nytt hus og kan trenge innspill på både planløsning og fasade. Vi er fornøyde med tegningene, men ønsker allikevel tilbakemeldinger før vi sender ut nabovarsler og byggesøknad.
Noen ord om hus og tomt:
- Tomten er på 2 mål og relativ flat.
- Huset vil ha utsikt fra andre etasje mot en liten fjord mot øst og hagen/skog mot vest.
- Åpen himling i stue og kjøkken.
- Utleiedel i første etasje.
- Det lille grå "huset" på tegningene er en liten hytte som skal bli stående på tomten.
- Huset skal etter planen bygges i Ytong, men med "vedlikeholdsfri" trekledning.
- Store tak mot sør for fremtidig solpanel/solfanger
Håper på mange svar og takker på forhånd for hjelpen.
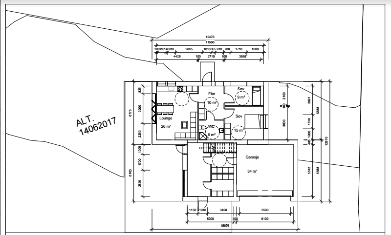
Første etasje:

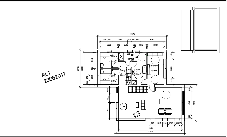
Andre etasje:

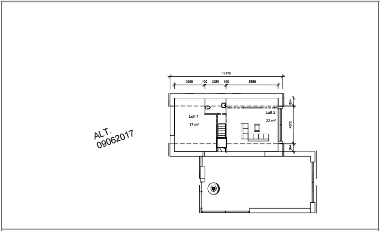
Loft:

Stue sett fra kjøkkenet i andre etasje:

Fasade, sørøst:

Fasade, sørvest:

Fasade, vest:

Fasade, øst:

Vi (familie på 4) planlegger nytt hus og kan trenge innspill på både planløsning og fasade. Vi er fornøyde med tegningene, men ønsker allikevel tilbakemeldinger før vi sender ut nabovarsler og byggesøknad.
Noen ord om hus og tomt:
- Tomten er på 2 mål og relativ flat.
- Huset vil ha utsikt fra andre etasje mot en liten fjord mot øst og hagen/skog mot vest.
- Åpen himling i stue og kjøkken.
- Utleiedel i første etasje.
- Det lille grå "huset" på tegningene er en liten hytte som skal bli stående på tomten.
- Huset skal etter planen bygges i Ytong, men med "vedlikeholdsfri" trekledning.
- Store tak mot sør for fremtidig solpanel/solfanger
Håper på mange svar og takker på forhånd for hjelpen.
Første etasje:

Andre etasje:

Loft:

Stue sett fra kjøkkenet i andre etasje:

Fasade, sørøst:

Fasade, sørvest:

Fasade, vest:

Fasade, øst:

Soverommene til barna virker også noe små, da det ved første øyekast ikke ser ut til å finnes noen alternaltive rom for barn når de blir litt eldre. Gjester må også bruke badet som går inn til deres soverom. Husk at det skjelde t er særlig lydtett med dagens balanserte ventilasjon.