938
12
0
Innspill på planløsning - tradisjonelt/herskapelig hus på skråtomt
6
0
Hei.
Vi er et ungt par som snart skal i gang med å bygge vårt første hus. Mange forteller oss at en skal ha bygget noen hus for å vite hva som er de gode, praktiske løsningene på plantegningene. Derfor ønsker vi oss noen innspill på den foreløpige planløsningen vår.
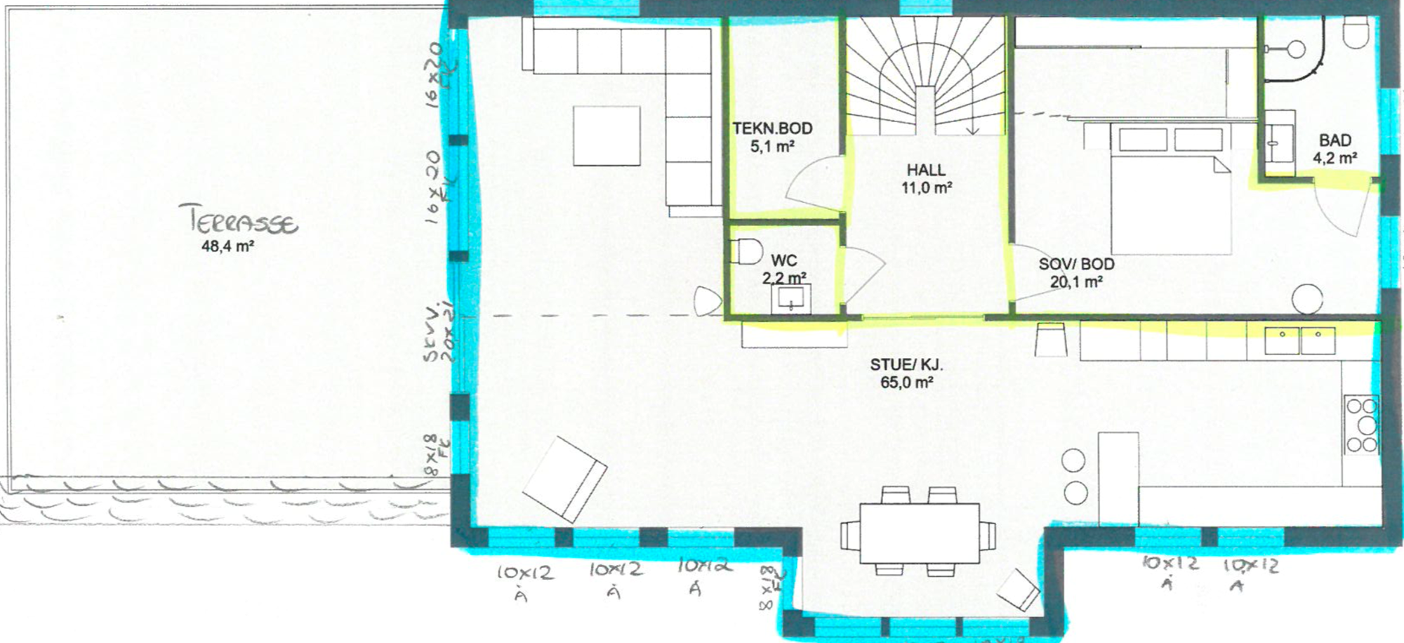
Kort om huset: Det er et tradisjonelt/herskapelig hus, et tilpasset Ekeberg fra Systemhus (https://www.systemhus.no/husmodell-ekeberg). Det skal stå på en skråtomt, med garasjen mot sør(/sørøst) og inngang i sokkeletasjen. Stuen i andre etasje lagt mot "solsiden" av huset. På vestsiden er det vegetasjon og en liten haug med støygjerde. Innkjørselen er på øst-siden, og kommer opp langs huset og ned til garasjeporten.
Vi er enda ikke helt sikre på hvordan soverom med garderobe skal løses i 2. etasje, dette er et av forslagene vi ser på.
Soverommene i sokkeletasjen vil inntil videre bli brukt som kontor og hobby-/musikkrom, men tanken er jo at de skal bli barnerom en gang.
På forhånd, takk for tanker og innspill!

Vi er et ungt par som snart skal i gang med å bygge vårt første hus. Mange forteller oss at en skal ha bygget noen hus for å vite hva som er de gode, praktiske løsningene på plantegningene. Derfor ønsker vi oss noen innspill på den foreløpige planløsningen vår.
Kort om huset: Det er et tradisjonelt/herskapelig hus, et tilpasset Ekeberg fra Systemhus (https://www.systemhus.no/husmodell-ekeberg). Det skal stå på en skråtomt, med garasjen mot sør(/sørøst) og inngang i sokkeletasjen. Stuen i andre etasje lagt mot "solsiden" av huset. På vestsiden er det vegetasjon og en liten haug med støygjerde. Innkjørselen er på øst-siden, og kommer opp langs huset og ned til garasjeporten.
Vi er enda ikke helt sikre på hvordan soverom med garderobe skal løses i 2. etasje, dette er et av forslagene vi ser på.
Soverommene i sokkeletasjen vil inntil videre bli brukt som kontor og hobby-/musikkrom, men tanken er jo at de skal bli barnerom en gang.
På forhånd, takk for tanker og innspill!

Og mulig veldig mange kvadratmeter er brukt til hall? Kan få større soverom 1 og 2 hvis denne begrenses og boden flyttes noe?
Det er mulig. Det kommer jo litt an på hvor stor bil vi kjøper - foreløpig har vi én. Dersom vi skulle trenge plass til to "lange" biler har vi parkering utenfor huset også. Tror det er mest praktisk å plassere sportsboden i garasjen, men vi kan jo vurdere det en gang til.
Vi har også tenkt at det er mye plass som går til hallen i sokkeletasjen. Én løsning er å slå boden sammen med Soverom 1. Hvordan kunne vi ellers ha løst det?
Da jeg var i endringsmøte for huset jeg bygget i fjor sa jeg at jeg ville ha lagt til en bod ved siden av trappa her, så foreslo utbygger å utvide den inn under trappa. Ble ganske fornøyd med resultatet: 1, 2
Når du har flytta boden kan du som du er inne på trekke soverom 1 helt opp til vaskerommet. Hvis du synes vaskerommet blir for lite så går det vel også an å trekke det litt nedover.
I forhold til sportsboden så ville jeg ha foretrukket å utelate den helt. Garasjen i seg selv funker jo fint til oppbevaring, så det virker unødvendig å bygge et eget oppbevaringsrom inni den. Er det slik at en garasje ikke kan oppfylle kravet i TEK17 om ikke sportsboden bygges som et eget rom inni den?
Takk, det var en god løsning! Hallen blir mindre, og vi "får" arealet under trappen - det skal vi absolutt vurdere.
Ang. sportsboden tror jeg det er riktig at garasjen ikke kan oppfylle sportsbod-kravene i TEK17, men jeg skal få dobbeltsjekket dette. Enig i at det virker unødvendig, det hadde vært bedre å ha hele garasjen til fri disposisjon.
-f
Takk for forslag! Plassering av kjøkkenet er noe av det vi har vært mest usikre på. Grunnen til at vi har plassert det slik som på tegningen, er at vi da får en stue med sol og utsikt - vegger mot sør og vest. På veggen mot terrassen har vi planlagt å ha store vinduer, og også et par vinduer på vestveggen. Ved å flytte på kjøkkenet ville vi tape mye sollys, så vi tenkte dette veide tyngre enn å ha kortere vei mellom kjøkken og terrasse.
Vi ville jo gjerne redusert gang-arealet, men har ikke kommet på noen bedre løsninger enda. Hadde du noe i tankene?
Vi har 10x14 i annen etasje og 10x18 i første, og de er smale. Det er innbyggingsmål som oppgis, så de er mindre når de er montert. Riktignok har vi krysspostvinduer hvor kryssposten tar veldig mye plass, men jeg skulle virkelig ønske meg 10 cm bredere vinduer.
Ang planløsning ville jeg prøvd å bli kvitt mer gang. Jeg brukte over et år på planløsninger, og å få bort veldig mye gangareal er noe av det jeg er mest fornøyd med.
Kan du gjøre noe på høyresiden nede?
Kanskje du kan teste å flytte den til sov3/kjøkken med bad/teknisk rom og sånn lenger «bak ? Du kan da ha kjøkken/sov3 der trappa er i dag. Da kan du ha en fin åpen løsning på kjøkken og spisestue mot vinduene i stua = fin utsikt.
Synes kjøkkenet er veldig smalt også, pas på at det ikke føles trangt i 2 etasje.
Har du tegnet huset i roomsketcher? Da kan du testmøblere og se huset i 3D - utrolig nyttig!
Takk for innspill. Trappen må ikke nødvendigvis være motsatt av inngangsdøren, men vi må ha soverommene "frem" for å få dekket krav om lys. Dette begrenser mulighetene våre litt, men jeg ser absolutt for meg det du foreslår - skal se på det!
Vi skal få en 3D-"omvisning" i denne plantegningen, da får vi kanskje en følelse av plassforholdene på kjøkkenet.
Roomsketcher er helt topp! Vi har ikke brukt det selv så mye enda, mest fått det demonstrert. Skal prøve å tegne dette inn, og se på løsningen du foreslo!