328
1
0
Innspill på plantegning
7
0
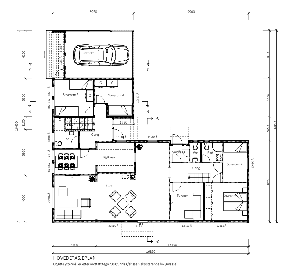
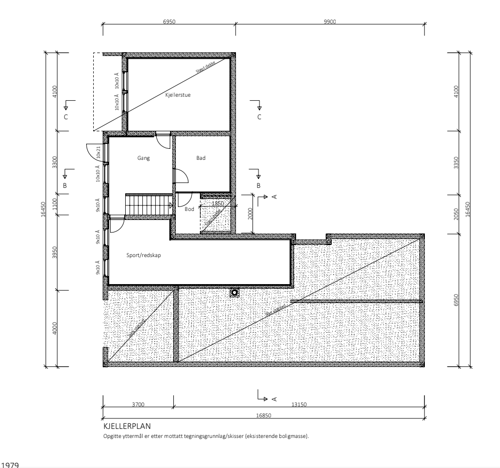
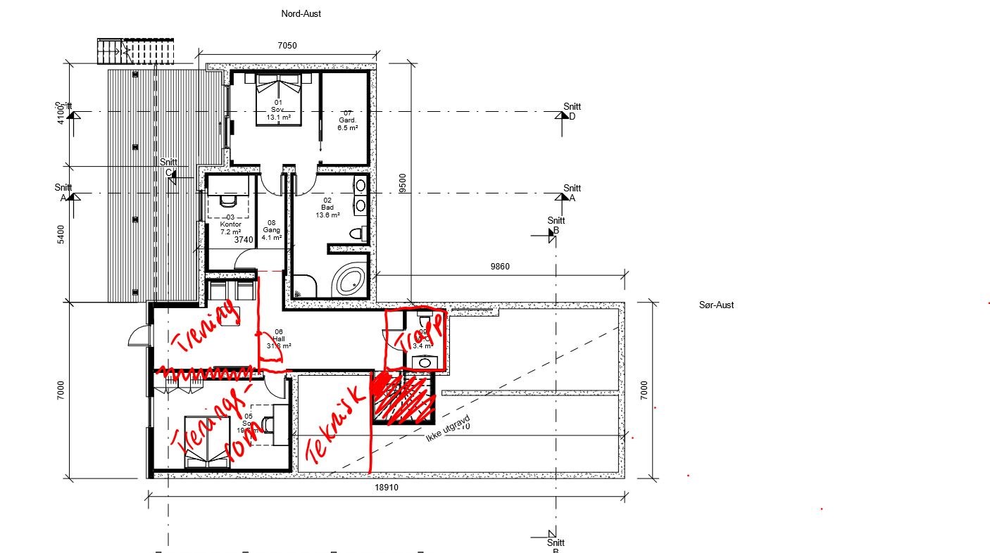
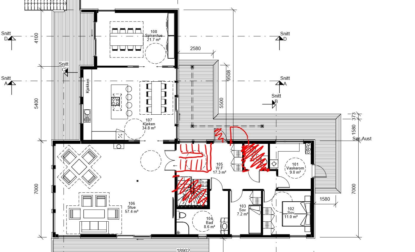
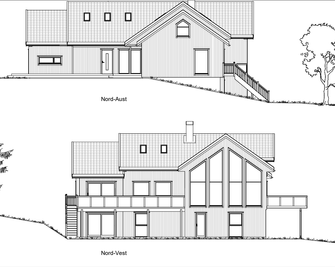
Vi skal til å renovere hus fra 1960 tallet og ønsker innspill på løsninger. Er spesielt usikker på kjøkken og spisestue. Noen endringer på renoeringstegninger er markert med rødt, blant annet flyttet på trappen. Legger også ved tegninger slik huset ser ut i dag. Vi har utsikt mot Sør-vest og delvis Nord-Aust. Ingen nærme naboer.
Setter stor pris på innspill!




Setter stor pris på innspill!




Nordly
(trådstarter)
7
0
Legger ved fasadetegninger også

