114
0
0
Innspill til plan og fasade
2
0
Hei,
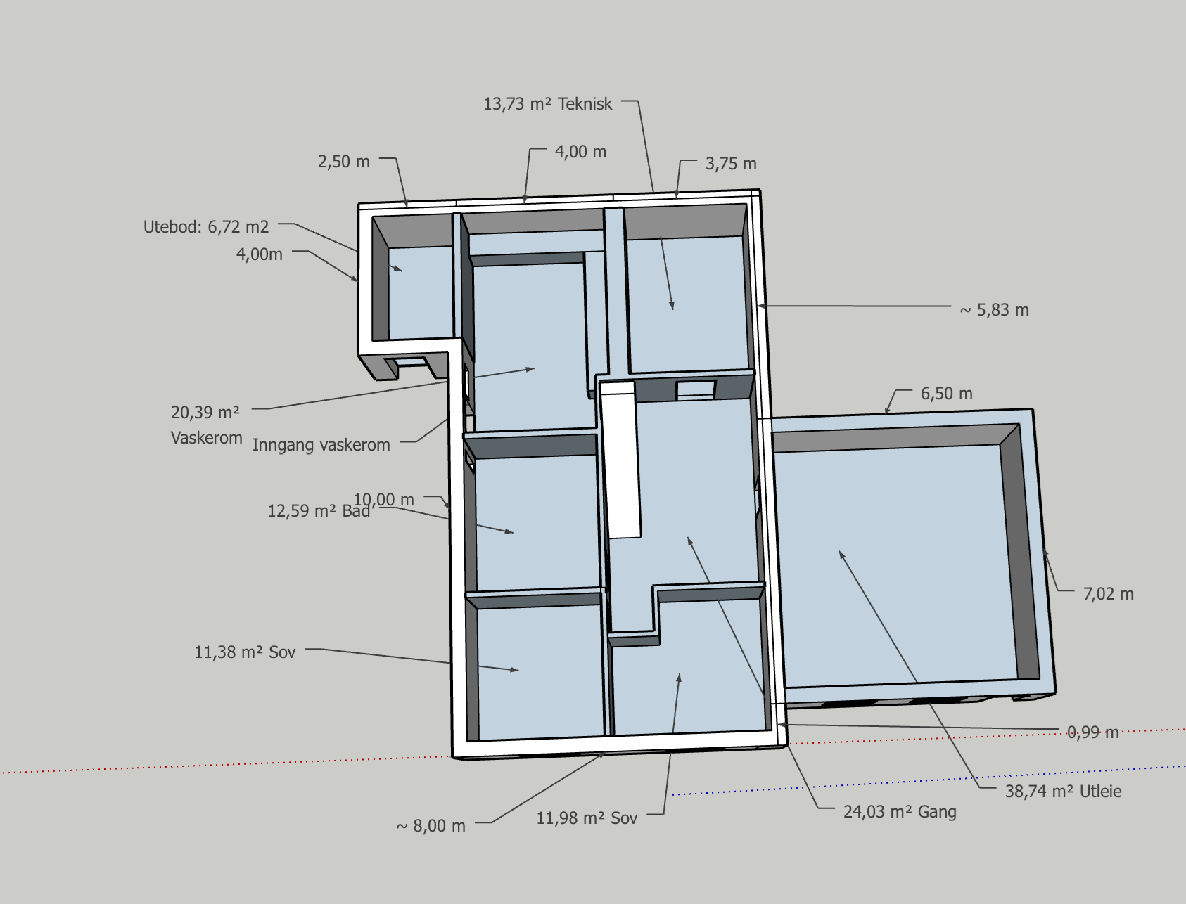
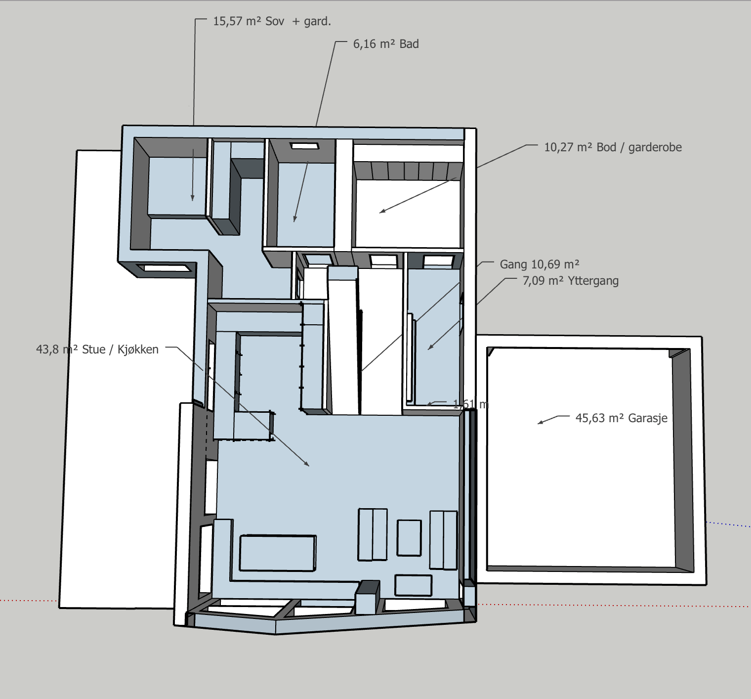
Setter stor pris på innspill til disse skissene. Både plan og fasade. Noe umiddelbart dere tenker at burde endres?
- Huset har vi tenkt å legge inn i skrått terreng med parkering i garasje ved hovedinngang. - Har også tenkt inngang på baksiden direkte inn på vaskerom
- Vi er en familie på fire (2 og 0 år)
På forhånd takk for hjelpen :)






Setter stor pris på innspill til disse skissene. Både plan og fasade. Noe umiddelbart dere tenker at burde endres?
- Huset har vi tenkt å legge inn i skrått terreng med parkering i garasje ved hovedinngang. - Har også tenkt inngang på baksiden direkte inn på vaskerom
- Vi er en familie på fire (2 og 0 år)
På forhånd takk for hjelpen :)






