164
2
0
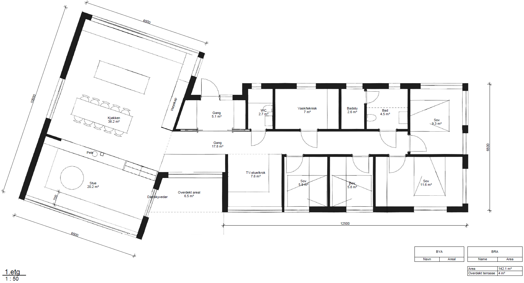
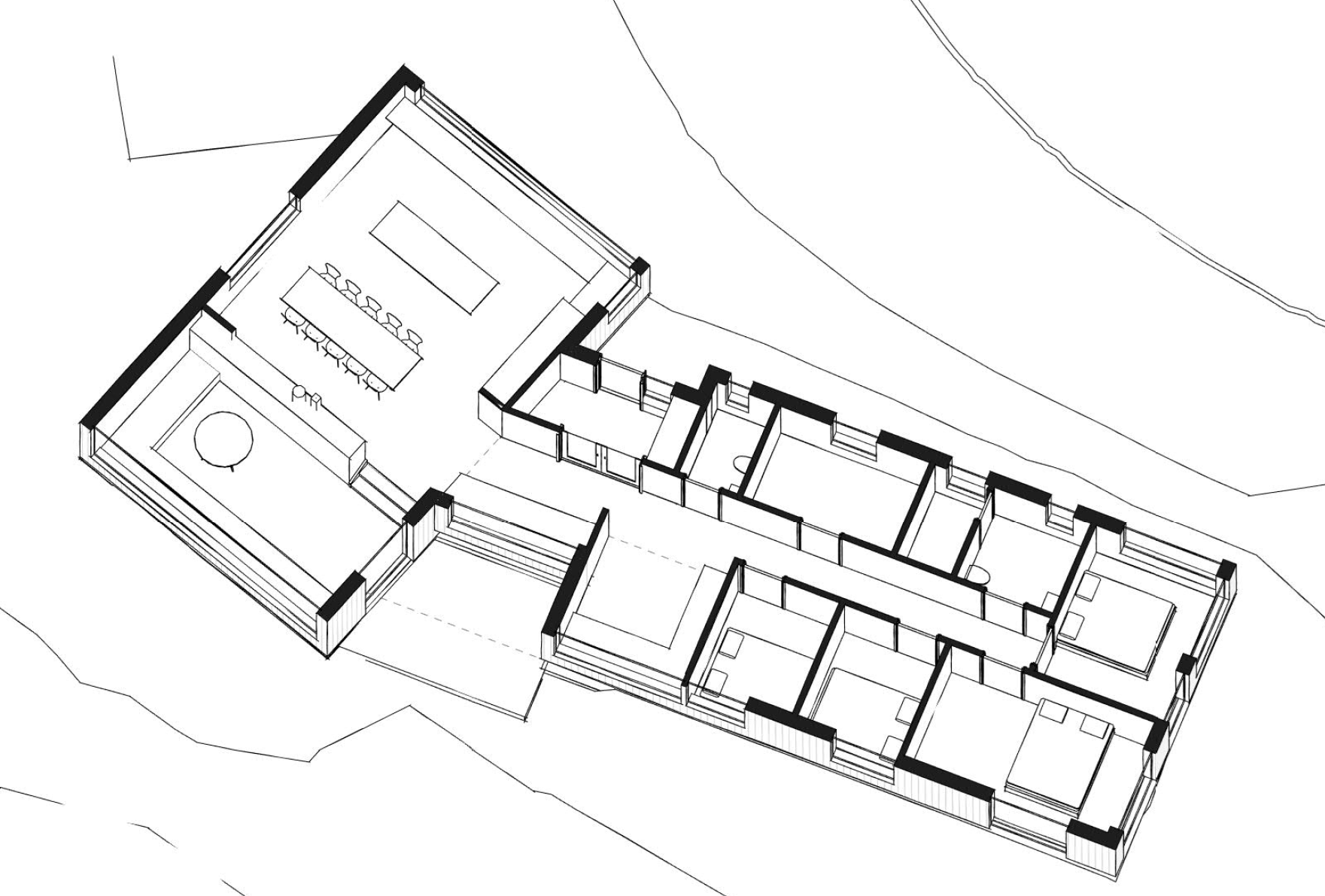
Moderne fjellhytte - ca 142 kvm. Innspill
81
0
Hei,
Vi er i gang med prosjektering av en moderne fjellhytte på ca 142 kvm på et plan.
Vi har fått noen grove første skisser fra arkitekt som vi i all hovedsak er svært fornøyd med.
Ønsker innspill på planløsningen. Er det noe vi har oversett? Er det en velfungerende planløsning?
Noen momenter:

Vi er i gang med prosjektering av en moderne fjellhytte på ca 142 kvm på et plan.
Vi har fått noen grove første skisser fra arkitekt som vi i all hovedsak er svært fornøyd med.
Ønsker innspill på planløsningen. Er det noe vi har oversett? Er det en velfungerende planløsning?
Noen momenter:
- Ingen dedikert bod inne (planen er å ha et egen bod utendørs)
- De to små soverommene er kun ment som soverom (ikke oppholdsrom - så derfor er de små)
- Møblement er kun for illustrasjon (i TV krok blir det nok ikke en hjørneløsning)

Forøvrig kule skisser. Regner med jeg vet hvilken hytte dette er…
Naboen jo
Godt tips forøvrig! Tidligere var WC tilgjengelig fra GANG via en dør - men da mistet vi mye veggplass samt at WC ble litt i minste laget (vi skal ha en dusj i tillegg). Så vi ble enige med ark. å flytte ved siden av for å få plass til dusj samt litt større areal i gangen. Men du har absolutt et poeng med å kunne ha lett tilgang til vaskerom. Skal drodle litt med arkitekt å se hva vi finner ut.
Takk!