6,903
42
5
Påbygg på en funkis enebolig.
200
0
Hei,
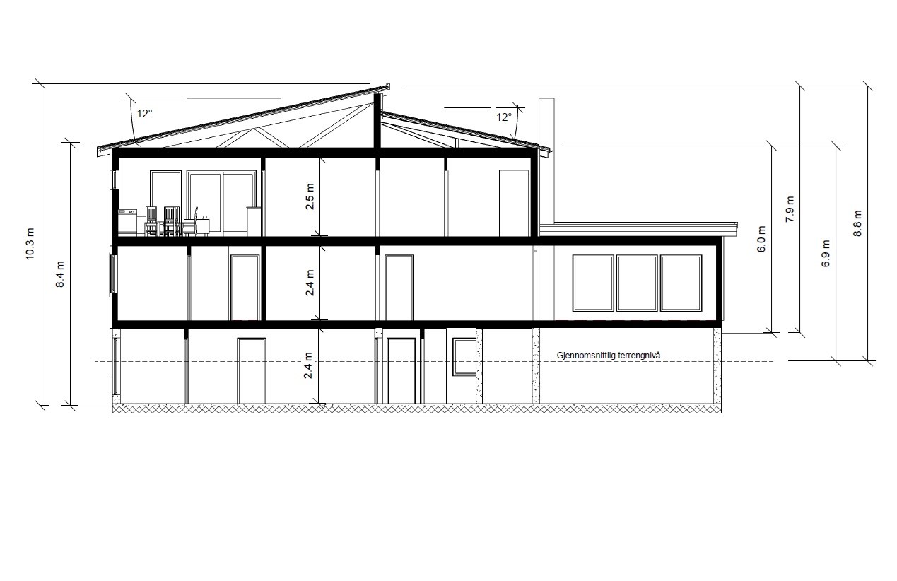
Har et enebolig med funkis stil. Det er en sokkeletasje og en hovedetasje. Idag er det en flat tak fra 1970 da huset ble bygd og det er på høy tid å få et nytt tak.

Vi tenker å bruke anledningen til å bygge på en etasje. Har vært i forhåndskonferanse med kommune hvor de er åpent for det og fant ut at maks mønehøyde er 11meter og gesimshøyde 7meter.
Vi har selvsagt leidd inn en arkitekt og har fått følgende tegninger:
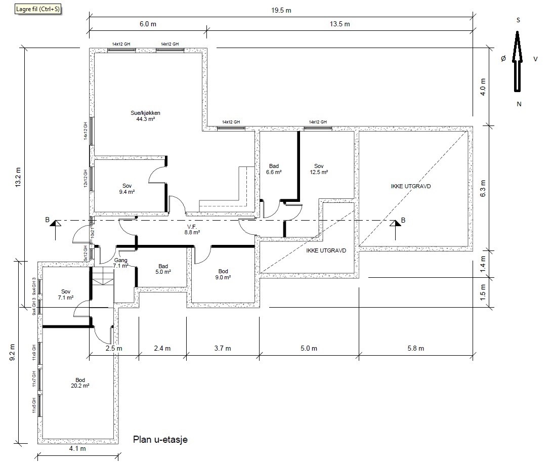
1. Sokkeletasjen som leies ut

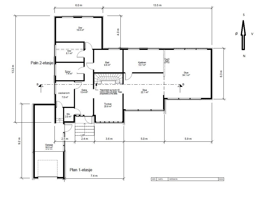
2. Hovedetasjen hvor vi bor nå.

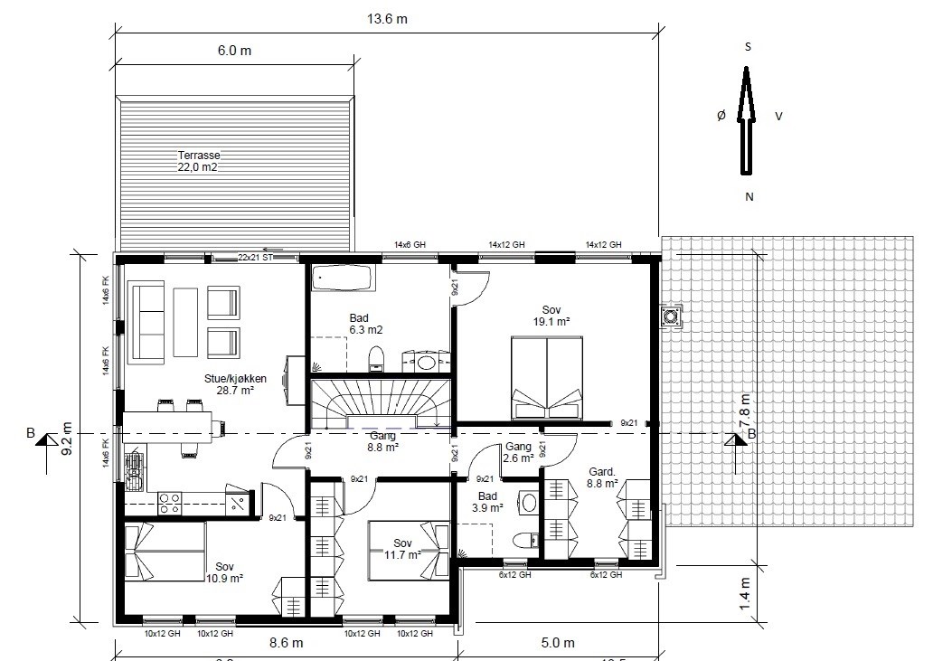
3. Forslag på 2.etg fra arkitekten.

Har merket retninger på alle tre tegninger. Mot sør er det hav så der er det best utsikt.
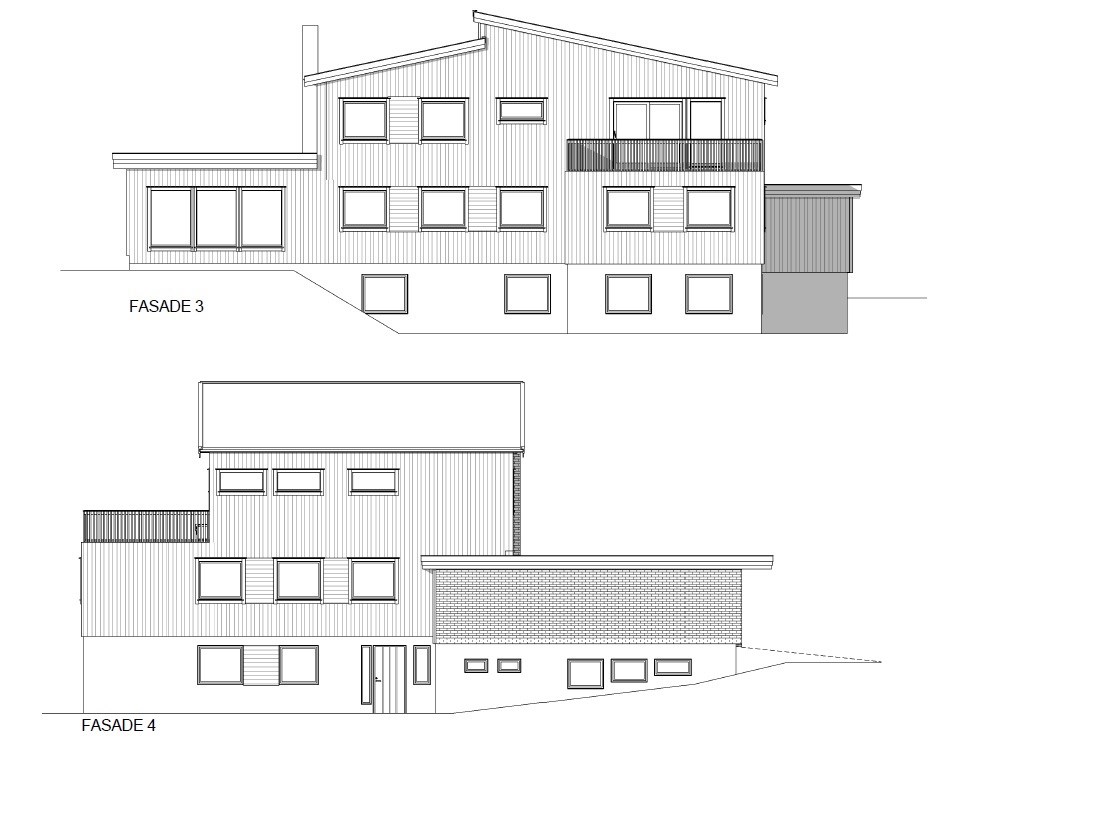
Har også 2 forslag fra arkitekt på takutforming. Jeg har ikke lyst på flattak siden det er forbundet med mer vannskade og jeg må ha varmekabel i sluk som tar mye strøm.
Pulttak:


Saltak:


Vi planlegger å få barn og våre foreldre er blitt gammel så vi har tenkt at de kan bo på hovedetasjen mens vi skal bo på påbygget. Vi ønsker spesielt tilbakemelding på planløsning på påbygg og takutforming. Når det gjelder tak så har vi også spørsmål ift konstruksjon. Vi har ikke så mye råd nå men vil gjerne legge til rette for at det kan bli en loftstue til barna der i fremtiden
Sokkeletasjen skal leie ut og vi ønsker så lite endring på eksisterende bygg som mulig.
Har et enebolig med funkis stil. Det er en sokkeletasje og en hovedetasje. Idag er det en flat tak fra 1970 da huset ble bygd og det er på høy tid å få et nytt tak.

Vi tenker å bruke anledningen til å bygge på en etasje. Har vært i forhåndskonferanse med kommune hvor de er åpent for det og fant ut at maks mønehøyde er 11meter og gesimshøyde 7meter.
Vi har selvsagt leidd inn en arkitekt og har fått følgende tegninger:
1. Sokkeletasjen som leies ut

2. Hovedetasjen hvor vi bor nå.

3. Forslag på 2.etg fra arkitekten.

Har merket retninger på alle tre tegninger. Mot sør er det hav så der er det best utsikt.
Har også 2 forslag fra arkitekt på takutforming. Jeg har ikke lyst på flattak siden det er forbundet med mer vannskade og jeg må ha varmekabel i sluk som tar mye strøm.
Pulttak:


Saltak:


Vi planlegger å få barn og våre foreldre er blitt gammel så vi har tenkt at de kan bo på hovedetasjen mens vi skal bo på påbygget. Vi ønsker spesielt tilbakemelding på planløsning på påbygg og takutforming. Når det gjelder tak så har vi også spørsmål ift konstruksjon. Vi har ikke så mye råd nå men vil gjerne legge til rette for at det kan bli en loftstue til barna der i fremtiden
Sokkeletasjen skal leie ut og vi ønsker så lite endring på eksisterende bygg som mulig.
Synes mye gikk bort i gang i den nye etasjen. Synes den gamle hovedetasjen utnytter arealet på en mye bedre måte. Det blir f.eks veldig mye areal som går bort for å komme seg fra ny-stua til det private badet.
Stue-kjøkkenløsningen ser veldig liten ut i forhold til størrelsen på huset, særlig hvis dere ikke fritt disponerer etasjen under. for eksempel disponerer hovedsoverommet over 34 kvm mens fellesarealet for hele familien (i denne etasjen) er 5 kvm mindre.
Jeg vil foreslå:
Tegn huset slik dere ønsker å benytte det, glem foreldrene mens hovedtrekkene av huset tegnes opp.
Tilpass deretter huset slik at foreldrene kan bo i en mer eller mindre adskilt del av huset.
For takløsning synes jeg pulttak (eller skråtak) er det eneste alternativet til flatt tak på dette huset. Merk at pulttak i forhold til definisjonen av en gesims kun har gesimser (men at det ofte behandles som om det har møne på midten)
Synes heller ikke arkitekten har klart å videreføre husets særpregede fasade til den nye etasjen
Litt med tanke på formatet på vinduene, noe rundt plasseringen av noen av dem og noe litt "udefinerbart".
Takk for svar!
Jeg er litt enig med det. Er også veldig usikker på om stue/kjøkken er for liten. Vi tenker at foreldrene skal få lov å bo ned for dere selv og at vi kan komme ned på "besøk" ofte. Vi er glad i dem men av og til blir de for mye av det gode;).
Det har vært våres egen ønske at vi skal ha et stort master bedrom med walking closet og eget bad. Vi har tenkt følgende løsning:
På den måten får vi gangareal inn i stue/kjøkken. Rommet vil jo virke mye større men vi er likevel redd for at vi ikke kan bruke så mye areal der uansett. Det er akkurat ikke mye plass til et spisebord der heller...
Alternativt er jo å flytte kjøkkenet til soverom nederst til venstre...Men da mister vi et soverom...Hva syns dere?
Et annet spørsmål er hvordan innvending konstruksjon på et pulttak bør være for at det kan bli til en varm loft i fremtiden? W-takstoler er billigst ifølge arkitekten men man får vel ikke så mye rom ut av det?O:)
Et kjapt forslag som åpner opp litt:
Det som er gjort, trekke veggen til master badet litt inn, opplever at det gir veldig mye mer rom til stua.
Rekkverk rundt mesteparten av trappa gjør at hele løsningen blir mer åpen
Økt barnebadet bittelitt (på bekostning av walk-in).
Samt åpnet litt mellom Walk-in og soverom.
(Har ikke finjustert for plass til dusj osv...)
Videre er varmekabler da ikke noe en må/bør bekymre seg for til alle årets dager, det vil jo være typisk for en kort periode med mye snø og kulde. (Jeg vet ikke hvor du bor mtp klima, men kostnaden med varmekabel er nok ikke avskrekkende uansett).
Så da er mitt råd og tips at dere beholder mer av det opprinnelige stiluttrykket.
Det ser for meg ut som ett fantastisk funkishus på tegningene, og hele stilen og uttrykket blir rasert av denne arkitekten!
Så utgangspunktet mitt er at jeg ikke kjøper det med å droppe flatt tak. Videre synes jeg hele sjelen på huset forsvant, jeg hadde tegnet det totalt annerledes. Med dette utgangspunktet blir det for meg uinteressant å se på planløsningene... Men innspillene her fra de andre er veldig bra.
wow! Det ser mye bedre ut! Hvorfor har ikke arkitekten kommet på det...
Det som gjør oss usikker på er bæringen. Vi har egentlig null peiling:( Vi ser at da arkitekten tegnet påbygget og satt opp veggene så har hun fulgt linje på vegg under...Går det bra at vegg på påbygget ikke sammenfaller på vegg under? Hvor mye kan de deviere?
Samme gjelder tak. Skjønner at med w stol så blir det kun en kald loft. Arkitekten snakker om at dersom vi skal ha en varm loft så må vi sette opp stolpe som går hele veien fra sokkeletasjen. Da blir det en omfattende arbeid og fort dyrt..Stemmer det? Samtidig så ser jeg slik på nettet
Her er det jo ikke noe stolpe og hvis de bjelkene på begge sider av bildet sammenfaller på bærende vegg under så burde det vel gå bra?? Vi klør oss skikkelig i hodet pga det her altså....;(
Et til bilde som illustrere poenget..ingen stolpe som går midt i gulvet men kun på sidene...
Takk for svar...Vi er kanskje litt for ung enda og har ikke så mye erfaring med barn. Men skal absolutt ha din tips i bakhode.
Tror vår foreldrene kommer til å være "mer glad" i barnebarn enn oss....Så vi tror at fremtidig barn kommer til å henge en god del på 1.etg uansett. Men plan er å gjøre fellesbad større selvsagt;)
Takk for et ærlig svar. Vi har lest den diskusjonen ang flattak vs skråtak. Jeg skjønner veldig godt at dersom flat tak blir gjort ordentlig så lekker det ikke mer enn en skråtak. Men vi har et "problem". Det er ingen flattak rundt huset! Vårt hus er bygd i 1970 og da var det eneste huset i hele området. En entreprenør kjøpte tomta rundt og bygde nye hus omkring og alle med skråtak. Reguleringsplan er kun åpen for skråtak og vi må derfor forholde oss til det...En runde med dispensasjon har vi ikke så lyst å gå gjennom da det vil nesten helt sikkert innebærer et nei fra kommunen.
Hvordan vil du ha tegnet huset da? Noe konkret forslag? Har du tips om en tak konstruksjon som kan gjøre det mulig for en fremtidig varm loft så er vi evig takknemlig også. We are all ears;)