313
0
0
Trenger innspill til planløsning vaskerom/bad
14
0
Vi ønsker å gjøre litt om på planløsningen i 2. etg og setter veldig pris på alle innspill!
Bakgrunnsinfo:
Slik det er i dag er vaskemaskin i en litt fuktig kjeller og det er ingen dusj i 2. etg hvor alle 3 soverom (+ 1 hobbyrom og 1 minisoverom/kott ved bad) befinner seg. Tanken er å bruke minisoverom/kott, dagens bad og toalett og litt av hobbyrommet til å lage nytt vaskerom og bad. Resten av hobbyrom skal bli soverom. Ca 18 m2 er tilgjengelige til vaskerom og bad når det er tatt så mye av hobbyrom som tegningene viser (pipe trukket fra).
Hvilken planløsning tenker du er best, og hva er fordeler ulemper med de ulike?
Har også noen litt mer konkrete spørsmål:
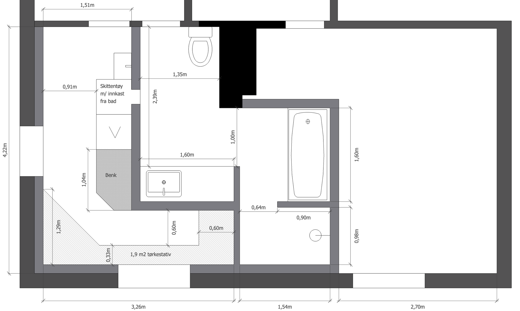
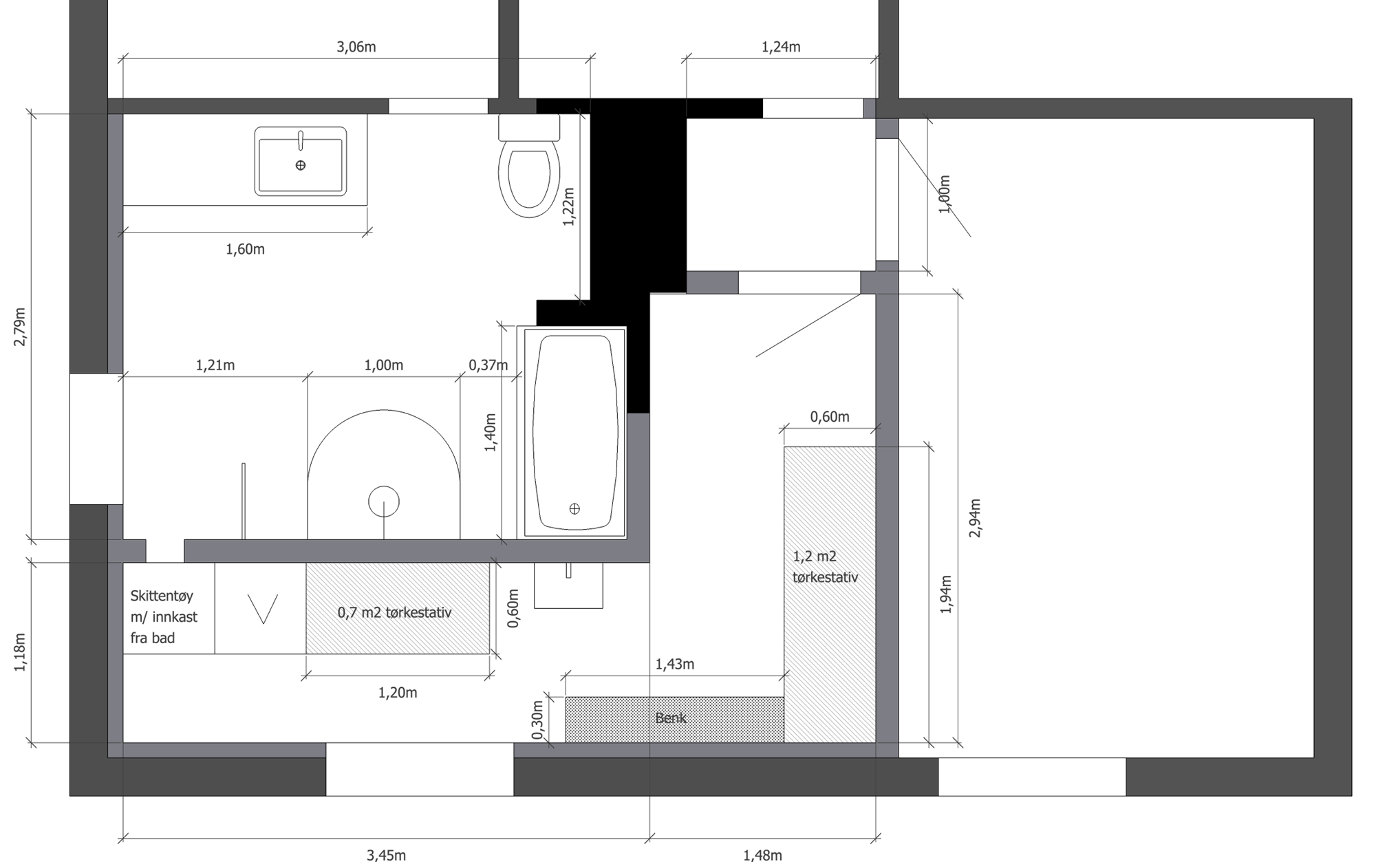
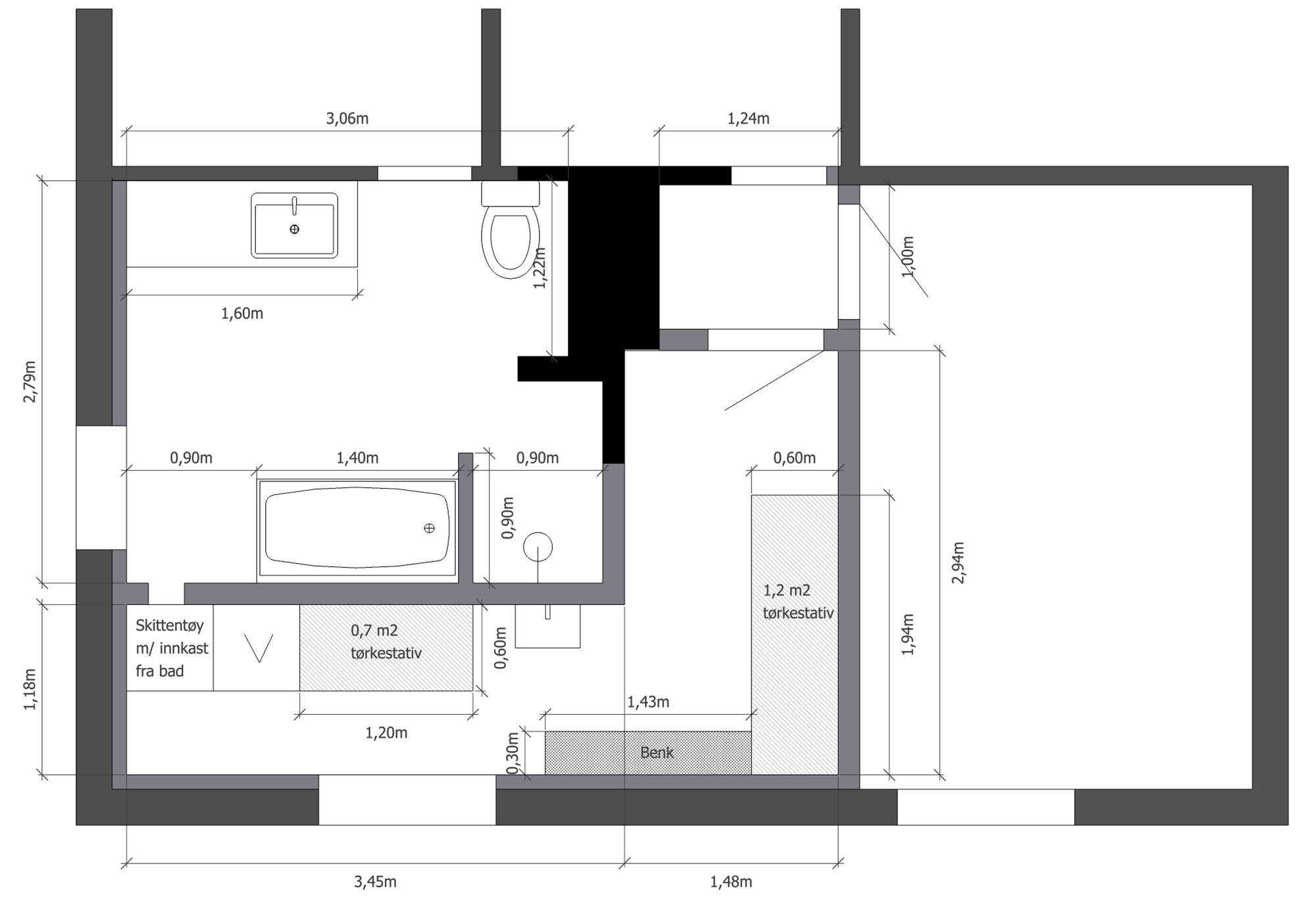
1) Hvor stort tørkeareal trengs på vaskerom? Har nå et frittstående tørkestativ med tørkeareal på i overkant av 1 kvadratmeter og dette holder som oftest akkurat til en vaskemaskin. I alle utkastene er arealet 1,9 m2.
2) Ved dusjnisje (alternativ A og C) uten glassdør, hvor langt unna må håndklær henge for å ikke bli våte?
3) Noen som har erfaring med U-dusj (alternativ B)? Sjeldent jeg ser dette og lurer på om det er en grunn til det utover at det blir mer glass å vaske.
4) Er det problematisk å fjerne (eller erstatte med annen løsning) støttemurer til pipe? I alternativ A er to av støttemurene fjernet.
5) Hva er viktigst å prioritere på små vaskerom? Hva er fallgruvene?
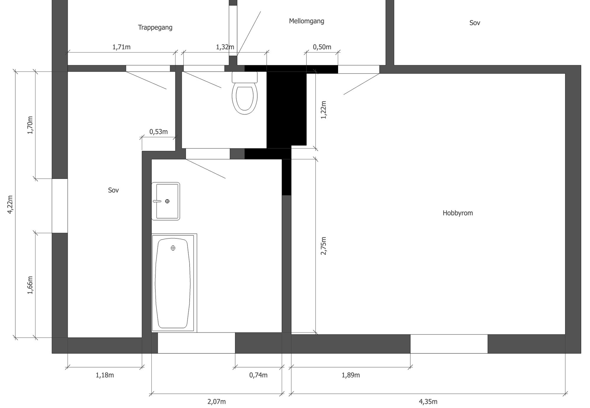
Eksisterende situasjon:

Alternativ A:

Alternativ B:

Alternativ C:

Bakgrunnsinfo:
Slik det er i dag er vaskemaskin i en litt fuktig kjeller og det er ingen dusj i 2. etg hvor alle 3 soverom (+ 1 hobbyrom og 1 minisoverom/kott ved bad) befinner seg. Tanken er å bruke minisoverom/kott, dagens bad og toalett og litt av hobbyrommet til å lage nytt vaskerom og bad. Resten av hobbyrom skal bli soverom. Ca 18 m2 er tilgjengelige til vaskerom og bad når det er tatt så mye av hobbyrom som tegningene viser (pipe trukket fra).
- I 1. etg er det et lite bad med toalett og dusj rett ved inngangsparti.
- Veggen på tvers av huset som skiller minisoverom, bad og hobbyrom mot trappegang, mellomgang og soverom er bærevegg.
- Huset er forøvrig et eldre hus over 2 etg + kjeller med tømmerkasse fra 1798, flyttet og laftet opp igjen i 1916.
- Ca 2 m fra yttervegg venstre skrår taket fra 2,64 m takhøyde til 1,78 m helt inne ved ytterveggen til venstre (takhøyde blir noe lavere etter isolering).
- Vindu i ytterveggen til venstre er relativt lavt, 81 cm over gulv i underkant og 1,34 i overkant.
- I tegningene er boksen merket "V" vaskemaskin (60x60 cm)
- Den sorte boksen i tegningene er pipe og ventilasjonskanal med støttemurer.
- Badekar benyttes i hovedsak av barn, lengde er derfor ikke prioritet.
Hvilken planløsning tenker du er best, og hva er fordeler ulemper med de ulike?
Har også noen litt mer konkrete spørsmål:
1) Hvor stort tørkeareal trengs på vaskerom? Har nå et frittstående tørkestativ med tørkeareal på i overkant av 1 kvadratmeter og dette holder som oftest akkurat til en vaskemaskin. I alle utkastene er arealet 1,9 m2.
2) Ved dusjnisje (alternativ A og C) uten glassdør, hvor langt unna må håndklær henge for å ikke bli våte?
3) Noen som har erfaring med U-dusj (alternativ B)? Sjeldent jeg ser dette og lurer på om det er en grunn til det utover at det blir mer glass å vaske.
4) Er det problematisk å fjerne (eller erstatte med annen løsning) støttemurer til pipe? I alternativ A er to av støttemurene fjernet.
5) Hva er viktigst å prioritere på små vaskerom? Hva er fallgruvene?
Eksisterende situasjon:

Alternativ A:

Alternativ B:

Alternativ C:
