9,377    14    0  

Hvordan innrede badet?

 208     Oslo     0
Vi har kjøpt et prospektert hus, og er så tidlig inne i prosessen at vi kan påvirke rominndeling osv. Det jeg sliter litt med er badet i 2. etasjen. Det vil være 2 X 3,6 meter. Taket skråner slik at det på det laveste vil være 1,6 m. Men det er fin plass til 90X90 dusj på det høyeste.
Det vil være et takvindu som sikkert kan justeres i fht plassering og det samme gjelder døra.

Jeg vil gjerne ha inn vegghengt toalett, servantskap m/speilskap, badekar og dusj. Vil ikke stå og dusje i badekaret.

(Vi skal ha et bad i 1. etasje med dusj også)

Problemet er hvordan jeg skal få plassert dusj og badekar uten at det blir altfor trangt. Er det noen som har tips?

(Både min mann og jeg er litt "store", slik at vi vil gjerne ha et badekar som ikke er altfor trangt. Men kun til en om gangen.. Wink)

   #1
 10,486     Akershus     0
Lag en enkel skisse der du setter inn dør og litt sånt.

HAFA har også en baderomsdesign-sak på sin hjemmeside. Jeg brukte den for å visualisere idéene mine litt da vi pusset opp badet

Se bilde litt ned på side 2
Signatur
   #2
 9,677     Kysten     0
Jeg prøvde å finne hafa, kom inn på en side for et elektrikerfirma. Har du nettadressen?
  (trådstarter)
   #3
 208     Oslo     0
Takk, det var et godt tips. Har prøvde meg frem litt fra før, men synes det er vanskelig å se om det blir god nok plass likevel.

Døra er langs den høyeste langsiden. Men siden det ikke er bygget ennå, så kan jo døra justeres den ene eller andre veien.
   #4
 10,486     Akershus     0

Jeg prøvde å finne hafa, kom inn på en side for et elektrikerfirma. Har du nettadressen?


www.google.com  Smile
Signatur
   #6
 173     Sørlandet     0
Har du sett på viking bad sine kombi løsninger med f eks 130 x 130 hjørnekar med glassvegger.

http://www.vikingbad.no/aspx/produkt/prdinfovnet.aspx?plid=771

Ellers så bør du regne 80 cm plass til wc, altså 40 til senter av innebyggersisterne. Hvis du legger ut en skisse av badet så er det litt enklere å se løsninger i forhold til tak og dør Wink
  (trådstarter)
   #7
 208     Oslo     0
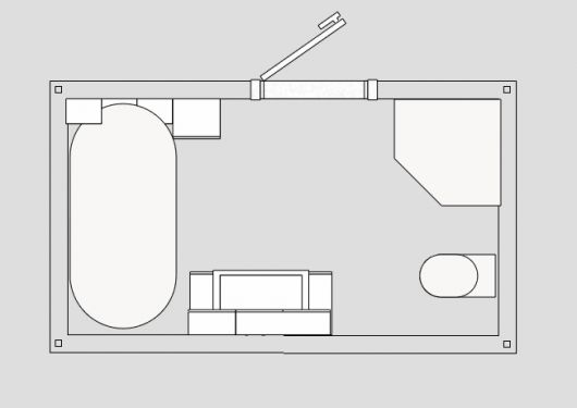
Prøver å legg ved tegning, men vet ikke helt om jeg får det til.

Det er rektangulært, 2 X 3,6 m. Døren er langs den ene langsiden (og kan flyttes innenfor et par meter). Denne langsiden har normal høyde.

På den andre langsiden er høyden 1,6.

Det er plass til dusjkabinett på 90X90 så lenge det står opp mot den høyeste veggen. Regner med at badekaret må stå langs den laveste.

Jeg lurer på om dette blir veldig trangt.

Ja, så skal det jo inn en vask også....
Hvordan innrede badet? - Baderom_2__etg_.jpg - Diddi

  (trådstarter)
   #8
 208     Oslo     0
Tror jeg går for et vanlig badekar i str 80 X 180. Og et dusjkabinett på 90X90. Da blir det 30 cm mellom karet og kabinettet.

Jeg ser at det er vanskelig med inngang i kabinetthjørnet. Må nok bli kabinett med inngang langs en side. Men det er ikke enkelt å finne. Er det noen som har sett noe brukanes, eller har annet forslag?
   #9
 1,943     0
Eg ville for all del unngått ei glipe på 30 cm. mellom kar og kabinett. Her blir det berre støv og dritt. Eg ville latt badekaret stå i kortenden; mest optimal bruk av plass, når veggen er 2 meter.

Eg ville ha bygd det inn eg da, og fått ein fin og tett kant mot eit høgskap. Alternativt droppe høgskapet. Har satt inn overskap over vask, det burde i alle fall vere plass til noko over vasken sjølv om høgden berre er 160. Dersom du har ein djup benk vil du uansett havne litt ut på golvet og sleppe å få taket i hovudet. Trur eg da.

Brukte KVIK sitt tegneprogram.


Hvordan innrede badet? - bad1.jpg - Solsikke
Hvordan innrede badet? - bad2.jpg - Solsikke
Hvordan innrede badet? - bad3.jpg - Solsikke
Hvordan innrede badet? - bad4.jpg - Solsikke
  (trådstarter)
   #10
 208     Oslo     0
Jeg tenkte på å plassere dusjen på motsatt side som badekar. Men tenkte at man må tråkke over vått gulv på vei til toalettet. Ved å samle det våte på den ene siden så kan man nå toalett og vask uten å bli våt.

Ser ikke helt for meg at man får plass til noe over vasken. Men lurte på om det var lurt å bytte vask og dusjkabinett på min tegning. Da har man jo problemet (om det er et problem da) med å bli våt på bena på evi til toalettet. Og jeg ble tipset om at man ikke bør ha baderomsmøbler inntil badekar, da de ofte ikke tåler dette (fukt).