2,275    9    1  

Planløsning på lite bad

 7     1
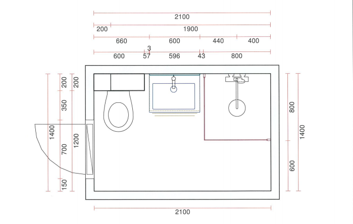
Vi holder på å lage et lite bad.
Vi ønsker å få inn et skap slik at vi har mulighet for oppbevaring av håndklær o.l. 

Det jeg lurer på er om vi kan få plass til et høyskap i hjørnet ved dusjen, noe a'la dette http://www.ikea.com/no/no/catalog/products/50218964/ 

Det er et leddet dusjdørne http://www.sanipro.no/victoria/ 

spørsmålet er rett og slett; hvis vi setter inn høyskapet, er det plass nok til å komme seg inn og ut av dusjen? 

Planløsning på lite bad - bad.PNG - LivH
Husk dette under oppussing: Lagre kvitteringer, bilder og avtaler i Boligmappa. Logg inn her

  (trådstarter)
   #2
 7     0
Dusjhjørnet har ledd slik at det slåes helt inn til veggen når det ikke er i bruk.
God ide med åpen hylle, men skulle så gjerne hatt mulighet til skjule noe bak en dør også. Skapet fra IKEA har speildør slik at det kan gi litt romfølelse, men kanskje blir det klaustrofobisk likevel..

Takk for tips.
   #3
 549     Skien     0
Vi har noenlunde likt bad i første etasje (2,5m x 1,5m), bare at vi har kabinett som står på motsatt vegg av servant og do. Dørene våre er slike som glir på skinner (dvs. ikke ut i rommet)
Der har vi en slik åpen hylle linket til tidligere i hjørnet mellom kabinett og servant.
Fungerer greit!
   #4
 5,337     Tromsø     0
Jeg hadde anbefalt buede dusjdører som er inn-/utfellbare på et så lite bad. Gjør mye for romfølelsen når når dusjen ikke er i bruk.

Vi har nettopp fått pusset opp et bad av noenlunde lik størrelse/fasong med rette hev/senk-dører, og der valgte vi en 50 cm smal vask, avrundet og smalere i fronten, for å kunne åpne dusjdøra nærmest vasken litt utover. Samme ting bør man være obs på om man plasserer et skap i nedre høyre hjørne? Får man opp dusjdøra langt nok til å gå inn og ut på passe komfortabel måte? Så lenge man er rimelig slank og førlig går det bra, hvis man ikke velger for stort skap, baderomsskap er jo ofte ikke så dype.
Velger man derimot kabinett eller et hjørne med fast karm og skyvedører som ikke slår utover får man dårligere romfølelse når dusjen ikke er i bruk, men allikevel mer plass som er lett å utnytte uten at den kommer i veien for dører som skal åpnes.
Signatur
   #5
 486     Stavanger     0
Dere har valgt riktig type dusjdører ihvertfall. Min er faring er at jeg ikk legger ut dørene i det hele tatt når en står inni og skal ut!, en står bare inni drar døren bak og legger den inn til veggen. Er man en veldig stor person (jeg er bare noen av hundre kg og 187 cm høy) så kan en muligens ha problemer med å gjøre det på denne måten? (Får du ikke testet i en butikk/hos noen kjente?)

Pass bare på at dusjtermostaten blir plassert slik at en klarer å legge hele (faktisk halve!) glasset lags veggen, og at det ikke kolliderer mde dusj stang og termostat(/blandebatteri).

Skapet blir dermed videre bare smak og behag. Med speil burde det gå bra uten at det blir for mye... Men her blir smaken som baken.
   #6
 567     bare ett av gangen, helst     0
Det hjørnet finnes i 70/80/90/100-dører, og dørene er leddet og kan brettes utover. Sjekk om leddet er på midten. Med det forbeholdet, så kan døra brettes foran et sånt høyskap. Hvis dere finner en vask som er under 40 dyp, så kan en dør brettes foran der også. Da vil det være diagonalen på en 40x40-firkant å gå inn i, ca 56 cm.

Det får man også til dersom man bretter dørene inn mot veggen. (Pass på å plassere blandebatteriet, som roebba skriver!)

56 cm kan man sammenligne med mange baderomsdører som bare har 62 cm åpning.

Det dusjhjørnet kan kombinere dørbredder også, så dere kan gå opp i 90 på den døra som går langs vasken. Da kan døra brettes foran en vask på ca 45 cm dybde (større utvalg) - og Pythagoras gir deg 60 cm å gå inn i dusjen på. Og det er fortsatt plass til et høyskap på de 50 cm som blir igjen.
   #7
 486     Stavanger     0
Ja der er det ett viktig poeng fra "Dumme_spørsmål"! : ) Gå absolutt gjerne opp til 90 cm bredde på den ene døren mot vasken, fremfor 80. Forskjellen er enorm i praksis. Igjen hus plassering av blandebatteriet!! Slik at glassdøren (de to halve delene!) går helt inn til veggen i sammenfoldet tilstand.

   #8
 5,337     Tromsø     0
Det er et leddet dusjdørne http://www.sanipro.no/victoria/

Ojsann, heve-senkedør som også er foldedør? Det så lurt ut. Hvem forhandler dette, hva koster det?
(Hvis jeg hadde funnet noe sånn da vi pusset opp badet i sommer hadde vi fått plass til en større vask...)
Signatur
   #9
 567     bare ett av gangen, helst     0