1,298
1
0
skal støpe baderomsgulvet i morgen
9
0
hei!
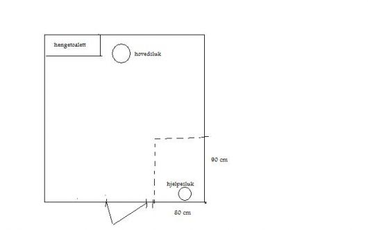
skal støpe gulvet mitt i morgen. har fått gode innspill fra forkjellige steder, så har fått en pekepinn på hvordan jeg skal utføre dette. men vil gjerne ha noen innsill herifra også
det ligget sveisemembran på undergulvet, som det er fall på.
jeg skal ha en dusjnisje med et hjelpesluk i.
dusjhjørnet blir 80 x 90 cm.
hvordan burde jeg lage fallet til hjelpe sluket slik at vannet ikke renner ut under dørene når jeg dusjer?
og hvordan blir da fallet til hovedsluket?
har lagt ved en liten ca tegning av badet :)
takker for svar!
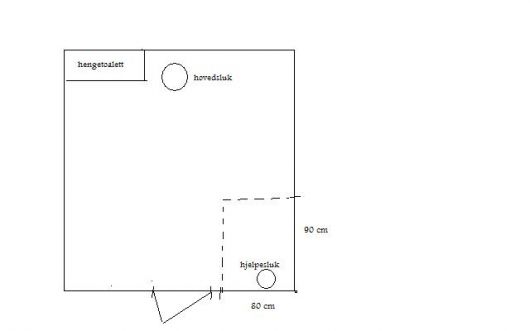
skal støpe gulvet mitt i morgen. har fått gode innspill fra forkjellige steder, så har fått en pekepinn på hvordan jeg skal utføre dette. men vil gjerne ha noen innsill herifra også
det ligget sveisemembran på undergulvet, som det er fall på.
jeg skal ha en dusjnisje med et hjelpesluk i.
dusjhjørnet blir 80 x 90 cm.
hvordan burde jeg lage fallet til hjelpe sluket slik at vannet ikke renner ut under dørene når jeg dusjer?
og hvordan blir da fallet til hovedsluket?
har lagt ved en liten ca tegning av badet :)
takker for svar!
enga86
(trådstarter)
9
0
noen som har litt tips? :) ;D
