3,082
18
1
Utvide badet i leilighet noe lurt?
6
0
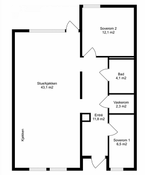
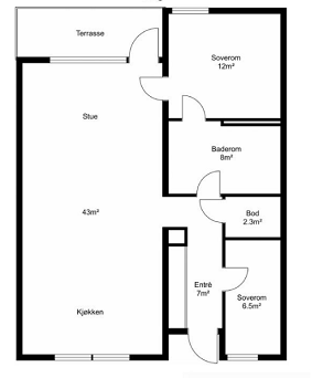
Har nylig kjøpt leilighet med bad fra byggeåret 2004 på ca 4 kvm i Trondheim. Mens vi venter på overtagelse, driver jeg å funderer litt på muligheten om å utvide dette til ca 8 kvm ved å bruke noe av gangen. I en tilsvarende leilighet i nabobygg har dette blitt gjort, og synes dette gir en mye bedre planløsning (se vedlagt før/etter bilder).
Vi tenker å bo i leiligheten i minimum 5 år pga jobbsituasjonen vår, så utvidelsen må være slik at det ikke blir et for stort tapsprosjekt (i form av videresalg) i forhold økt "hverdagsglede" for vår del. Skal ikke gjøre noe av jobben selv, så blir jo trolig snakk om flere hundre tusener samt at vi blir uten bad i kanskje en opptil en mnd.
Badet per nå er egentlig helt ok med tidløse fliser og grei stand, men hadde et par små anmerkninger fra takstmann (hovedsakelig alder), litt stusselig innredning og med en idiotisk løsning hvor inspeksjonsluken er bak toalettet så den må lirkes ut. Men det går fint an å bare sette opp et dusjkabinett og male/bytte innredning, så er det trolig et helt ok og brukanes bad i flere år til.
Noen som har noen tanker om det er en god eller dårlig ide? Eller noen som har noen erfaring med lignende prosjekter?
Og hvor stort budsjett bør vi tenke oss (anslag på nedre grense og worst case er kjekt)? Er ikke kjempe fan av fliser, så kunne tenke meg vinylgulv og baderomsplater på vegg, men må vel uansett rive gulv og fjerne gammel membran for å legge nye varmekabler etc, så vet ikke om det er strort å spare på det? Røroplegg (rør-i-rør) etc er egentlig ok-ish, så blir kanskje ikkek stort mer der enn å gjøre klart for et eventuelt badekar og kanskje flytte toalettet eller inspeksjonsluke grunnet problemet nevnt over, men koster vel fort en del bare det.
Ble mange spørsmål fra en uvitene pode som meg dette her, men håper det er noen som har noen tanker, erfaring eller tips å komme med. :)

.
Vi tenker å bo i leiligheten i minimum 5 år pga jobbsituasjonen vår, så utvidelsen må være slik at det ikke blir et for stort tapsprosjekt (i form av videresalg) i forhold økt "hverdagsglede" for vår del. Skal ikke gjøre noe av jobben selv, så blir jo trolig snakk om flere hundre tusener samt at vi blir uten bad i kanskje en opptil en mnd.
Badet per nå er egentlig helt ok med tidløse fliser og grei stand, men hadde et par små anmerkninger fra takstmann (hovedsakelig alder), litt stusselig innredning og med en idiotisk løsning hvor inspeksjonsluken er bak toalettet så den må lirkes ut. Men det går fint an å bare sette opp et dusjkabinett og male/bytte innredning, så er det trolig et helt ok og brukanes bad i flere år til.
Noen som har noen tanker om det er en god eller dårlig ide? Eller noen som har noen erfaring med lignende prosjekter?
Og hvor stort budsjett bør vi tenke oss (anslag på nedre grense og worst case er kjekt)? Er ikke kjempe fan av fliser, så kunne tenke meg vinylgulv og baderomsplater på vegg, men må vel uansett rive gulv og fjerne gammel membran for å legge nye varmekabler etc, så vet ikke om det er strort å spare på det? Røroplegg (rør-i-rør) etc er egentlig ok-ish, så blir kanskje ikkek stort mer der enn å gjøre klart for et eventuelt badekar og kanskje flytte toalettet eller inspeksjonsluke grunnet problemet nevnt over, men koster vel fort en del bare det.
Ble mange spørsmål fra en uvitene pode som meg dette her, men håper det er noen som har noen tanker, erfaring eller tips å komme med. :)

.
Jeg ville dropped døra i til soverommet selv (noen vil ha det å det er opp til dem) men synes det stjeler for mye plass i en leilighet.
Skal du gjøre det ville jeg byttet boddør med skyvedør og evt også skyvedør på bedet.
Ut fra komfort kan dette bli bra. Kan du få inn vaskerom i boden? Leiet en periode i påvente av hus, og hva som irriterer meg mest er hvor vanskelig det er å tørke klær!!
Si ikke det, et 17 år gammelt bad kan være noe som folk er skeptisk til, og kanskje heller legger inn et bud på en annen leilighet med nytt bad. Badet har allerede anmerkning fra takstmann, og er eller vil være modent for overhaling, i alle fall hvis det dusjes rett på flis, i den tida dere skal bo her. Så da er spørsmålet: Hvor mye dyrere er det å utvide det ut i gangen (eller evt slå sammen vaskerom og bad) sammenlignet med pusse opp uten å utvide det?
Men det viktigste bør ikke være eventuell verdiøkning. Det viktigste er at dere selv har nytte og glede av det.
Det er snakk om såpass ja? Er som nevnt ikke så viktig at vi tjener på det, men et mulig "tap" på kanskje 300 blir kanskje litt voldsomt (å tippe markedet er jo ikke noe vits, så får heller tenke per dags dato). Regner med vi kan få det betydelig rimeligere med litt egeninnsats og ved å droppe totalentrepenør? men uansett kjekt å vite prisen for hvor ille det kan bli.
Noen anslag på hva det vil koste med vinylgulv, Jotuns våtromssystem (eller annet vr-panel) og dusjkabinett? Er det noe å spare på dette? Dette trolig vil vel trolig slå dårligere ut på taks i forhold til fliser i dag, men jeg er ikke særlig fan av fliser, hverken bruks- eller estetisk-messig, uansett, samt er dette en sikrer løsning såvidt jeg har forstått(?), og ikke minst mye enklere å endre på i ettertid.
Skal vi gjøre det, så blir det nok dør til soverommet siden det er veldig kjekt når man er pissatrengt midt på natta, dog trolig skyvedør hvis det ikke blir for dyrt. Tenker også på muligheten for skyvedør fra soverommet til stua.
Godt poeng. Dog blir ikke disse mellom oppholdsrom og badet, men kan uansett bli litt rart for oss på natten hvis vi har gjeser...
Hva er avhengig av det? Det er mekanisk avtrekk både på bad og vaskerom som styres fra kjøkkenviften. Vil nok få egen vifte på badet med bryter der hvis vi bygger ut.
Enig i at gulvet blir det som koster, ja, men har vi vinyl så slipper vi vel smøremembran siden vinylen er godkjent membran i seg selv? Men uansett varmekabler og støping etc, så billig blir det vel ikke uansett.