4,400
3
0
Belysning til stue
557
Fetsund
0
Hei, jeg trenger litt bistand i valg av lysoppsett for en åpen stueløsning.
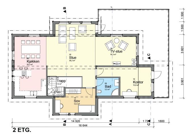
Se bilder. Hele rommet er ca 65 kvm, med noe varierende takhøyde (som bildet viser).
Vi har satt av 10 lampepunkter, som dere ser på bildet. Åtte av disse går i taket på den høyeste delen og to er på motsatt siden, helt i andre enden av bildet (tv-kroken).
Vi er på jakt etter generell belysning i rommet. Vi har gulvlamper og lignende til punktbasert belysning (leselys).
Hva skal vi velge? Spotter? Pendler som lyser nedover? Pendler som lyser 360 grader?
Takk for input!
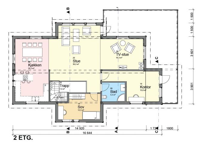
Se bilder. Hele rommet er ca 65 kvm, med noe varierende takhøyde (som bildet viser).
Vi har satt av 10 lampepunkter, som dere ser på bildet. Åtte av disse går i taket på den høyeste delen og to er på motsatt siden, helt i andre enden av bildet (tv-kroken).
Vi er på jakt etter generell belysning i rommet. Vi har gulvlamper og lignende til punktbasert belysning (leselys).
Hva skal vi velge? Spotter? Pendler som lyser nedover? Pendler som lyser 360 grader?
Takk for input!


- Det er flere som bruker lyddesignere her, da "får" man perfekt belysning. Ellers er det mye inspirasjon i ulike belysningsformer her, særlig inne på de ulike mini-bloggene.
- Jeg tror det viktigste er å velge noe dere vet dere vil trives med, tross alt dere som skal bo med lyset!
Lykke til
Vi ble anbefalt spotter som lyser opp de hvite veggene og kan pekes mot pynt/bilder vi vil fremheve osv som grunnbelysning. Dette sammen med bord- og gulvlamper med forskjellig type lys som vi så kan flytte rundt på som det passer.
Pga fargen dere har på vegg vil dette ikke fungere på samme måten hos dere. Downlights hos dere vil nesten ikke gi noen opplevd grunnbelysning i det hele tatt. Dette er erfart hos mine foreldre som har tilsvarende mørkt kjøkken.
Prismessig det beste på markedet i forhold til kvalitet.... fleksibelt, med både spotter
og oppheng... solid strømføring, kan legges rundt hele stuen med en tilførsel...
Frøya med de nye hvite Cob led GU10 passer veldig godt....
Bilde av hvit Frøya med halogen...