#11
 3,412     Akershus     0
Jeg ville ikke hatt spotter rett over en seng.

Jeg ville ikke hatt spotter mer enn halvannen meter fra en vegg.  Spotter trenger noe å lyse på, og det blir litt teit hvis de bare lyser på gulvet.

Mistenker at det kanskje er litt overkill her.  Vis oss tegningene!  Smile
Signatur

  (trådstarter)
   #12
 117     0
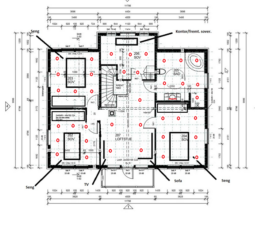
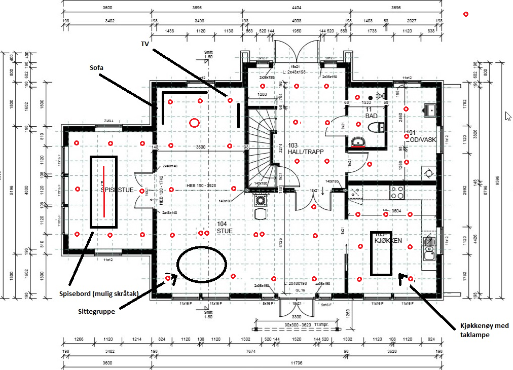
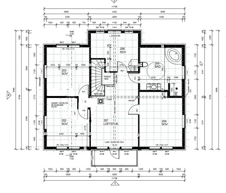
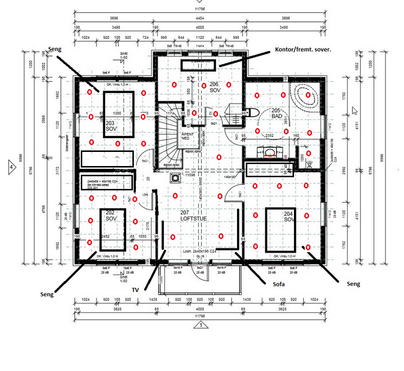
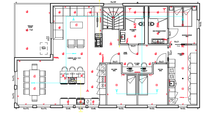
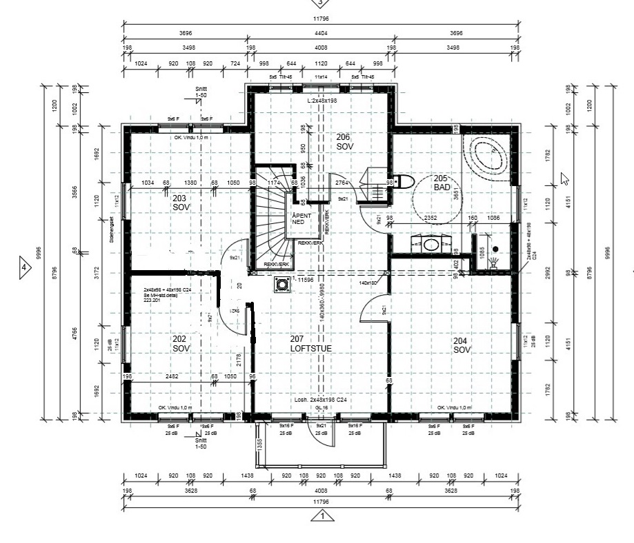
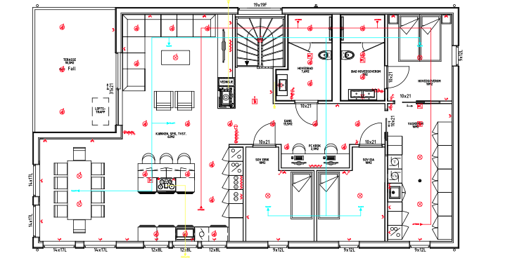
Her er plantegninger over 1 og 2 etg.

Etter å ha lest innleggene her, så tenker jeg å kutte
ca. 50 spotter.

1etg:
20 stue (-10)
4 bad (0)
8 kjøkken (-4)
8 gang (-4)

2.etg:
Droppe alle soverom(-36)
Loftstue 10 (-2)
Bad 6 (-3)

Hva tror dere? Hva slags belysning ville dere brukt i stedet for spot
på soverom? Kan evt. kutte ut spotter på bad i 1.etg også
For mye spottere? - 1etg.JPG - lars_80
For mye spottere? - 2etg forslag 2.jpg - lars_80
   #13
 1,699     Norge     0
legger ved oppsettet vårt, så kan du jo sammenligne litt.
Sikkert ikke alle som liker oppsettet vårt, men da har du hvertfall noe å se etter.

Vi satt oss ned med röd tusj og prikket oss frem til hvor vi trengte belysning med spot, hvor vi ønsket punkt til lamper/lysekroner osv. Det samme med stikk (ikke glem til julestjerna i vinduet Wink)

Vi syns også det er et poeng å ha automatisk bryter på rom som vaskerom og bad.
Ved utgang og hovedsosverom har vi en hovedbryter som slukker alt lys i huset, med unntak av soverom.

Gjør det først, så teller du opp etterpå.
For mye spottere? - Skjermbilde 2013-10-27 kl. 23.41.46.png - boligplanlegging
For mye spottere? - Skjermbilde 2013-10-27 kl. 23.41.53.png - boligplanlegging
   #14
 2,018     Strømmen     0
Veldig bra svar boligplanlegging..... og dersom TS vil ha forslag,
så må møblering tegnes inn, for i 2014 bruker man IKKE et rute
mønster i taket, man belyser etter møblering.... eller delvis etter
møblering, dersom fruen i huset ønsker litt... forandring...  Wink
Signatur
  (trådstarter)
   #15
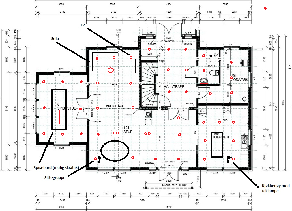
 117     0
Her har jeg satt opp en kjapp oversikt over hvordan det muligens blir
med møblering.

Åpen for flere forslag til plassering av spotter og hva slags
andre lamper dere ville valgt?
For mye spottere? - 2etg.jpg - lars_80
For mye spottere? - 1etg.jpg - lars_80
   #16
 312     Sørlandet- indre bygder     0
Eg har 11 spotter på hovedbad! (her er spottene plassert i rutenett, sorry men eg MÅ ha god belysning på bad) 9 stk på kjøkken, kun over den delen av rommet der det er kjøkkeninnredning, 7 på stue, strategisk plassert langs ein lang vegg,  på barnesoveromma er det to stk under kvar hems, som er plassert inntil vegg, på hovedsoverom og gjesterom er det 0. Kan desverre ikkje vise med planskisse.
Signatur
   #17
 2,018     Strømmen     0
Noe sånt... på andre etasje.... tegnet på litt garderobe Smile
For mye spottere? - bb10.png - ElJan
Signatur

   #20
 3,412     Akershus     0
Mye bra i forslaget fra elby!

Selv ville jeg ha gjort et par små justeringer hvis det hadde vært hos meg:
- Jeg ville ha lagt til to spotter til trappa, spesielt siden den har så mye sving og godt lys vil gjøre det lettere og tryggere å gå der.
- Tre av spottene i spisestua har ikke noen vegg å lyse opp, bare vinduer.  De ville jeg tatt bort.  Tilsvarende med en spot rett innenfor dobbeldøra i Hall, en av spotene i TV-kroken, og spotene "midt" i stua og den midt i 206 Sov.
Signatur