1,775
2
0
Innspill på lysplan ønskes
8
0
Hei
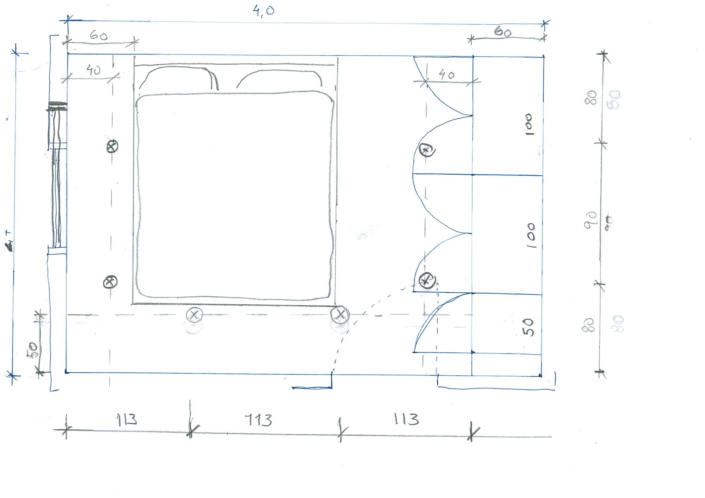
Driver å pusser opp et gjestesoverom, gulv, vegger og tak. Rommet er 2,7x 4,0 meter. I den ene endens skal vi ha garderobeskap, så rommet blir effektivt bare 3,4 meter langt.
Vi har tenkt å bruke 5W LED downlights (318 lumen). Lysene kan vris i sokkelen.
Vi har tegnet en lysplan, men vi er helt ferske og ønsker innspill.
Takk for innspil
Driver å pusser opp et gjestesoverom, gulv, vegger og tak. Rommet er 2,7x 4,0 meter. I den ene endens skal vi ha garderobeskap, så rommet blir effektivt bare 3,4 meter langt.
Vi har tenkt å bruke 5W LED downlights (318 lumen). Lysene kan vris i sokkelen.
Vi har tegnet en lysplan, men vi er helt ferske og ønsker innspill.
- Er utgangspunktet ok?
- Er det nok lys? >Rommet er ca 9 m2 når vi trekker fra plassen skapene tar.
- Er det ok med 40 cm avstand til vindusveggen, eller skal vi flytte de nærmere sengen?
- Er 40 cm avstand til garderobeskapene ok når vi skal se inn i skapene?
- Er det og med 50 cm avstand fra veggen i enden av senga, eller bør vi flytte de lenger ut? I så fall vil de lyse over sengen.
Takk for innspil

med endevender ved døren...
mvh,
Espen