2,187
3
0
Innspill på plassering av og antall downlights
2
0
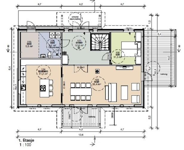
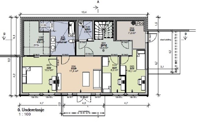
Ønsker innspill og tips på plassering av og antall downlights i 1.etasje og underetasje.
Vi ønsker ikke å "peppre" taket med downlights, da vi også ønsker noen vanlige taklamper, så begrenset ned til hva som anses som tilstrekkelig.
Men en fornuftig fordeling og antall.
Når det gjelder 1.etasje så vil muligens veggen mellom stue og soverom fjernes, slik at dette også blir en del av stue som tv-del. Vurderer også å flytte dør inn til stue nærmere trappen for sette spisestuen der døren nå er plassert. Pipa tenkes som stålpipe så plassering på tegning er kun midlertidig.

Vi ønsker ikke å "peppre" taket med downlights, da vi også ønsker noen vanlige taklamper, så begrenset ned til hva som anses som tilstrekkelig.
Men en fornuftig fordeling og antall.
Når det gjelder 1.etasje så vil muligens veggen mellom stue og soverom fjernes, slik at dette også blir en del av stue som tv-del. Vurderer også å flytte dør inn til stue nærmere trappen for sette spisestuen der døren nå er plassert. Pipa tenkes som stålpipe så plassering på tegning er kun midlertidig.

Personlig liker jeg ikke når taket er fullt av spotter. En idé kan være å begrense bruk av spotter til arbeidslys på benkeflater og belysning av pynt i vindusposter (spotter i vindusforing). Ellers kan man belyse bordflater med pene hengelamper som kan dimmes for å justere mellom dempet belysning for kos, middels belysning ved middag/selskap og arbeidslys for lekser etc. Videre kan man bruke vegglamper til sittegrupper, trapp og gang.
- Rådgivende ingeniør areal og samferdsel som yrke.
- Personlig opptatt av byggtekniske løsninger. Har også et lite gravefirma sammen med min far.
Skriver her som privatperson om ikke annet er beskrevet.
Selv er vi usikker på behovet for taklamper som henger, ville nøyd meg med å trekke rør frem til der det kan være aktuellt og heller møblere før en velger en taklampe, eksempelvis har vi ett spisebord hvor min samboer har ønske om taklampe, jeg mener det vil dele rommet for mye. Men vi har kommet frem til at vi ettermonterer hvis vi ønsker det.
Hvis du har mye vinduer kan du også vurdere å ha lysene mellom vinduene, ett lys rett forann vinduet gir liten effekt, best effekt får du når veggen/gardiner kan reflektere lyset.
er vanskelig... lykke til