1,759
8
1
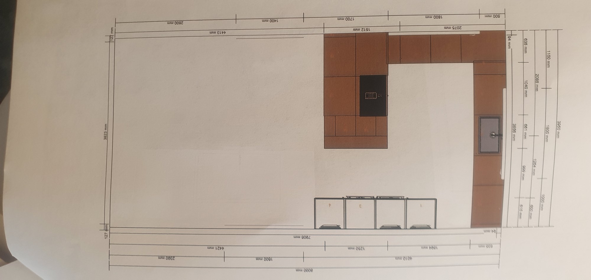
Plassering av spotter på kjøkken
45
0
Holder på å bygge nytt kjøkken og setter stor pris på om noen vil komme med innspill til plassering 
Etter hva jeg kan lese andre plasser er 40-50cm ut fra vegg et godt utgangspunkt..? Vi skal ikke ha overskap men 4 høyskap langs den ene veggen. Rommet er totalt 8x4 meter, hvor kjøkkensonen utgjør snaue halvparten. Benkventilator.
Har tegna opp 2 forslag, men syns det med flest spotter kanskje blir litt vell mye? Skal ha 10w led.




Etter hva jeg kan lese andre plasser er 40-50cm ut fra vegg et godt utgangspunkt..? Vi skal ikke ha overskap men 4 høyskap langs den ene veggen. Rommet er totalt 8x4 meter, hvor kjøkkensonen utgjør snaue halvparten. Benkventilator.
Har tegna opp 2 forslag, men syns det med flest spotter kanskje blir litt vell mye? Skal ha 10w led.




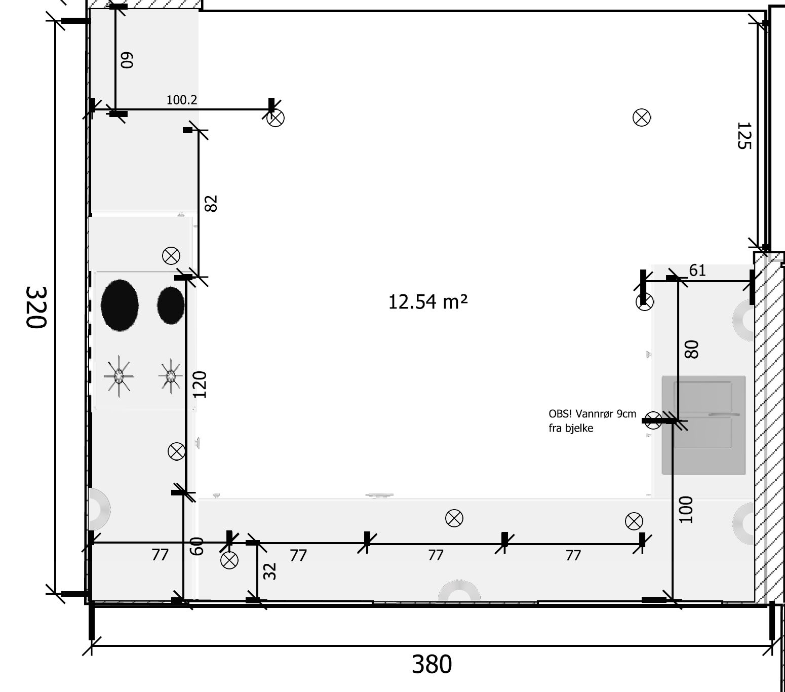
Legger ved tegningen min. Jeg gikk lei av å tegne inn lampepunktene så tenk heller at der de tjukke strekene møtes er lampepunkter. Lampene er nå montert og vi synes lyset ble veldig bra. Vil aldri ha behov for maks belysning på disse. Det eneste jeg angrer litt på er nede i venstre hjørne. Der ble det litt for tett. Her ville jeg heller hatt tre downlights langs 380-veggen (litt som du har på den øverste tegningen din).
Personlig ville jeg droppa downlighten som står "midt på gulvet". Downlights er mest ment for å lyse opp vegger og denne vil egentlig ikke lyse opp noe spesielt. På kjøkkenet er det benkeplata det er viktig å få belyst.
En ting til jeg ville vurdert er å kanskje trekke den ene downlighten på halvøya litt lenger inn og montert to downlights som lyser opp høyskapene. På tegningen min er det to høyskap mot toppen av bildet og her er det montert en downlight midt mellom disse, 40cm ut. Dette synes vi var et godt valg. Siden du har fire tenker jeg to ville gjort susen.
Husk lys over vask, der du steker osv.
Skal spottene i taket? pass på du får spotter med lav spredning og dimmer som nevnt.
Selv har jeg 3 soner, lysrør under skap og soner i tak med led. bruker kun lysrør ved go gammeldags oppvask.
Ganske likt som vårt egentlig
Har vurdert å kanskje gå bort fra symetri og heller montere på rekke over benkeplata. Har tenkt litt på det du har skrevet og skissert ny plassering som kanskje kan funke. La 3 litt sett over øya (litt lenge inn enn ellers). Tenker det kanskje kan gi en kul effekt også.
Har kun spotter i tak, ikke noe annet lys pr nå.
100-120cm mellom spotter har fungert veldig bra her i alle fall.
Under overskap ville jeg lagt lys av noe slag (spotter, lysrør, ledstrips), siden skapene skygger for spottene i taket.
Alle mål står på tegningen
Tror nok du vil bli fornøyd med det oppsettet du har der, men tror det kan bli litt tett med 3stk på øya om jeg ser rett at den cirka 160cm. For å unngå en klint oppi veggen og på motsatt side at den lyser opp passasjen mellom høyskap og øy er du nede på roughly 100cm å fordele 3 spoter på. Da er du på cirka 50cm mellom dem. Om du har lampene i hus kan du jo forsøke å holde de opp mot taket og få noen til å ta bilde for å få et inntrykk. Kanskje det vil være greit om dine er nettere enn våre (våre er cirka 100mm i ytterkant).