7,133
60
1
Boligdrømmen på Askøy, lett modifisert IEC Alexandra
49
Hordaland
0
Hei!
Vi er en familie på 4 (barn på 1 og 4) som er i full gang med husplanleggingen. I vår kjøpte vi oss tomt i et nytt boligfelt på Askøy utenfor Bergen, men planleggingen har pågått siden ifjor høst.
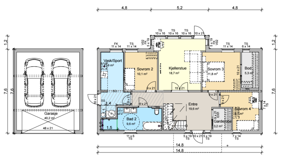
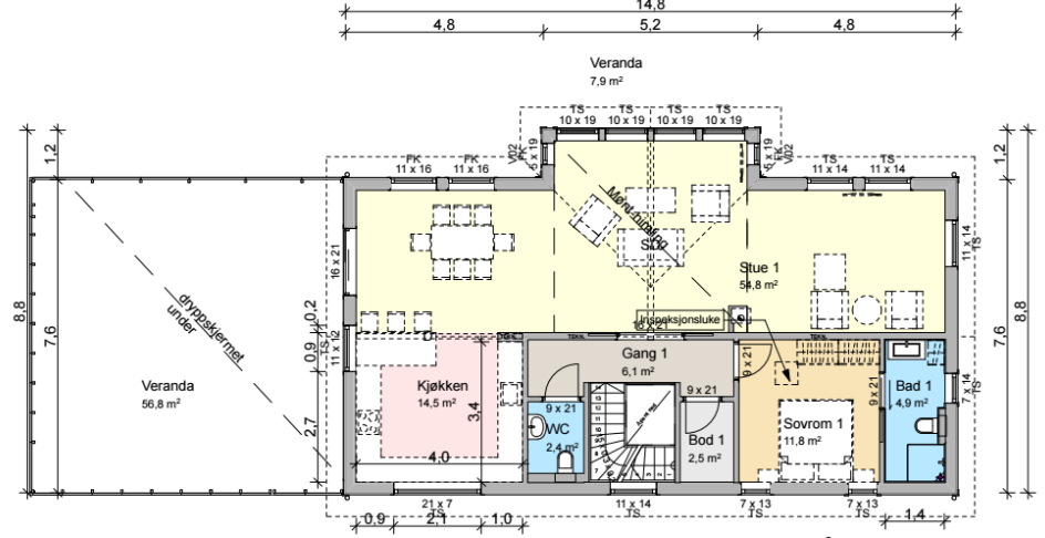
Vi vurderte flere forskjellige leverandører: et lokalt uavhengig firma og tre av de store husleverandørene på markedet; Boligpartner, Mesterhus og IEC-HUS. Etter en del tilpassninger og stor nedskalering av første utkast, har vi endt opp med IEC-HUS sitt Alexandra. Da har vi prøvd å tilpasse eksteriøret noe for å få ett litt mer moderne uttrykk.
I håp om å få noe utsikt har vi lagt stue/kjøkken i 2 etasje og soveromsavdeling i 1.
Over sommeren regner vi med å sende nabovarsler og byggesøknad. Deretter håper vi å komme i gang med bygging til vinteren.
Legger ut bilder av huset og planløsningen i håp om å få noen innspill og kanskje noen gode tips om det skulle være noe vi ikke hadde tenkt på :)
Vil oppdatere her etterhvert som noe skjer




Vi er en familie på 4 (barn på 1 og 4) som er i full gang med husplanleggingen. I vår kjøpte vi oss tomt i et nytt boligfelt på Askøy utenfor Bergen, men planleggingen har pågått siden ifjor høst.
Vi vurderte flere forskjellige leverandører: et lokalt uavhengig firma og tre av de store husleverandørene på markedet; Boligpartner, Mesterhus og IEC-HUS. Etter en del tilpassninger og stor nedskalering av første utkast, har vi endt opp med IEC-HUS sitt Alexandra. Da har vi prøvd å tilpasse eksteriøret noe for å få ett litt mer moderne uttrykk.
I håp om å få noe utsikt har vi lagt stue/kjøkken i 2 etasje og soveromsavdeling i 1.
Over sommeren regner vi med å sende nabovarsler og byggesøknad. Deretter håper vi å komme i gang med bygging til vinteren.
Legger ut bilder av huset og planløsningen i håp om å få noen innspill og kanskje noen gode tips om det skulle være noe vi ikke hadde tenkt på :)
Vil oppdatere her etterhvert som noe skjer




Sprengkiler.no - Fjellkiler/sprengkiler til deling av fjell og stein
Jeg synes plantegningene ser ganske bra ut, men jeg ville ha hatt en dør fra garasjen retning huset slik at dere kan gå tørrskodd fra garasjen til vaskerommet. Jeg ville nok endret trappen også. Rett i innenfor ytterdøren samler det seg ofte en del sand og diverse som man da må gå gjennom når man skal opp og ned trappen.
Ja, døren fra garasjen har vi tenkt på så den skal inn. Når det gjelder trappen så ser vi den, men vi har ikke klart å finne noen bedre løsning på den. Ønsker å ha den lille åpningen fra 1-2 etasje.
Vi holder på å bygge et hus som minner veldig om deres i fasong. Vårt er litt kortere, men bredere. Vi har også dypere karnapp (1,8m) og takustikket har vi forlenget til hele fasaden med sportsbod integrert.
Ikke veldig mye som minner om vårt innvendig.
Ser veldig bra ut, det blir spennende. Lykke til!
- Rådgivende ingeniør areal og samferdsel som yrke.
- Personlig opptatt av byggtekniske løsninger. Har også et lite gravefirma sammen med min far.
Skriver her som privatperson om ikke annet er beskrevet.
Gratulerer med husbygging
Hvis du ikke har signert enda, så hadde jeg vurdert andre utbyggere enn IEC. Det er en veldig enkel grunn til at prisen er som den er, og byggetiden er kort på papiret. Bare vent til de starter, da bruker de ikke fem minutter på å utsette frister, uten å informere deg.
Akkurat ferdig med å bygge IEC hus, har vært snekker, byggeleder, kvalitetsansvarlig, kontrollansvarlig og alt du ellers forventer deg at en seriøs bedrift tar seg av. Jeg har dog måtte betale for alt sammen, selv om jeg har utført oppgavene.
Tips er også å redusere antall våtrom, våtrom er dyrt rom for rom.
Takk for det. Vi sjekket en del før vi valgte å gå for IEC. Ser det er mye variert tilbakemeldinger på de. Men, vi fant en del positivt omtale for IEC Hordaland, så det var nok det som gjorde at vi valgte de. Samtidig var prisforskjellen ganske stor.. Vi får bare krysse fingrene
Hei, ja har sett litt på tråden deres. Mye samme type hus. Blir spennende å følge dere nå i byggeprosessen. Hvem bygger dere med?
Ser og dere har nedjustert en del fra første tegning. Vi hadde store planer, men så fort at ønskene ikke gikk i tråd med prisen....
Ja, U trapp kan jo være en mulighet. Vi har faktisk ikke vurdert det tidligere. Har hatt store planer om en åpning der en kan ha lysekrone hengende.