495
8
0
Bygge hus for første gang
10
0
Hei.
Skal bygge hus for første gang. Krav til huset er moderne stil og sokkeletasje, med mulighet for inntil 60m2 bi-leilighet.
Jeg har selv tegnet noen alternativer til hus, og landet på et vi ønsker å gå videre med. Er det noen her som har kommentarer/tips til det jeg har tegnet?


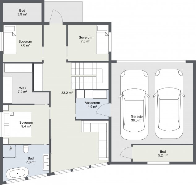
Sokkeletasjen er jeg ikke ferdig med.
Takk for svar!
Skal bygge hus for første gang. Krav til huset er moderne stil og sokkeletasje, med mulighet for inntil 60m2 bi-leilighet.
Jeg har selv tegnet noen alternativer til hus, og landet på et vi ønsker å gå videre med. Er det noen her som har kommentarer/tips til det jeg har tegnet?


Sokkeletasjen er jeg ikke ferdig med.
Takk for svar!
- Hovedsoverom mot kjellerstue kan vel bli et problem med støy?
- Privat bad medfører at brukere av kjellerstue må opp trappen
- Stor WIC og mye dødt areal, men skjønner dørplasseringen.
- Vindu i garasjeboden begrenser oppbevaring på vegg/hyller
Synes det var mye gangareal i kjelleren med veldig mange «utoverhjørner disse får gjerne gjennomgå i dagligdagen, så ville satset på mer rene flater (bygg gjerne inn garderobe, men sørg for at veggene passer slik at dørene kan flukte med veggen.
Du mister mye plass på WIC-løsningen nede med rommets form, men om du flytter mastersuiten opp kan du ha skap på hver side i teknisk rom og skyvedør til badet.
Teknisk rom under 2 kvm (husk på at gips og rupanel spiser enda mer av arealet) er for lite hvis du planlegger eksempelvis vannbåren varme. Ventilasjon alene fyller vel like mye som et kjøleskap eller to, og så kommer varmtvannstank, rør, og Evt varmepumpe. Og sentralstøvsuger.
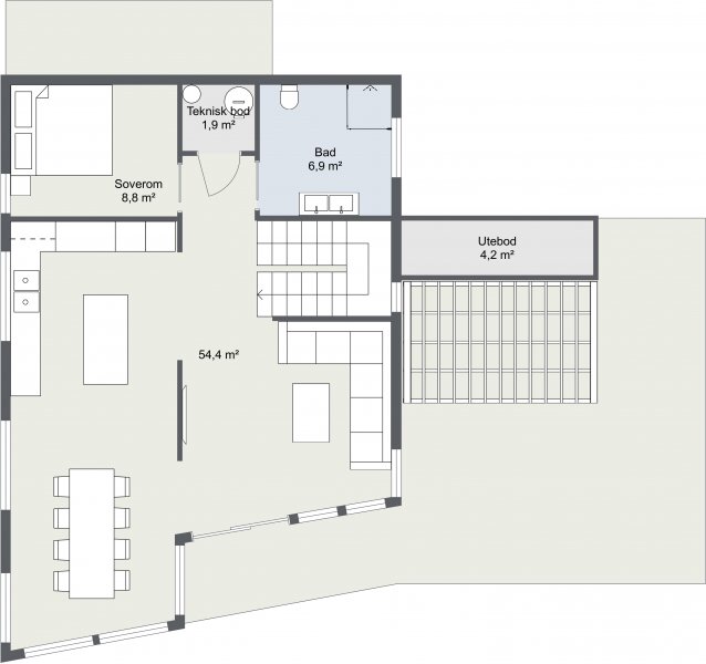
Vi ser for øvrig 1. og 2. etasje her. Bilde av sokkelen er ikke lagt ut, da jeg ikke er ferdig med den. Her kommer en bi-leilighet.
Det er i 2. etasje det meste vil skje, så ønsker at badet her blir åpent for gjester. Jeg har tegnet ro alternativer, med master i 2. et., men blir ikke helt fornøyd. Stuen i 1. et. kommer mest til å bli brukt av barn. De har da en rask tur opp trappen for å komme til badet, og mtp. støy så legger de seg før oss.
Er ikke helt fornøy med plasseringen av teknisk rom. Skulle gjerne hatt et vindu der isteden. Men det skal være stort nok. Ev. får det litt plass fra gjestesoverommet eller badet. Blir ikke vannbårenvarme, så det skal kun inneholde sikringsskap, bereder, støvsuger og ventilasjon.
Legger ved bilde av sokkel slik den er så langt. Usikker på om vi skal ha trapp ned her (med et rom av et eller annet slag), for enkel utvidelse senere eller ei.
Husk å få bred nok garasje. Moderne biler er både brede og lange.
Takker!
Har lagt inn Tesla S på tegningene, som er forholdsvis stor. Men ser at den med fordel kan være litt større, ev. mindre med mulighet for at det også blir en separat dobbel garasje/carport.
Alltid er det vi foreldre som skal ha størst rom osv og det eneste vi gjør der er å sove. Ungene bruker sine rom til så mye mer, sove, venner ,lekser, , ha overnatting, gjemme seg unna osv.
Når dere nå setter av nesten 25m2 til dere selv og barna blir avspist med rom på 7-8 m2 så ville jeg tenkt annerledes.
I det minste hatt et toalett nede til de/ venner også.
Tror ikke dere ønsker masse venner flyende opp på do hele tiden.
Men hvordan ligger huset i terrenget? Det er gjerne slik at man først ser på terrenget, uteområder ig lysforhold også setter man rammene for huset ut fra det - før man går i gang med den interne romfordelingen.
Hvordan er budsjettet?
Ser for meg ut til å være 3 etasjer med rundt 80m2 grunnflate + garasje.
Så 240m2 * 25000kr/m2 = 6mill + garasje?
Garasjen din tror jeg er for smal og kort.
Veldig plagsomt å føle at man må åle seg inn/ut dørene på bilene, eller hele tiden passe på om bilen kom langt nok inn i garasjen.
Å ha plass til et par sandsekker, noen skuffer, litt ved, en sykkel (eller fem), en motorsykkel eller kanskje en snøfres inni der kan også være veldig greit - om du ikke har noen andre steder å plassere det.
Many of the great achievements of the world were accomplished by tired and discouraged men who kept on working...