1,337    9    0  

Egentegnet betonghus med solenergi

 91     Sola     0
Har skrevet en del om dette huset før men tenke jeg skulle samle det her nå

Tomten er på 1 mål skrår litt, har sol så lenge det er mulig og har utsikt mot nord-vest

Har jobbet med dette i noen år nå (på en generell tomt) men i fjord høst fikk vi drømmetomten.

Det er planen å bygge i 2 etasjer (U og 1), flatt tak (med noe grønt på), stor grunnflate (12,7x17m, BTA 216m2, BRA 185m2)
Lammi LL500 blokker og hulldekker (HD265) til etg skiller og tak.
Solfangere og solcellepanel på tak med stativ. Vannkappe på peis som supplement.

Utsiden er rimelig satt, kommunen er enige, nå er det innsiden som gjelder.

Tenkte å prøve å holde denne tråden oppdatert, det er planen å få til en del innovativ.

Her er noen 3d bilder med topografi:


Egentegnet betonghus med solenergi - Indigo Render V3 Ny Topo nr 7.jpg - eivindcomEgentegnet betonghus med solenergi - Indigo Render V3 Ny Topo nr 6.jpg - eivindcom

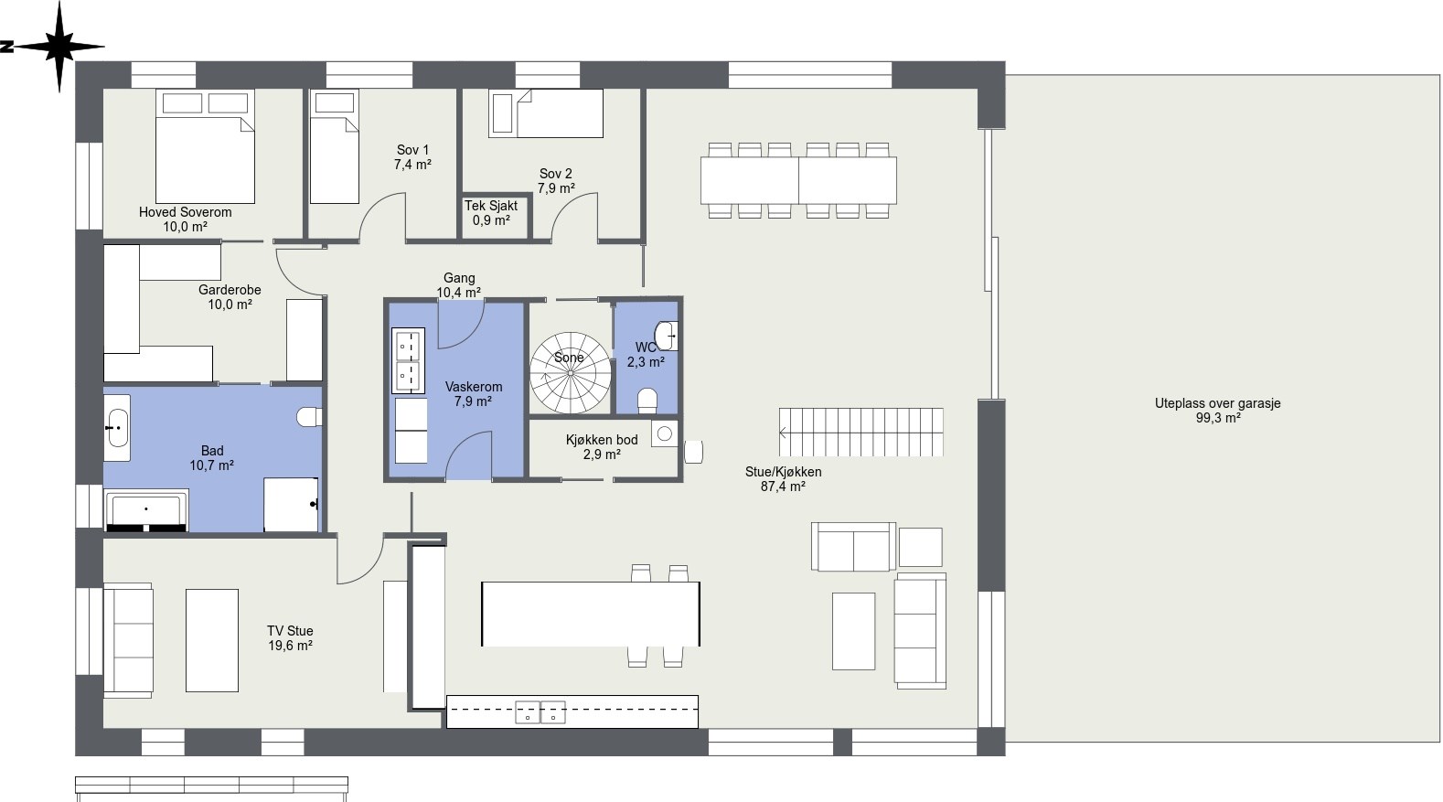
Plantegning 1 etg:
Egentegnet betonghus med solenergi - Sørsjøvegen 11 1 etg Utkast nr 1.jpg - eivindcom

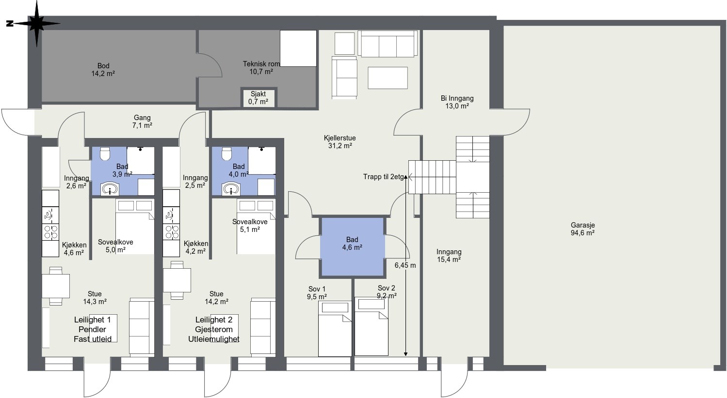
Plantegning U etg:
Egentegnet betonghus med solenergi - Sørsjøvegen 11 U etg Utkast nr 10.jpg - eivindcom
Signatur

  (trådstarter)
   #1
 91     Sola     0
U etasjen er rimelig satt utenom inngang, bi inngang, trapp og teknisk rom, her er vi enda litt usikre.
1 etg er et tidlig utkast, men stue/kjøkken er vi veldig fornøyde med.
Signatur
   #2
 2     0
Spennende hus. kunne tenkt meg noe sånt. Har du tenkt på betongelementer som yttervegg istedenfor lammi?
   #3
 300     0
Interessant kombinasjon. Hvorfor vil du ha solenergi? Det er svindyrt og vil aldri lønne seg sammenlignet med å kjøpe strøm fra nettet. Hvis det er for å være miljøvennlig, så hvorfor vil du bruke betong i huset? Det er jo noe miljøsvineri.
   #4
 39,166     Lillestrøm kommune     0
jomat, du tar nok feil, termiske solfangere er mulig å få til å gå rundt økonomisk, og folk kjøper jo bil og kjøkken innredning uten nødvendig at det skal være det beste økonomiske valget. Så at noen tar energivalget helt ut synes jeg er helt greit.
   #5
 5,111     Sørnorge     0
Spennende prosjekt!
Hvor har du funnet 3d-modell av hele nabolaget?
Siden du tenker solfanger+solceller; Har du sett på solpumpe (sunpump)? Jeg har ikke funnet mye tallgrunnlag på dette, men synes ideen er lovende.
Har du vurdert å lage drivhus / vinterhage på taket?
   #6
 300     0
jomat, du tar nok feil, termiske solfangere er mulig å få til å gå rundt økonomisk, og folk kjøper jo bil og kjøkken innredning uten nødvendig at det skal være det beste økonomiske valget. Så at noen tar energivalget helt ut synes jeg er helt greit.

Det regnestykket må du vise meg Wink Man skal nok være ganske "kreativ" for å få det til å bli lønnsomt.
   #7
 39,166     Lillestrøm kommune     0
Det er mange som har oppvarming/varmtvann tilnærmet uten tilført ekstern energi fra mars/ april til ut oktober. Anbefaler en tur på solenergi dager og se på faktiske anlegg. De trenger selvfølgelig noe tilleggsvarme i vintermånedene. Skal en låne penger til dette så kan jeg være enig, med avkastningskrav på egenkapital og ingen skatt på sparte strømutgifter så skal jeg ha dette bare en finner gode praktiske løsninger. Ved nybygg er jo dette lettere.

   #8
 300     0
Fra mars/april til ut oktober? Det er ikke da man trenger strøm! Og det at man er selvforsynt med strøm midt på sommeren betyr ikke den strømmen er billigere enn man kunne kjøpt fra nettet. Uansett, det var ikke det som var poenget mitt her. Så jeg bryr meg ikke om å diskutere "lønnsomheten" i solenergi videre.

Poenget er at solenergi og betong er på hvert sitt ytterpunkt av miljøskalaen. Derfor var valget en interessant kombinasjon, og jeg lurer på om f.eks massivtre er vurdert (hvis TS ønsker å være miljøvennlig).
   #9
 39,166     Lillestrøm kommune     0
jomat, du nevner fortsatt strøm og ikke varme. Det er solvarme som kan konkurrere ikke solceller. Og varmt vann trenger en året rundt og det er fortsatt et behov for varme utenom den verste vintersesongen. Men selvfølgelig det hadde vært fint med solen høyt på himmelen også vinterstid (men det er det som blir sommer Laughing )

Ellers er det meste av TS sine betongprodukter hule/tynne så det er ikke så ille og han har ovn med vannkappe for des-feb.