393
2
1
Husprosjekt: Hus på utfordrende lang tomt. Forslag?
4
0
Hei
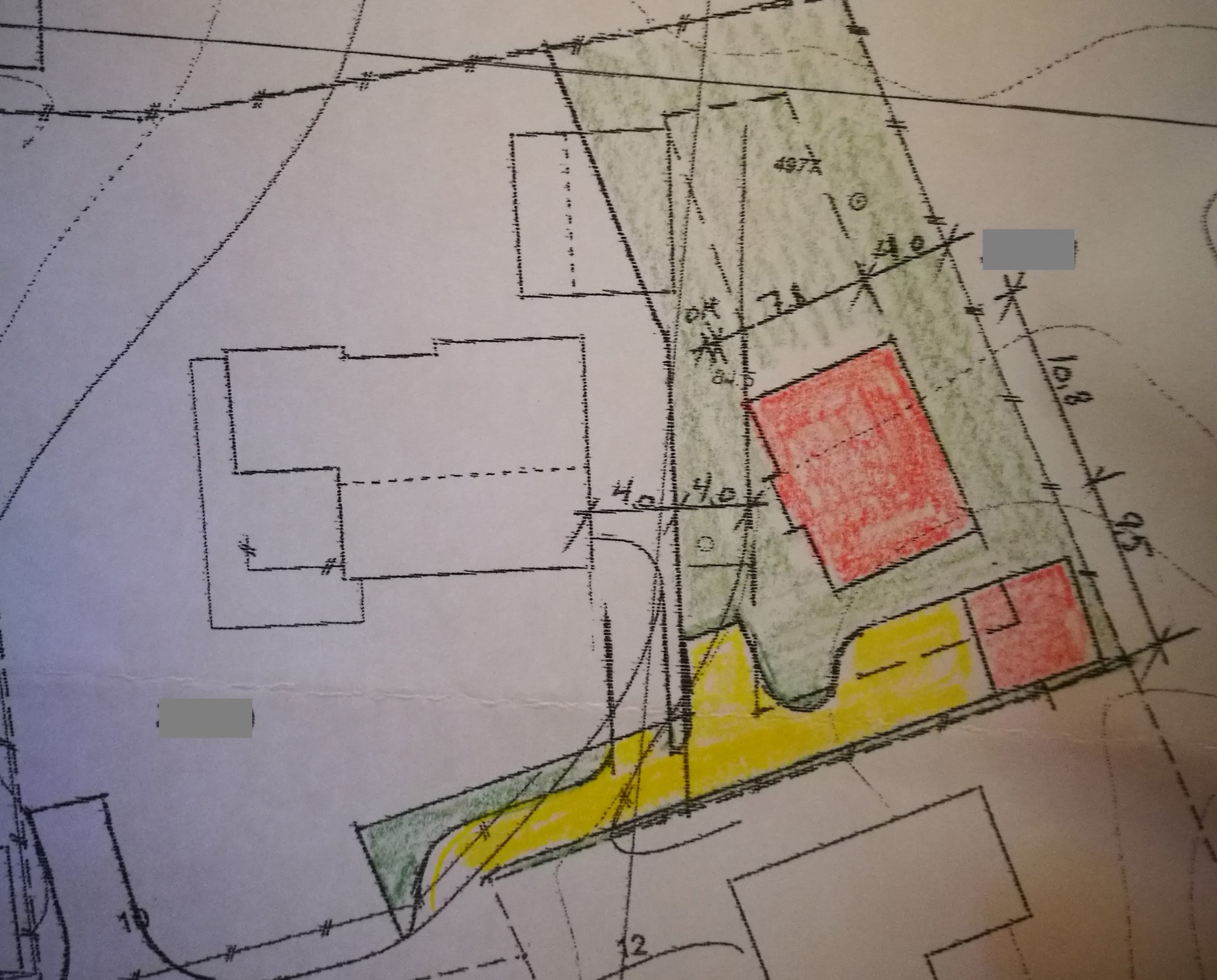
Jeg starter tråden for mitt husprosjekt. Er i fase med å se potensialet og skille ut en tomt jeg kan overta. Det er en utfordrende tomt på 700m2 (BYA 104m2 til hus) som krever bl.annet felles ankomst og flytting av familiens garasje. Jeg har 4,2mill til disp (tomt gratis).
Har lagt ved tidligere utbyggers skisse (salget ble annullert) hvor mine tanker er å strekke huset lengre sør ved å forenkle til enkel garasje. Jeg har tenkt å bygge utleiedel. Sokkel / halv sokkel / utleie i 1.etg uten kjeller? Har tenkt ca. 120-140m2 til meg selv og 40-60m2 til utleie. For at jeg skal kunne bygge innenfor budsjettet og iom jeg bygger alene tenker jeg å bygge ut kun bad nr.1, sov nr.1 og evnt. vente med garasje og hage. Har tenkt å legge gulv og male utvendig selv. Evnt. leca kurs for sokkel
Hva tenker dere er praktisk på denne tomten? Tips til ferdighus som kan tegnes om?
På forhånd takk.


Jeg starter tråden for mitt husprosjekt. Er i fase med å se potensialet og skille ut en tomt jeg kan overta. Det er en utfordrende tomt på 700m2 (BYA 104m2 til hus) som krever bl.annet felles ankomst og flytting av familiens garasje. Jeg har 4,2mill til disp (tomt gratis).
Har lagt ved tidligere utbyggers skisse (salget ble annullert) hvor mine tanker er å strekke huset lengre sør ved å forenkle til enkel garasje. Jeg har tenkt å bygge utleiedel. Sokkel / halv sokkel / utleie i 1.etg uten kjeller? Har tenkt ca. 120-140m2 til meg selv og 40-60m2 til utleie. For at jeg skal kunne bygge innenfor budsjettet og iom jeg bygger alene tenker jeg å bygge ut kun bad nr.1, sov nr.1 og evnt. vente med garasje og hage. Har tenkt å legge gulv og male utvendig selv. Evnt. leca kurs for sokkel
Hva tenker dere er praktisk på denne tomten? Tips til ferdighus som kan tegnes om?
På forhånd takk.


http://byggebolig.no/innspill-pa-din-planlosning/planlosning-ett-plan-betongelementer-flatt-tak/msg783561?last=True#msg783561