21,680
99
7
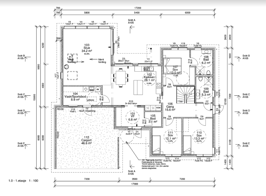
Moderne enebolig med saltak og H-layout
86
1
Da var kontrakten i boks og vi begge skjelver i buksene av både glede og redsel. Vi planlegger å bygge en moderne enebolig for en småbarnsfamilie på 4. Vi har valgt en tomt som ligger østvendt, men vi har sol hele dagen, og den går ned om kvelden kl 22:00 om sommeren. En del av hagen blir derfor på framsiden. Kanskje ikke ideelt, men da kan vi i det minste nyte utsikten mot øst uten å steike i hjel på ettermiddagen.
Tomten ligger ganske skjermet til, til tross for at den ligger ute på et nes, men vi har safet med en H løysning slik at vi kan sitte ute uansett om vinden måtte komme fra den ene eller andre siden.
Nå venter vi bare på godkjenning fra kommunen. Planlagt oppstart des 16/jan 2017.
Hyggelig om du ønsker å følge med oss på veien mot drømmehuset :)






Tomten, utsikt mot sør/øst.
Signatur
EN venninne av meg er nettopp ferdige med å bygge et nydelig hus i sveitserstil. De bestilte en god del dører derfra, og det er skikkelig god kvalitet til en fornuftig pris.
I går satt vi å prøvde å finne ut av hvor vi ville ha spotter, taklamper, vegglamper m.m.... Fy søren det er vanskelig. Ikke så lett å vite hva behovet er og hvordan det blir. Men, får bare håpe at vi ikke har bommet kraftig
Du finner sikkert mye skriblerier på nettet om hva som lønner seg av plassering av spotter. Jeg fikk mye aha opplevelser av en elektriker som var på befaring, hvis du kjenner noen så kan du jo spørre om de har noen tips.
Utrolig hvis bevist du blir på plassering av lamper/spotter/stikk osv når du er på besøk hos folk. Eneste fruen min savner er en stikkontakt over de vinduene det nå henger julestjerner. Fant heldigvis noen som gikk på batteri så i slapp ledningen hengde ned på de 6 vinduene vi har stjerne i....
Vi sendte byggesøknad 3 juledag og fikk svar ca 4 uker etter. Da hadde vi 39cm (39CM!!!!!!!!) for høyt hus.
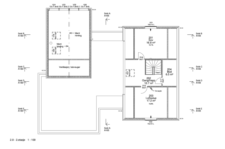
Tomten er allerede planert en god del, og vi ville ikke miste litt av utsikten med å gave oss ned. Heldigvis hadde vi tenkt å ha 2,6m takhøyde i 1 etasje, så når vi gikk ned til vanlig høyde måtte vi "bare" ta 19sm av loftet. Kjenner det er ganske så irriterende da det ikke kommer til å være hus forran eller bak oss. Det vil bli hu på siden, men i etasjer, så ingen kommer til å merke de 19cm unntatt oss... Men men.... Regner med at det ikke er den eneste karamellen vi får i løpet av byggetiden. Bare håpe at de ikke blir store.
I begynnelsen av februar begynte de med graving på tomten. Vi måtte fylle i og bygge mur ned mot nabotomten. Det er i utgangspunktet ikke en mur vi kommer til å se så mye av da den er på baksiden, så vi tenkte å kjøre billigst mulig.
Syntes de har gjort en god jobb, og faktisk så ble muren ganske så fin syntes vi.
Etter 2 uker var tomten klar for grusing.
Måtte grave oss ned noen cm. Men da slipper vi å få så stor grunnmur. Jeg har heller aldri vært noen fan av store grunnmurer, så det passet ganske så godt.
På mandag denne uken kom ringmurselementene. Skal si det går fort i svingene.....
Og på tirsdag var ringmuren støypt!!!!! Flinke og raske folk
Her er bilde av hvordan utsikten blir fra stuen
Nå er jeg spent på hvor lang tid det tar før vi støyper resten...
Eneste som bekymrer oss er at huset ser så lite ut !?!?!
Hørt at det er vanlig før veggene kommer opp, så får vel bare smøre oss med tålmodighet å se..
Blir uansett stor nok carport
http://byggebolig.no/oppgraderinger-oppussing/total-rehab-av-kjeller/msg766581?last=True#msg766581
Bare hyggelig om du vil følge med på veien !
Vi skal bygge i Vindafjord kommune. Det ligger litt øst for Haugesund. Nord i Rogaland.
Kunne tenkt meg et kjøkken i disse fargekombinasjonene.... Layouten blir litt annerledes...
Hørt med et firma som produserer fronter i eik,men ble fort 50 000 i bare fronter, så tror jeg må se meg etter andre alternativ... Mulig vi bare tar hvitt kjøkken, og heller kliner til med sort og eik på veggen.
Synes også det er nydelig med bare eik på kjøkken, men DET blir nok den dagen jeg blir millionær
Vi planlegger også hus, men er ikke ferdige med tegningene ennå. Her er link til det foreløpige huset vårt: http://byggebolig.no/bygge-nytt-hus/moderne-hus-i-skogholt-med-utsikt/msg770044?last=True#msg770044
Ang kjøkken; har du sjekket Svane-kjøkken? Synes de har mye fint og mer moderne enn HTH, Sigdal og andre dyre leverandører til sammen:-). Blir gøy å følge med i prosessen deres! Så ergelig med de 39 cm!!
Ja, har siklet litt på noen av svane sine kjøkken. Men jeg var å så på de, og fikk inntrykk fra selger at det var veldig eksklusive kjøkken, så la det fra meg...
Veldig stilig hus dere også har tegnet. Blir spennende å følge med. Ser dere også kjører moderne med saltak