796
5
2
Moderne hus mot sjøen, nærmer seg oppstart.
3
2
Da nærmer husdrømmen seg. Etter å ha pratet med forskjellige firmaer en kort periode fant vi tonen med et firma som er veldig flinke på denne type boliger. Fantastisk oppfølging og en veldig god prosess gjorde at vi kom frem til det som er vårt drømmehus.
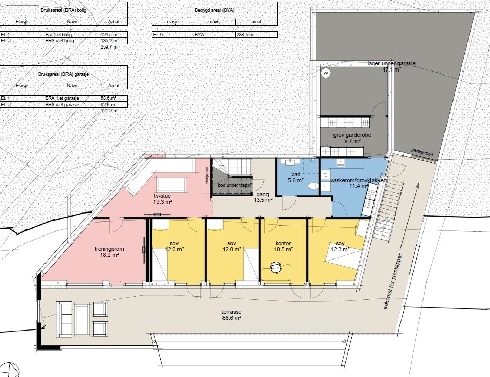
Huset ligger med fasade mot øst, men helt mot toppen av en bakke. Vi har derfor bestemt oss for takterrasse selv om dette er på Vestlandet.
Vi er en aktiv familie og har derfor prioritert god plass i stue/kjøkken, treningsrom og grei størrelse på rommene til guttene.
Man kunne selvfølgelg alltid hatt større bad, men en plass må grensa gå, og vi bruker lite tid der alle mann.
Vi graver under garasjen slik at vi får stor lagring her. Her blir det nok hageutstyr, vinterlagring av møbler, grill osv og sykler.
Huset er tenkt satt opp med fullt KNX anlegg. Det er 3m under taket i øverste etasje, 2,6m i underetasjen.
Rom innenfor "grov garderobe" er teknisk rom.
Innflytting om alt går etter planen er før jul 2017.
Setter pris på alle mulige innspill.


Huset ligger med fasade mot øst, men helt mot toppen av en bakke. Vi har derfor bestemt oss for takterrasse selv om dette er på Vestlandet.
Vi er en aktiv familie og har derfor prioritert god plass i stue/kjøkken, treningsrom og grei størrelse på rommene til guttene.
Man kunne selvfølgelg alltid hatt større bad, men en plass må grensa gå, og vi bruker lite tid der alle mann.
Vi graver under garasjen slik at vi får stor lagring her. Her blir det nok hageutstyr, vinterlagring av møbler, grill osv og sykler.
Huset er tenkt satt opp med fullt KNX anlegg. Det er 3m under taket i øverste etasje, 2,6m i underetasjen.
Rom innenfor "grov garderobe" er teknisk rom.
Innflytting om alt går etter planen er før jul 2017.
Setter pris på alle mulige innspill.


ville byttet treningsrom mot tv-stue... eller sløyfet tv-stue og utvidet barnerom..
Litt nysgjerrig på prisestimat...7,5 mill. ? pluss tomt...
Det blir laget slik at den dagen far er lei av å trene blir det nok gjort om til hjemmekino eller noe i den duren.
Ellers blir det
Eikespiler i tak i stue/kjøkken og tv-stue
Vannbåren varme, væske til vann
Konemor skal få kjøkkenet hun ønsker ink. Bora'en.
Solskjærming som ligger "skjult" og selvfølgelig styres via knx.
Prisestimat pr. nå er ikke helt 100% da vi enda ikke er helt spikret med el-anlegg, våtrom og kjøkken men det blir nok et lite stykke over 7,5 mill dessverre....
Hvilke priser har dere blitt forespeilet pr kvm, og hvem/hvordan bygger dere.. Syr sammen tilbudene selv, eller totalentreprenør?
Er sør i Rogaland.
Norrøn bolig er totalentrepenør. Har en jobbhverdag som gjør at jeg er en del borte og gjør dette til det eneste fornuftige.
De har presentert et veldig bra opplegg til konkurransedyktige priser. De er i tillegg kjent her for å være flinke på denne type boliger.
Eikespiler i taket. Skal dere ha akustikkplater over for lyddemping?
Hva med å bytte om kontor og soverom helt til venstre? Tenkte på støy fra TV-stue. Kan være fint å ha muligheten til og guffe på med litt lyd når de små sover
Også ville jeg satt inn vindu over sengen på hovedsoverommet. Bredt og lavt av typen som ikke gir innsyn. Så kan dere nyte utsikten fra soverommet også