441
2
0
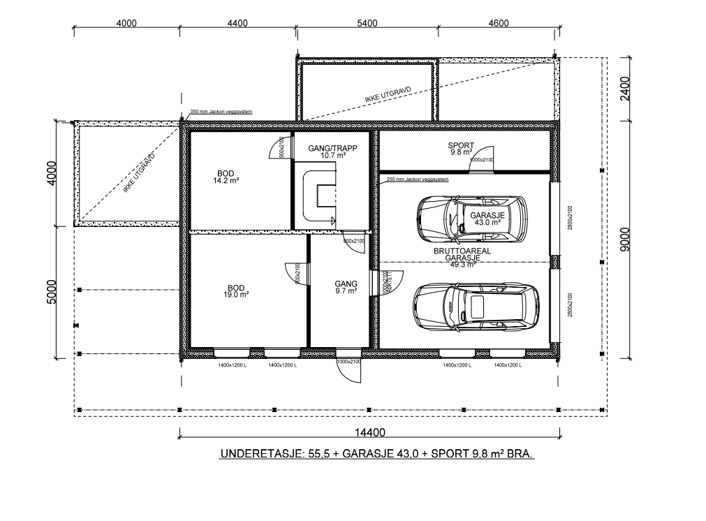
Nytt "klassisk" hus på 3 ettasjar. Garasje i kjellar, overbygd inngang og terrasse.
64
0
Skal bygge oss eit stort flottt hus og har foreløbig denne planløysinga.
Noken som har kommentarar til den og eventuelt betre forslag?!
HAr også laga ein tråd i eit anna forum om "høgda på loftsettasjen"
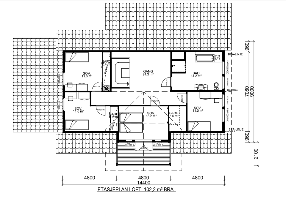
Det er eit dilemma mellom utnyttelse av loft vs utsjånad på huset.
Er ikkje så glad i lang avstand mellom vinduge og takutspring. Kva tenkjer folk om det?
Link til tråd: http://byggebolig.no/arkitektur-planlosning-og-fasade/utnyttelse-av-loft-vs-utsjanad-pa-hus-tankar-rundt-hogde-pa/msg770453?latest=True#latest



Noken som har kommentarar til den og eventuelt betre forslag?!
HAr også laga ein tråd i eit anna forum om "høgda på loftsettasjen"
Det er eit dilemma mellom utnyttelse av loft vs utsjånad på huset.
Er ikkje så glad i lang avstand mellom vinduge og takutspring. Kva tenkjer folk om det?
Link til tråd: http://byggebolig.no/arkitektur-planlosning-og-fasade/utnyttelse-av-loft-vs-utsjanad-pa-hus-tankar-rundt-hogde-pa/msg770453?latest=True#latest




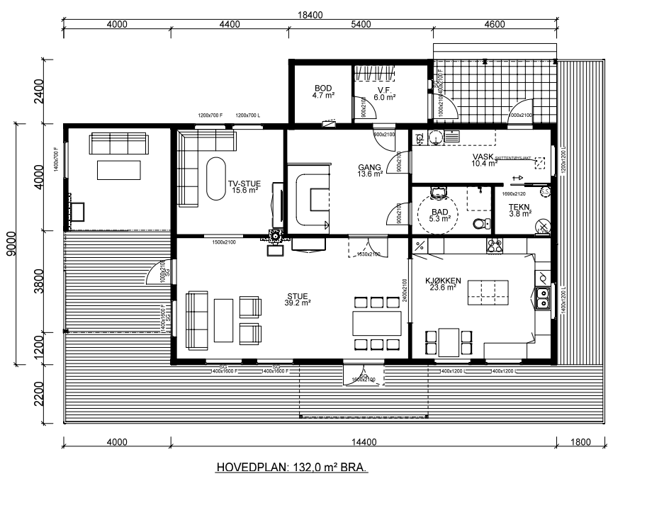
Syntes det så bra ut jeg ... hvordan ser det ut på utsiden?
- hva er planene for innredningen på vaskerommet? Dører/ vindu på hver vegg gir noen utfordringer, spesielt i kombinasjon med så langt og smalt rom.
- 13 kvm gang - det er luksuriøs bruk av kvm:-). Og dør mellom gang og vindfang - det blir mange dører som tar opp plass. Men mulig dere har en tanke bak det.
- Stort deilig kjøkken:-)! Men hva med å åpne helt opp mellom kjøkken og stue? Da kan dere ha 1 stk spiseplass istedetfor kjøkkenbord OG spisestue. Nå får dere kjøkkenbord og spisestue nærmest oppå hverandre. Hvis dere dropper kjøkkenbordet, kan dere lage en litt større kjøkkenøy og. For et kjøkken det kan bli!
- fatastisk garasje og kjeller! Masse bodplass:-) Men to ganger i kjellern... er det helt nødvendig?
Lykke til!