650    7    0  

Ønsker synspunkt, tips triks og råd til Nybygg av "drømmeboligen"

 6     0
Hei og hopp, Jeg er nyregistrert I forumet og prøver på min første post her med planen for nybygg til Samboeren og meg, som skal bygges på en Tomt vi har kjøpt på 758 kvm.

Tomten er Flat, med tilkomst fra en blindvei, men grenser til en annen vei så det er rom for to tilkomster hvis det skulle vert ønskelig. Vi ser for oss å bruke "Stikkveien" som er tegnet inn I fra blindveien. (se bilde/kart av tomt lenger ned)

Vi har drømt oss bort I store herskapslige villaer I lang tid og har mange drømmer og tanker som vi sliter litt med å få samlet. noe som er bestemt er Sort glassert takstein, og hvit fasade. ellers så er vi litt frem og tilbake.

Jeg har lyst på en stor garasje naturlig inkludert I huset med inngang direkte til vaskerom med dusj for å minimere gris I hele huset. (garasjen skal måle minst 7 x 10 meter helst 8 x 10/12)

Sammen ønsker vi stor åpen stue/spisestue med et stort åpent kjøkken med "frokost øy" mot spisestuen. Peis/vedovn midt i rommet med "panorama" sikt til flammene.
Vi ønsker stort inngangsparti med en flott åpen trapp til 2. etasje og dobbelfløyet glassdør mot spisestuen.

2. etasje ønsker vi tv stue, 2-3 soverom og et stort master med eget bad og walk in.

Jeg ønsker kjeller med hybel/leilighet for en skattefri biintekt men der er vi ikke helt enige om det. kjelleren vil kun være under selve huset og ikke garasjen. garsjen skal være ekstra høy for å få inn løftebukk, så jeg tenker at hvis en kjellermur løfter huset tilsvarende så vil det se mer riktig ut med den høye garasjeporten. Hvis vi skulle hatt hybel måtte det vert avgrenset slik at ikke leieboerene ville vert "synlige". Jeg ville også flyttet teknisk rom under bakken og kanskje et lite hjemmekino/mannebule/pub rom hvis det skulle være plass. Jeg tenker kanskje å bygge kjelleren selv med Jackon thermomur eller liknende løsning - noen som har erfaring å dele med dette? tenker også å føre opp garasjen I same material, og kle igjen etterpå likt huset utvendig. jeg har ikke sjekket hva som er billigst enda, om jeg bruker jackon eller normale trereisverk vegger I garsje.

Oppvarmingen har jeg lyst til å ha vannbåren gulvvarme, men jeg har ikke klart helt å sette meg inn I hvilken løsning som er best. I dag har jeg NIBE avtreks varmepumpe med radiator oppvarming, dette syns jeg fungerer veldig bra og bruker SVÆRT lite strøm men savner gulvvarme, (50 000 kwh på 156 kvm over 4 år med utendørs boblebad på 38 grader hele året)

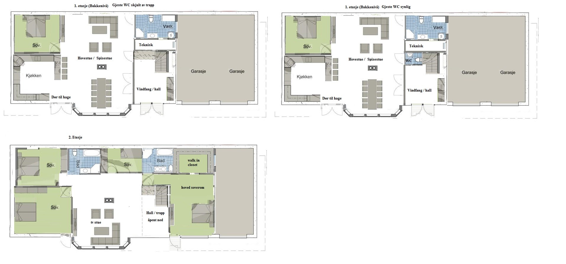
Jeg har skissert opp litt I Paint som jeg håpet å få noen synspunker på good or bad, også gjerne noen tips til forbedringer og løsninger på oppvarming og andre ting dere kanskje vil nevne:) dette er ikke satt I noe målestokk eller noe. Jeg har bare tatt utgangspunkt I et liknende hus, og dratt klippet og limt litt rundt på inholdet og fasaden til å bli som jeg ønsker.
men grovt estimate vil være på ca 22 x 10 meter grunflate. pluss en meter ca på karnapen Dette er det minste jeg har klart å tegne inn for å få med alle tingene vi ønsker, men det er helt klart rom for forbedring og trekke sammen huset litt. kjøkken og soverom I 1. etasje kan kanskje bli litt mindre og soverommene over. men jeg syns det er viktig å få symetrien frem så godt som rå er på fasaden.

Håper på noen positive innspill som kan hjelpe oss I planleggingen og hvis response er der vil jeg følge opp hele prosessen med bildere og status om ønskelig. Tilgi meg for skrivefeil, da jeg sitter med engelsk pc og ikke alltid får med meg at stavkontrollen er ute å tuller for meg.

Ønsker synspunkt, tips triks og råd til Nybygg av "drømmeboligen" - fasade utkast.jpg - Bjanne
Ønsker synspunkt, tips triks og råd til Nybygg av "drømmeboligen" - inne ny.jpg - Bjanne
Ønsker synspunkt, tips triks og råd til Nybygg av "drømmeboligen" - tomt 2.jpg - Bjanne
Ønsker synspunkt, tips triks og råd til Nybygg av "drømmeboligen" - tomt 3.jpg - Bjanne
Ønsker synspunkt, tips triks og råd til Nybygg av "drømmeboligen" - tomt kart.JPG - Bjanne
Ønsker synspunkt, tips triks og råd til Nybygg av "drømmeboligen" - tomt1.jpg - Bjanne
Ønsker synspunkt, tips triks og råd til Nybygg av "drømmeboligen" - tomt4.jpg - Bjanne
Husk dette under oppussing: Lagre kvitteringer, bilder og avtaler i Boligmappa. Logg inn her

   #1
 7,139     Akershus     0
du burde drodle litt i et program som gir deg fasader og korrekt målestokk. selve planløsningen er det vanskelig å si noe om før tegninger foreligger.

mtp byggemåte-vi har brukt sprøytebetong ved en anledning, var veldig enkelt og raskt, i allefall fra vårt ståsted. økonomien i det tør jeg ikke uttale meg om her og nå. kan forklare litt om hvordan det gjøres om noen er interessert...

.Thag
  (trådstarter)
   #2
 6     0
Heisann Thag!

takk for tilbakemelding! siden jeg la ut tråden fikk ejg et tips om roomscetcher, så jeg kjøpte tilgang til det med en gang og har begynt å drodle litt der. legger ved tegningen jeg har fått til nå.

jeg har ikke funnet ut hvordan jeg tar ut bilde med målene på tegningen enda, men det kommer etterhvert. nå er det hvertfall langvegg på 20 meter, og kortveggen er 10,8 meter. garasjen måler 8 x 10,8 meter utvendig.

Det ene bilde er det "lukket" igjen mellom master bedroom og badet med en "sluse" for å kunne gå fra bad til skap uten å blotte seg til dem som skulle være så uheldig å se på tv.

Når det kommer til grunnmur ved kjeller så er jeg åpen for forslag på hva som er beste og rimeligste alternativet. Jeg har sett litt på Jackon 350 blokk til kjeller og 250 til garasje ytterveggene. også 350 mellom garsje og huset. men jeg har ikke helt begrep på pris I forhold til konvensjonell støpt mur / leca isoleca osv. men jackon og leca kan ejg bygge selv. og der vinner jackon I mine øyne på brukervenlighet og tidsbruk. men jeg er litt usikker foreløpig.
Ønsker synspunkt, tips triks og råd til Nybygg av "drømmeboligen" - 2. etasje 3d Lukket gang fra master bad til master bed.JPG - Bjanne
Ønsker synspunkt, tips triks og råd til Nybygg av "drømmeboligen" - 3d 1. etasje.jpg - Bjanne
Ønsker synspunkt, tips triks og råd til Nybygg av "drømmeboligen" - 3d 2. etasje.jpg - Bjanne
   #3
 7,139     Akershus     0
med sprøytebetong kan du bygge kjelleren i treverk, og så sprøyte på betong. For min del er treverk et materiale jeg er mer vandt med enn mur, da er det enklere (og raskere) på den måten. Fikk et firma i Oslo til å være med hele veien, er veldig fornøyd med dem... De sprøytet alle veggene...


.Thag
  (trådstarter)
   #4
 6     0
har fått for øre at det ikke er så lurt med sprøyte betong hvis veggene skal være under bakken ?

Jeg har fått inn noen priser på jackon 350 som kjellermur og skille vegg mellom garasje og hus, samt jackon 250 som yttervegger til garasjen. dette kom på ca 250 k (inkl isopor og radon sikring til gulv)
I tillegg kommer da armoring og betong. regnet meg fram til ca 100 m3 med betong til alle vegger og gulv her. så fikk jeg ca. pris på Plattendekke på 650 per kvm, som da er pluss frakt, kraning på plass og resten av støpen der oppe.

Fordelen jeg ser med Jackon, er at det "bare" er å skru opp gipsen når man er ferdig og skal innrede nede I kjelleren og I garasjen. man slipper lekte ut, isolere osv. så tenkte jeg å frese spor I "isoporen" for å legge inn K-rør osv. det forenkler innredningen betraktelig I det som blir kjeller og hybel leilighet.



Noen fler som har noe input eller tips de vil komme med på planløsning eller material valg/leverandør?

   #5
 39,502     Lillestrøm kommune     0
Sprøytebetong er normalt oppskrift for mugg både over og under bakken. Men kanskje Thag har en annen oppskrift enn den de brukte før ? (Skallet blir kaldt og det kondenserer på innsiden).
   #7
 39,502     Lillestrøm kommune     0
Sprøytebetong legges normalt mot en plate og er dette en gipsplate så kommer denne platen på kald side av isolasjon innenfor. Hvis en isolerer utenpå Sprøytebetong slik at innsiden ikke blir kald så er det ok. Men har intrykk at dette er uvanlig