331
7
0
Ønsker tips til planløsning
5
Kristiansund
0
Hei,
Vi har byggeplaner, og er i gang med regulering av tomt.
Har sett på en del ferdighus, men har ikke helt funnet det riktige for oss, så jeg ønsker gjerne å tegne det selv. Når jeg har kommet frem til ei løsning skal disse sendes til et firma for kvalitetssikring, justering, beregning, arbeidstegninger og det som trengs.
Har kommet frem til et første utkast, og ønsker gjerne tilbakemeldinger og tips til tegningene..
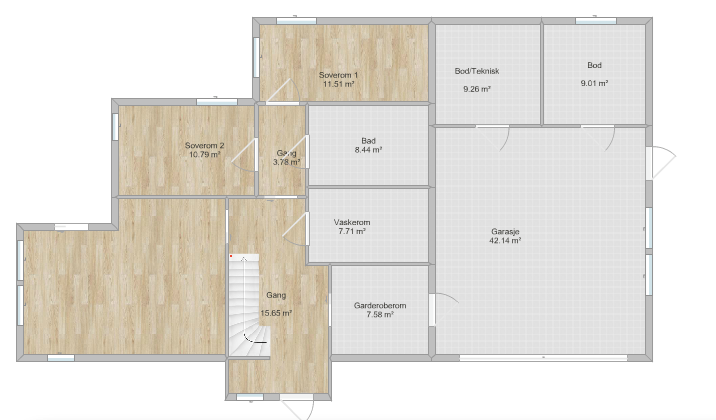
Første etasje består av "soveromsavdeling" med to barnerom og bad, vaskerom, garderoberom (der vi kommer til å ha alt vårt yttertøy til hverdagsbruk og for alle årstider) og treningsrom. Vi har også garasje med bod/teknisk og ei bod hvor vi også vil ha en dusj i forbindelse med fridykkingsutstyr (hvor vi også kan spyle klærne til barna når de er fulle av gjørme).
Andre etasje er stue har spisestue og kjøkken i åpen løsning, samt TV-avdeling med skyvedører, slik at barna kan kose seg med film samtidig som vi voksne kan prate på stua. Skyvedører fra kjøkkenet ut på verandaen. Her har vi også en egen soveromsavdeling, med et tredje barnerom, bad, og hovedsoverom. Her skal vi ha klessjakt ned til vaskerommet.
Utsikt fra stue er mot nord, slik at vi må planlegge veranda og uteområdet i forhold til solen.




Alt av forslag til forbedringer mottas med takk!
Vi har byggeplaner, og er i gang med regulering av tomt.
Har sett på en del ferdighus, men har ikke helt funnet det riktige for oss, så jeg ønsker gjerne å tegne det selv. Når jeg har kommet frem til ei løsning skal disse sendes til et firma for kvalitetssikring, justering, beregning, arbeidstegninger og det som trengs.
Har kommet frem til et første utkast, og ønsker gjerne tilbakemeldinger og tips til tegningene..
Første etasje består av "soveromsavdeling" med to barnerom og bad, vaskerom, garderoberom (der vi kommer til å ha alt vårt yttertøy til hverdagsbruk og for alle årstider) og treningsrom. Vi har også garasje med bod/teknisk og ei bod hvor vi også vil ha en dusj i forbindelse med fridykkingsutstyr (hvor vi også kan spyle klærne til barna når de er fulle av gjørme).
Andre etasje er stue har spisestue og kjøkken i åpen løsning, samt TV-avdeling med skyvedører, slik at barna kan kose seg med film samtidig som vi voksne kan prate på stua. Skyvedører fra kjøkkenet ut på verandaen. Her har vi også en egen soveromsavdeling, med et tredje barnerom, bad, og hovedsoverom. Her skal vi ha klessjakt ned til vaskerommet.
Utsikt fra stue er mot nord, slik at vi må planlegge veranda og uteområdet i forhold til solen.




Alt av forslag til forbedringer mottas med takk!
Jeg er usikker om dere kan ha skyvedør mellom garderoben og gangen. Vi fikk hvert fall beskjed om at vi ikke kunne ha det fordi rommet skal fungere som en sluse fra garasjen og døren derfor må være gasstett.
Her står det litt om mål på trapper som jeg håper kan være hjelpsomt: http://trappekompaniet.no/trappeinfo/trappetyper-og-maal/
Takk for innspill Lien123, jeg hadde ikke tenkt på slagretningen, så den skal jeg forandre med en gang. Den kunne jeg fort ha angret på litt for sent!
Det med skyvedøra var jeg litt redd for ja, det skal jeg sjekke opp.
Takker for hjelpen!
Grunnen til at jeg har laget den lille gangen, er at på tross av at det er "unyttige" kvadratmeter, ønsker jeg å ha soverommene litt adskilt fra stuen.
Vi har foreløbig bare ett barn, men hvis verden går slik vi ønsker det nå, blir det to barn til når huset er ferdig bygget. Tanken er at soverommet ved siden av vårt blir bebodd av det til enhver tid minste barnet, og at badet der blir brukt av barnet, samt gjester. Jeg ønsker for vår egen del at det skal være praktisk å ha dette badet når vi skal begynne på'n igjen med bleier til et par barn, og da også dusj.
Jeg kan også se for meg at når man har tre tenåringer som skal være med på alt av aktiviteter, er det greit at de har tilgang til to dusjer.
Jeg vil også ha gangen der for å dempe litt støy hvis man for eksempel har gjester i stua på kveldstid, og barnet skal sove. Barnet kan også da gå på toalettet på natta i fred og ro, samt at det blir litt mer privatliv for gjester når de skal låne toalettet, så de slipper å sitte med kun ei dør som skiller dem fra selskapet i stua..
Men jeg takker så mye for forslaget!
Er nok flere plasser det kunne ha vært tatt inn litt, men jeg innser hvor vanskelig det faktisk er å få rommene til å gå opp med hverandre i fornuftige løsninger. Og jeg vil selvsagt ha det litt åpent og luftig..
Setter stor pris på at du tok en titt