2,289
12
1
Planlegging av vår drømmebolig
3
0
Vi er godt i gang med planlegging av vår drømmebolig.
Vi er forsatt kun tidlig på planlegging stadige, og ønsker og finne ut av mulig selv før vi går til arkitekt byggefirma osv.
Til nå har vi tegnelt litt selv i Roomsketcher, og jeg har prøvd meg på noen fasadetegninger i sketchup.
(vet at vinduene på sidene ser veldig rare ut, ble bare kasten inn noe i første omgang)
Dette er kun de første utkasterne som er laget, og kunne tenkt meg noe innput for vi tegner videre. Ser oss fort blinde på diverse ting
Ønsker gjerne flest mulig kommentarer: På alt fra, planløsning, fasade, unødvenige fordyrende valg osv.






Vi er forsatt kun tidlig på planlegging stadige, og ønsker og finne ut av mulig selv før vi går til arkitekt byggefirma osv.
Til nå har vi tegnelt litt selv i Roomsketcher, og jeg har prøvd meg på noen fasadetegninger i sketchup.
(vet at vinduene på sidene ser veldig rare ut, ble bare kasten inn noe i første omgang)
Dette er kun de første utkasterne som er laget, og kunne tenkt meg noe innput for vi tegner videre. Ser oss fort blinde på diverse ting
Ønsker gjerne flest mulig kommentarer: På alt fra, planløsning, fasade, unødvenige fordyrende valg osv.






Fint hus dere planlegger. Og stort! Rundt 370 kvm?
Jeg ville nok gjort litt endringer på planløsningen.
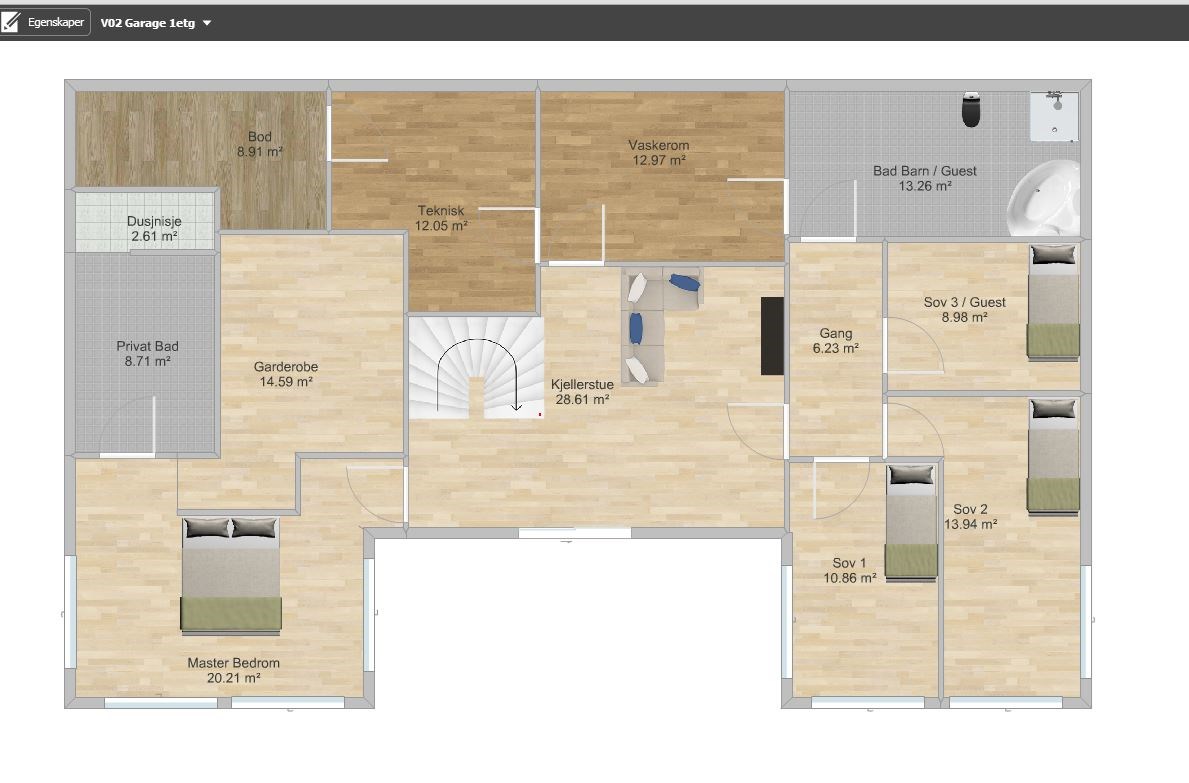
- For det første synes jeg gangen oppe ble veldig stor. Nesten 40 kvm som ikke kan brukes skikkelig. Hvor skal dere ha yttertøy?
- Gangen mellom garasje og bod er veldig smal. Hva skal denne brukes til?
- Jeg synes det er litt mye vinkler og kroker.
- Det virker litt upraktisk å måtte gå gjennom tre rom for å komme til boden nede.
- Matbod og spesielt kjølerom synes jeg er litt langt vekke fra kjøkkenet.
- Jeg ville vurdert å ha litt skyvedører noen steder.
- Trenger dere et så stort teknisk rom?
- På master bedroom ville jeg tatt vekk den ene loddrette veggen man går mot med en gang man åpner døren. Da slipper man å gå helt rundt for å komme til klærne og badet.
- Jeg går utifra det skal være vinduer på gjesterom og disponibelt.
- Kanskje vurdere en litt bedre trapp når dere har så god plass? Med repos f.eks.
- Jeg ville hatt et overbygg ved inngangen
Trur du med hell kunne kuttet bredden på huset med en par meter og ikke tapt noe funksjon.
Er det hundegård du har tegnet inn bak garasjen?
Takker for mage gode tilbakemeldinger
Ja, blir vel ca 160 i grunnflate X 2 + Garagen slik som det er tegnet nå. Starter planleggingen med de størrelser og rom vi ønsker oss, så får en heller komme med kompromisser etterhvert om det blir for dyrt.
Gangen oppe er det det "STØRSTE :P" problemet ja. Sliter med og komme på gode løsninger for bedre utnyttelse der.
Vi tenker og bruke garageinngagen selv, og da var den lange smale "gangen" tenkt egentlig mer som en garderobe med knagger og smale skap på begge sider. Der en går inn og henger i fra seg og tilbake.
Kanskje det var en ide å få plass til en dør i tillegg mellom innebyggde høyskap og kjøkkenbenk. Kommer da rett inn i matbod, kjølerom?O:)
Planen for boden nede er og ha ting der som ikke skal brukes ofte, Julepynt ect.
Har ingen aning om hvor stort tekninsk rom vi trenger, men tanken er vbv med v-v varmepumpe fra vannet nedforbi, sentralstøvsuger ol. Tilpasser nok størrelsen etter behov, og lager vaskeromet større om mulig. Eventuelt fjerner hele veggen der.
Trappen valgte jeg bare det første og beste som var i roomsketcher. Men ønsker selfølgelig så brei og praktisk som mulig, siden vi ikke får noe utgang med trapp fra kjøkken og ned på storterrassen nede som var noe vi hadde lyst på.
Lur ide med master bedroom
Skal inn flere vinduer ja, og overbygg har vi snakket om, men ikke kommet med på noen tegninger.
Jepp, Hundegård som er tiltenkt bak garagen, med egen dør fra garagen. Så slipper vi og gå ut, for og slippe hunden ut eller inn av hundegård
Ikke de store endringene foreløbig, men har prøvd og ta til meg flere av de kommentarene vi likte. Tar gjerne imot flere kommentarer
Wc oppe trenger ikke være større enn 3kvm. (Evt. 2kvm uten snusirkel).
For øvrig bør yttergang/ytterdør henge sammen med garasjeinngang slik at man har en felles skitten sone. Mulig å speilvende trapp, ytterdør og wc slik at ytterdør kommer nærmere garasjen?
- Rådgivende ingeniør areal og samferdsel som yrke.
- Personlig opptatt av byggtekniske løsninger. Har også et lite gravefirma sammen med min far.
Skriver her som privatperson om ikke annet er beskrevet.
12kvm kjølerom? Har vært borti restauranter som omsetter for over 30 millioner i året som har betydelig mindre kjølerom
Kunne ikke vært mer enig! Matbid på nesten 6 kvm i tillegg til 12 kvm kjølerom? Og WIC på hele 14 kvm? Vi har et WIC på 6 kvm og tro meg dette er et ganske stort rom med MYE plass til klær! Gjør heller noe med hovedinngangen, tegn inn flere skap eller eget garderoberom til oppbevaring av ytreklær og sko (barn vokser veldig fort, det blir mye klær!)