295
2
0
Plassering på baderom
3
0
Hei.
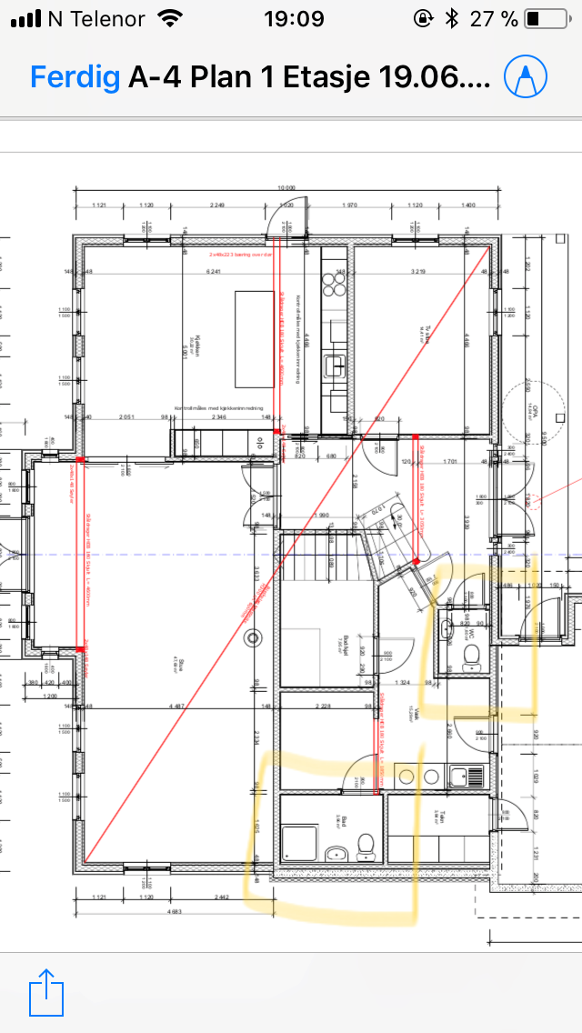
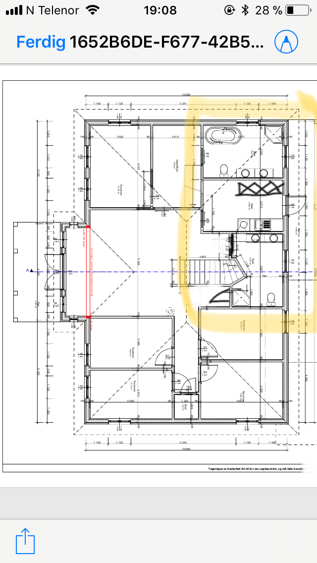
Vi ønsker råd om hvordan vi skal plassere baderomsmøbler i huset vårt, særlig i 2.etg. Viser til vedlagte tegninger. Tar med 1.etg også om det har noen praktisk betydning, og om noen har veldig bra tips der😊
1) På det øverste badet skal vi ha noen skap mot vaskerommet. Sikkert litt vanskelig å forklare, men poenget er at jeg skal kunne legge klær/håndklær i skapet på vaskerommet, og så kan vi hente det på badet. Jeg ønsker to skap, og foran det ene bør det være plass til stellebord i en periode. Etterhvert flytter vi nok stellebord inn på det andre badet. Vi er relativt fleksible på bredden på skapene, men de bør være minst 50+50 cm. Skapene bør være omtrent der jeg har tegnet inn noen kryss, for å utnytte hjørnet i vaskerommet noe. Ellers på dette badet ønsker vi dobbel vask, toalett, dusj-nisje (enkel dusj, ikke kabinett), og badekar. Ønsker noe ovalt-lignende, altså ikke helt rektangulært eller trekantet. Vi har litt utfordringer med vinduer, men disse kan ikke flyttes.
2) det andre badet (ved trappen) ønsker vi dusj (enkel-dusj, ikke kabinett), toalett og enkel vask. Jeg har også tenkt at her hadde det kanskje vært kjekt med en forlenget benk - hvis noen har positiv erfaring. Her er også døra flyttet pga noen endringer. Jfr mine streker.
Håper dette var forklarendes, spør hvis ikke. Håper på mange kjekke forslag til løsninger😊 på forhånd tusen takk!
Vi ønsker råd om hvordan vi skal plassere baderomsmøbler i huset vårt, særlig i 2.etg. Viser til vedlagte tegninger. Tar med 1.etg også om det har noen praktisk betydning, og om noen har veldig bra tips der😊
1) På det øverste badet skal vi ha noen skap mot vaskerommet. Sikkert litt vanskelig å forklare, men poenget er at jeg skal kunne legge klær/håndklær i skapet på vaskerommet, og så kan vi hente det på badet. Jeg ønsker to skap, og foran det ene bør det være plass til stellebord i en periode. Etterhvert flytter vi nok stellebord inn på det andre badet. Vi er relativt fleksible på bredden på skapene, men de bør være minst 50+50 cm. Skapene bør være omtrent der jeg har tegnet inn noen kryss, for å utnytte hjørnet i vaskerommet noe. Ellers på dette badet ønsker vi dobbel vask, toalett, dusj-nisje (enkel dusj, ikke kabinett), og badekar. Ønsker noe ovalt-lignende, altså ikke helt rektangulært eller trekantet. Vi har litt utfordringer med vinduer, men disse kan ikke flyttes.
2) det andre badet (ved trappen) ønsker vi dusj (enkel-dusj, ikke kabinett), toalett og enkel vask. Jeg har også tenkt at her hadde det kanskje vært kjekt med en forlenget benk - hvis noen har positiv erfaring. Her er også døra flyttet pga noen endringer. Jfr mine streker.
Håper dette var forklarendes, spør hvis ikke. Håper på mange kjekke forslag til løsninger😊 på forhånd tusen takk!
Blian
(trådstarter)
3
0
Blian
(trådstarter)
3
0