1,357
3
0
Rossneset Panorama
3
Fitjar
0
Da var det endelig vår tur til å bygge hus. Vi gleder oss veldig til prosessen med å få "funkis" huset på tomten vi er så fantastisk fornøyd med.
Vi er i gang med grunnarbeidet, og det går an å få hyppige oppdateringer på bloggen: Rossneset Panorama. Eg vil prøve å oppdatere litt her i tillegg, men det blir nok bloggen som blir prioritert.
Tomten ligger på Fitjar i eit nytt byggefelt ved navn Rossneset. Det er eit byggefelt som har mange ledige tomter, men er allikevel godt opparbeidet med veier, belysning, busskur, fortau, områder for lekeplass og barnehage. Absolutt alle tomtene har vann, kloakk, strøm og fiber til tomtegrensen.
Legger ved litt bilder av planene, for de som måtte være nysgjerrige.
3D Snitt av huset:

Snitt av huset:

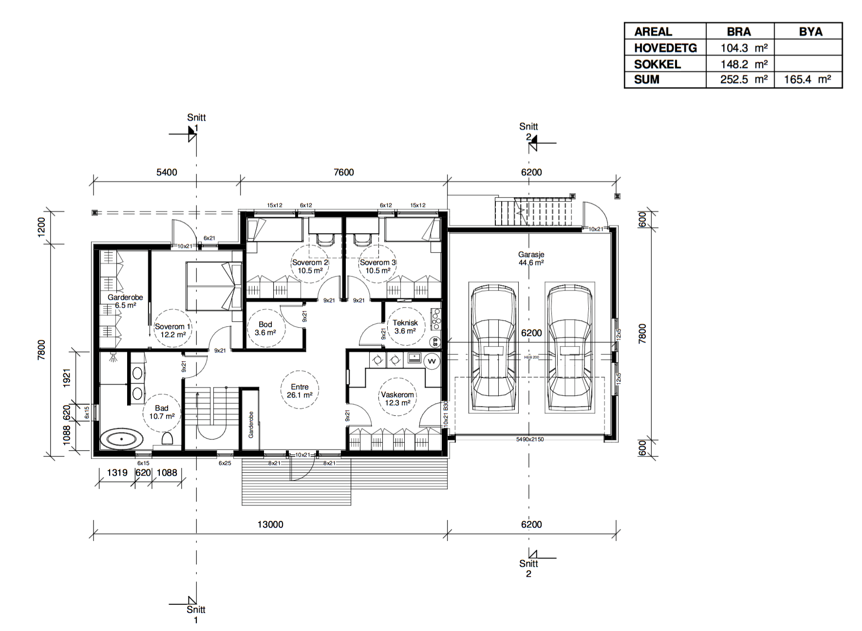
1 Etg. av huset:

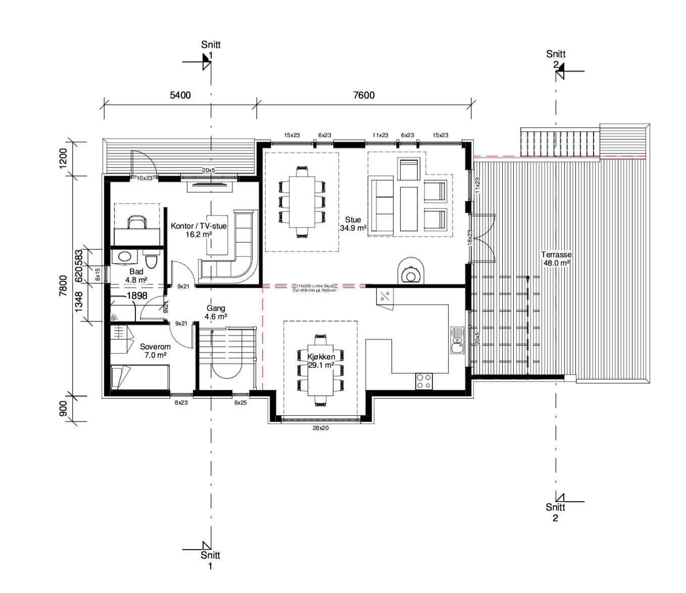
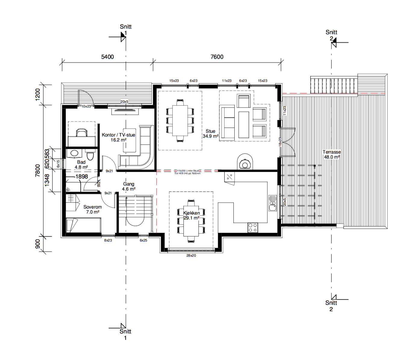
2 Etg. av huset:





Vi er i gang med grunnarbeidet, og det går an å få hyppige oppdateringer på bloggen: Rossneset Panorama. Eg vil prøve å oppdatere litt her i tillegg, men det blir nok bloggen som blir prioritert.
Tomten ligger på Fitjar i eit nytt byggefelt ved navn Rossneset. Det er eit byggefelt som har mange ledige tomter, men er allikevel godt opparbeidet med veier, belysning, busskur, fortau, områder for lekeplass og barnehage. Absolutt alle tomtene har vann, kloakk, strøm og fiber til tomtegrensen.
Legger ved litt bilder av planene, for de som måtte være nysgjerrige.
3D Snitt av huset:

Snitt av huset:

1 Etg. av huset:

2 Etg. av huset:





Signatur
Stian Torland og Lillian Kjørberg
Http://rossnesetpanorama.com
De har vert flinke og effektive på tomten. Det er endelig klart for bygging av grunnmur, så nå venter vi bare på elementene, så skal vi sette i gang med forberedelsene. Denne jobben gjør vi selv, så overtar Engevik & Tislevoll med bygget.
Følg med videre på bloggen: Rossneset Panorama
Stian Torland og Lillian Kjørberg
Http://rossnesetpanorama.com