4,484
7
1
thoem: Tranan Spesial fra Fiskarhedenvillan
33
0
Etter å ha fulgt med på diverse husprosjekter her på ByggeBolig.no så tar vi steget å starter vår egen lille byggetråd.
Så vi får ta den korte versjonen og ikke gå så veldig detaljert i arbeidet som er gjort.
Er det noen spørsmål er det bare å skrike ut!
BAKGRUNN
Familie på 3. Vi er 25, 26 og en liten gutt på 2 år.
Vi kjøpte ett rekkehus i Trondheim som vi hadde planer om å bo i lenge.
Etter å ha pusset opp 3 etasjer følte vi at bylivet kanskje ikke var noe for vår lille familie, så vi ville til bygda.
Vi tok da kontakt med en god del husleverandører.
Valget falt til slutt på Fiskarhedenvillan og huset Tranan.
Etter en god del leting etter den perfekte tomta kom vi over en tomt i hjemkommunen til mannen i huset.
Vi la inn bud på tomta og fikk tilslaget.
Tomten er på ett mål og helt flat.
Så da var det bare å starte prosessen med byggesøknad.
HUSET
Huset er en Tranan som er gjort om hele planløsningen og utbygg.
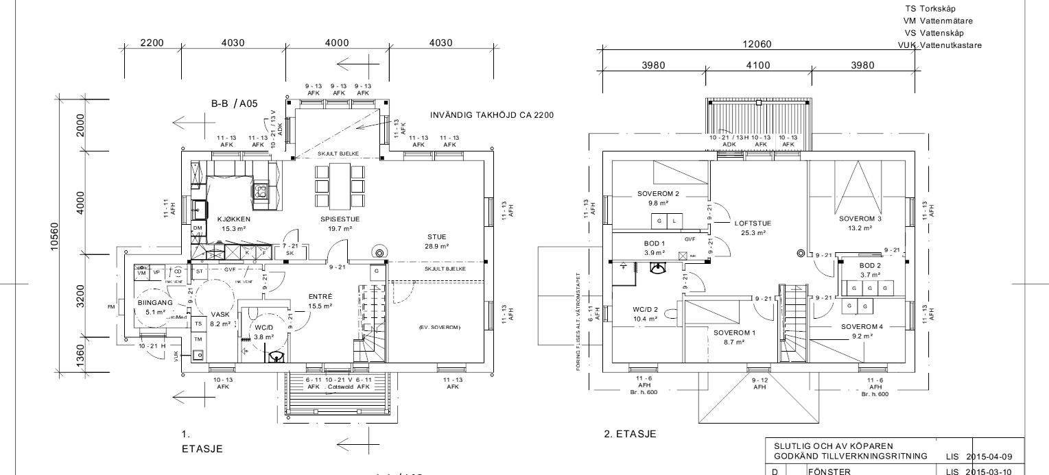
Totalt areal vil bli 189 m2
100,5 m2 nede og 88,5 m2 oppe.
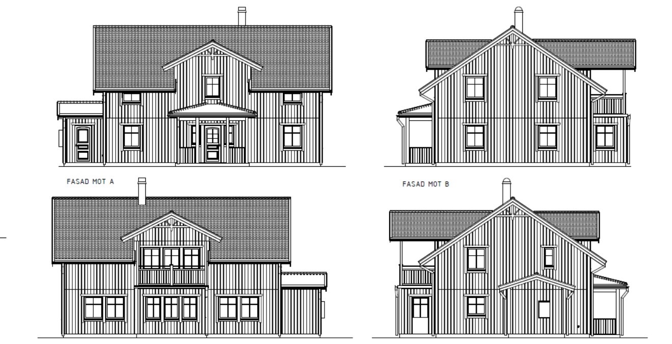
Vedlagt ligger plantegninger av første og andre etasje.
Samt tegninger av huset.



Utsikten fra tomten! Herlig!
FORELØPIG PROSESS
Byggesøknad ble godkjent og bygging kunne starte.
Det første som ble det "store" budsjettsprekket var vel at vi måtte ha litt sprengningsarbeid på tomten da grunnfjellet var helt opp under torva.
Så etter en befaring med grunnentreprenør ble det besluttet å sprenge ut fjellet for å unngå setningsskader i huset.
Kan vel ikke si at vi angrer på det!
Under kommer bilder fra grunnarbeidet. Som dere kan se så var det litt fjell på tomta.

Endel fjell som skal sprenges..

Snø i fjella!

Boring pågår!

Noe fjell som har blitt sprengt..



Ferdig sprengt og planert sprengmasse. Her er det god drenering!

Fått lagt pute og komprimert.


Ringsmurselementer fra Vartdal Plast satt opp.

Jeg hadde ikke i min villeste fantasi sett for meg at tomta skulle bli seende sånn ut. Fantastisk arbeid med gravemaskin! Her blir det terrasse og grønn plen!

Fint arbeid med gravemaskin!

Legging av isolasjon


Klart for radonsperre

Radonsperre lagt

Ringmur til garasje. 7x7 meter.

Støping av plate ferdig. Her pusses det!
Leveranse av huset
Huset ble levert i mandag i uke 29. Her er noen bilder av huset liggende strødd utover tomta.









Til nå har snekkerene hold på i 2 uker med huset.
Siden jeg er på jobb i 2 uker til så har jeg bare fått tilsendt bilder.
Foreløpig:






Det var alt for i kveld!
Oppdatering kommer fortløpende!
Så vi får ta den korte versjonen og ikke gå så veldig detaljert i arbeidet som er gjort.
Er det noen spørsmål er det bare å skrike ut!
BAKGRUNN
Familie på 3. Vi er 25, 26 og en liten gutt på 2 år.
Vi kjøpte ett rekkehus i Trondheim som vi hadde planer om å bo i lenge.
Etter å ha pusset opp 3 etasjer følte vi at bylivet kanskje ikke var noe for vår lille familie, så vi ville til bygda.
Vi tok da kontakt med en god del husleverandører.
Valget falt til slutt på Fiskarhedenvillan og huset Tranan.
Etter en god del leting etter den perfekte tomta kom vi over en tomt i hjemkommunen til mannen i huset.
Vi la inn bud på tomta og fikk tilslaget.
Tomten er på ett mål og helt flat.
Så da var det bare å starte prosessen med byggesøknad.
HUSET
Huset er en Tranan som er gjort om hele planløsningen og utbygg.
Totalt areal vil bli 189 m2
100,5 m2 nede og 88,5 m2 oppe.
Vedlagt ligger plantegninger av første og andre etasje.
Samt tegninger av huset.



Utsikten fra tomten! Herlig!
FORELØPIG PROSESS
Byggesøknad ble godkjent og bygging kunne starte.
Det første som ble det "store" budsjettsprekket var vel at vi måtte ha litt sprengningsarbeid på tomten da grunnfjellet var helt opp under torva.
Så etter en befaring med grunnentreprenør ble det besluttet å sprenge ut fjellet for å unngå setningsskader i huset.
Kan vel ikke si at vi angrer på det!
Under kommer bilder fra grunnarbeidet. Som dere kan se så var det litt fjell på tomta.

Endel fjell som skal sprenges..

Snø i fjella!

Boring pågår!

Noe fjell som har blitt sprengt..



Ferdig sprengt og planert sprengmasse. Her er det god drenering!

Fått lagt pute og komprimert.


Ringsmurselementer fra Vartdal Plast satt opp.

Jeg hadde ikke i min villeste fantasi sett for meg at tomta skulle bli seende sånn ut. Fantastisk arbeid med gravemaskin! Her blir det terrasse og grønn plen!

Fint arbeid med gravemaskin!

Legging av isolasjon


Klart for radonsperre

Radonsperre lagt

Ringmur til garasje. 7x7 meter.

Støping av plate ferdig. Her pusses det!
Leveranse av huset
Huset ble levert i mandag i uke 29. Her er noen bilder av huset liggende strødd utover tomta.









Til nå har snekkerene hold på i 2 uker med huset.
Siden jeg er på jobb i 2 uker til så har jeg bare fått tilsendt bilder.
Foreløpig:






Det var alt for i kveld!
Oppdatering kommer fortløpende!
Denne tråden var for øvrig midt i blinken for oss som har tomt og er i planleggingsstadiet. Vurderer FHV. Hvordan gikk dere fram i forhold til FHV? Snakket dere med lokale kontoret i Trondheim? Erfaring derfra?
Vi er meget fornøyd med tomten og hvordan den ble etter at vi fikk opparbeid den skikkelig.
Planløsning satt vi også å funderte lenge på siden vi ønsket stort bad og 4 soverom i øveretasje.
Vi er veldig fornøyd med at vi valgte FHV.
Vi tok kontakt med FHV i Trondheim. Tok ett møte med dem og pratet om hvordan vi ville ha det. Hadde enda ikke valgt hvilket hus vi ville ha, men etter en visning på en vanlig Tranan på Byåsen var valget klart.
Vi valgte FHV fordi vi syns vi fikk mye for pengene når det gjelder hus og hva som følger med i prisen.
når det skal sies har vi tatt endel tilvalg som luft/vann varmepumpe og vannbåren varme, oppgradering av peisovn etc.
Så koster det ikke noe ekstra å få tegnet om huset, prisen på utbygg/tilbygg er heller ikke noe å stusse over.
Vi var i starten veldig usikre på hvordan vi ville ha huset, så da tok vi ett møte med FHV i Trondheim og fikk se på tegninger av hvordan andre som hadde bygd Tranan hadde gjort det. Her var det mye forskjellig når det kommer til både plantegning og utseende på huset. Dette fikk virkelig kverna igang.
Har bare positivt å si om FHV i Trondheim. Vår kontakt, Tommy er en som liker å ha alt på stell og jeg vil si han ikke er som selgere flest. Han lever virkelig for det han driver med og har skikkelig bra peiling. Han er der virkelig for kundene sine.
Han er ærlig og sier hva han mener og det har vi satt stor pris på.
Vi angrer iværtfall ikke ett sekund på at vi valgte FHV.
Vil virkelig anbefale dere å ta kontakt med Tommy i FHV Trondheim om dere har planer om husbygging.
Da har min far fått støpt fundament til inngangspartiet.
Har troen på at snekkerene får satt opp inngangsparti og lagt takstein iløpet av uken.
Blir spennende å se.
Så da lurte jeg på hvordan prosessen på dette var og hvordan skal vi gjøre det for at huset skal tørke fortest mulig?
Er det noen som har erfaring med dette?
Noen som også vet hvor lang tid en sånn tørkeprosess tar før isolasjonen kan settes inn?
Det begynner å komme seg. Har fått lektet ut veggene på huset og taket gjennstår.
Planen er å få huset ferdig utvendig til fredag. Spent på å se om det skjer.
Her kommer kjøkkenet.
Her blir gjestebad og vaskerom. Ut mot Biinngang. Har å sette opp innvendige vegger.
Fremsiden av huset.
Baksiden av huset.
Så spennende å følge byggingen av huset deres, vi har planer om å bygge Tranan neste år:) vi har tomt, men den er ikke byggeklar før sommeren 2016.
Hvordan går det?
Er i oppstartsfasen av husbygging selv og er spent på hvordan det har gått med dere!