11,621
23
2
stigje: Vi bygger herskapelig boligpartner hus !
30
0
Etter mye frem og tilbake begynner vi å nærme oss innsending av søknad for vårt første husprosjekt
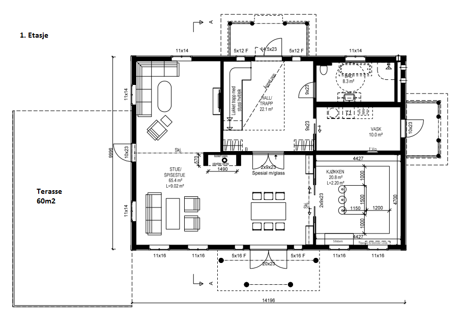
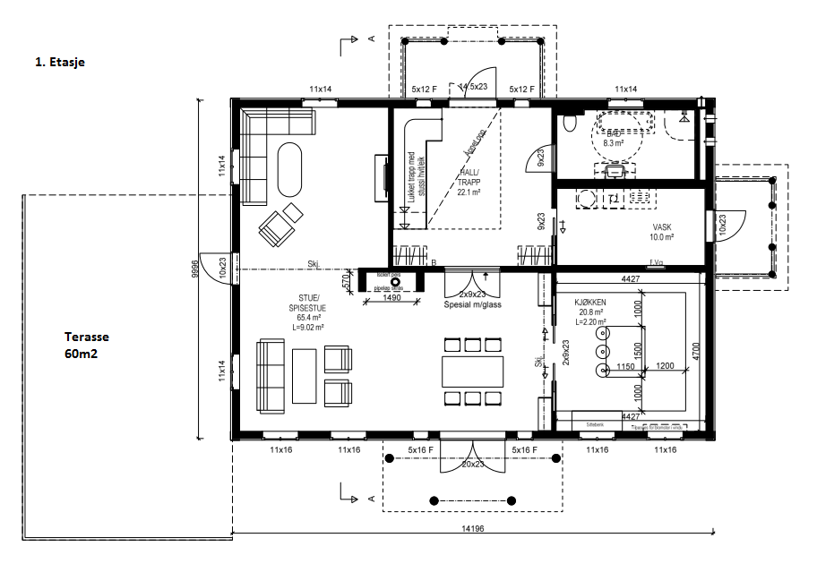
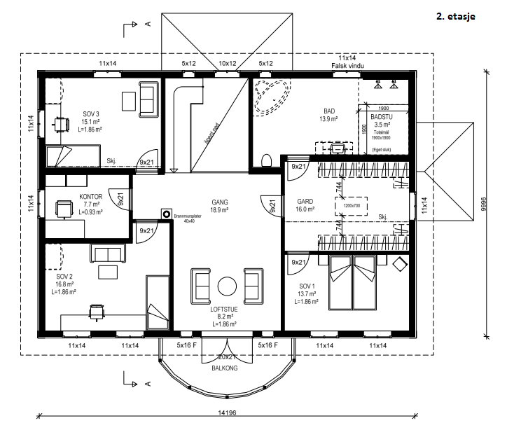
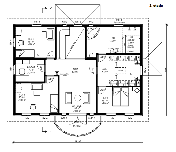
Huset tar utgangspunkt i huset Sagatun fra boligpartner med en god del endringer.
http://boligpartner.no/Ferdighus/Herskapelig/Sagatun
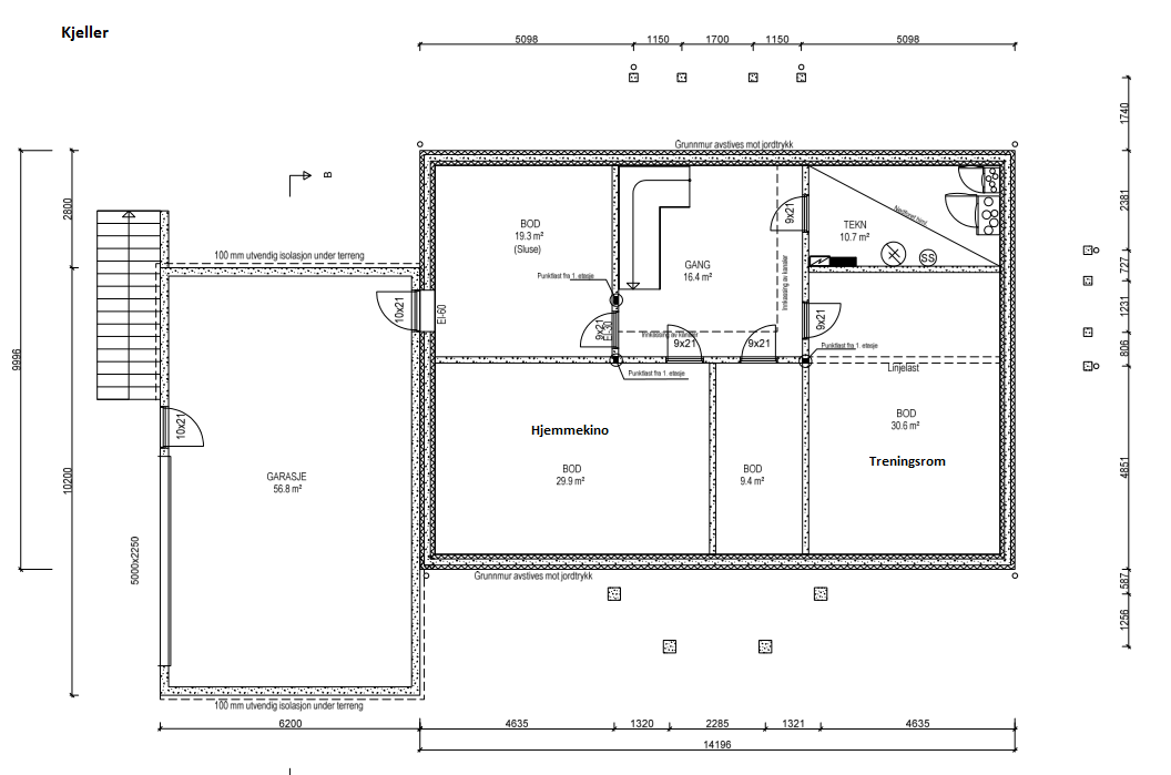
Har utvidet huset 1,2 meter i lengderetningen og har lagt til kjeller under bakken tenkt brukt til hobbyrom, treningsrom, hjemmekino, boder, teknisk rom, gjestesoverom evt. annet. Garasje(med terasse oppå) har tilknytning til kjeller. Skal ikke ha utleie(det går heller ikke siden kjelleren er helt under bakken). Takhøyden er senket til 25 grader for å holde oss innenfor reguleringsplanen som er maks 9 meter mønehøyde.
Legger planene ut her for inspirasjon til andre og for innspill på planløsning, størrelse og plassering av huset osv
Huset tar utgangspunkt i huset Sagatun fra boligpartner med en god del endringer.
http://boligpartner.no/Ferdighus/Herskapelig/Sagatun
Har utvidet huset 1,2 meter i lengderetningen og har lagt til kjeller under bakken tenkt brukt til hobbyrom, treningsrom, hjemmekino, boder, teknisk rom, gjestesoverom evt. annet. Garasje(med terasse oppå) har tilknytning til kjeller. Skal ikke ha utleie(det går heller ikke siden kjelleren er helt under bakken). Takhøyden er senket til 25 grader for å holde oss innenfor reguleringsplanen som er maks 9 meter mønehøyde.
Legger planene ut her for inspirasjon til andre og for innspill på planløsning, størrelse og plassering av huset osv












https://mega.nz/#!DIsVWTrY!Hsaxp09xPhKfzBH6reR8sHdOqn4AtjO9d3x8XkKysVY
en må i tillegg laste ned et 3D viewer program :
http://www.graphisoft.com/downloads/bimx/bimx_desktop.html
Kjeller 124,9 BRA
Hovedplan 131,8 BRA
Etg. plan 131,8 BRA
Garasje 56,8 BRA
Bruksareal bolig 445 BRA
Totalt bruksareal 462 BRA
P-rom : 263 m2
Kjeller er foreløpig ikke med i p-rom men kan vel kanskje inngå senere siden har to rømningsveier fra kjeller(trapp opp og en dør til garasjen)....
Noen forhåpninger om når dere kan starte byggingen?
Håper å komme i gang med graving i løpet av sommeren / tidlig høst i år, men det er jo avhengig av om søknaden går fort gjennom hos kommunen.
Får håpe søknadsprosessen går bra!
Mulig du har skrevet det allerede, men hvor bygger dere? Trenger ikke være veldig spesifikk - øst, vest, nord eller sør holder
Skal bygge i en nabokommune til Bergen. Så blir herskapelig på strilelandet