1,551
7
1
Vi bygger tilpasset Milano fra BoligPartner
12
0
Vi har nylig gått til innkjøp av en tomt i Kongsvinger og har falt på Milano fra BoligPartner som hustype.
Vi har ikke vært veldig lenge i planleggingen, men enkelte ting begynner ta form.
Har brukt en del tid i sketchup blant annet for å visualisere fasade med evt. tilpasninger osv.
Ingenting er fastsatt enda, og ikke fått tilbakemelding fra BoligPartner om tilpasninger lar seg gjennomføre, men vi legger ut her for å få mange gode innspill fra de som allerede er godt bevandret i husbyggeprossessen og har masser av erfaring, eller andre kritiske blikk. Alle innspill tas imot med takk!
Bad i 2 etg. er stort og tomt, men det blir mye mulig et badsturom(i rommet) som tar plass.





Vi har ikke vært veldig lenge i planleggingen, men enkelte ting begynner ta form.
Har brukt en del tid i sketchup blant annet for å visualisere fasade med evt. tilpasninger osv.
Ingenting er fastsatt enda, og ikke fått tilbakemelding fra BoligPartner om tilpasninger lar seg gjennomføre, men vi legger ut her for å få mange gode innspill fra de som allerede er godt bevandret i husbyggeprossessen og har masser av erfaring, eller andre kritiske blikk. Alle innspill tas imot med takk!
Bad i 2 etg. er stort og tomt, men det blir mye mulig et badsturom(i rommet) som tar plass.





Tror ikke det blir noe problem med skapplass. Daglig servise, glass osv blir i skuffene, og annet som ikke brukes så ofte kan stå i skapet under baksiden av øya.
Dere har jo mye tid til å tenke kjøkken, så dere kan gjerne ta en tur å se etterhvert som vi har flyttet inn.
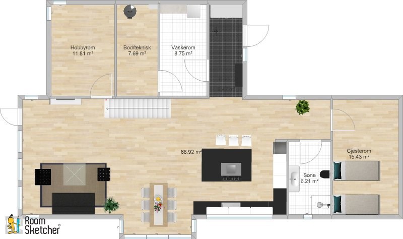
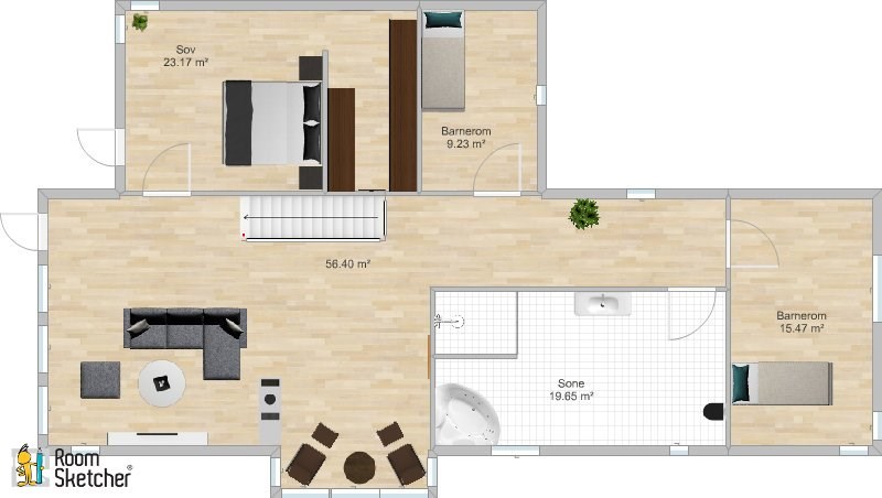
Legger ved nye plantegninger som vi har jobbet med i det siste, vi har endret litt på løsningene i gang, vaskerom, teknisk, samt litt oppe i hovedsoverom og WIC. De nye tilpasningene forutsetter nå at vi hekter av garasjen fra huset og flytter det separat til en annen plass på tomten. Da faller det også mer naturlig å ha inngang på bakside vs. foran eller på siden av utstikker.