194    3    0  

Bærende konstruksjon? Bilder i tråd

 380     0
/

Hei

Har revet vegg fra tv stue til soverom i kjeller tynn vegg (den til Venstre i bilde) og ikke bærende konstruksjon.

Er interessert i åpne mer men denne veggen er ganske tykk. Fra bildet (den til høyre). Virker som den ikke er bærende?

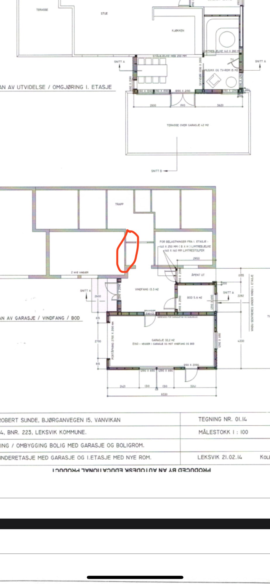
Har ikke åpnet veggene enda for å se. Legger med et bilde når huset ble bygget på mye i 2017

Bærende konstruksjon? Bilder i tråd - BEF9EEDD-4111-42CD-8174-96CBB4BAAD5A.jpeg - henrikhoe
Bærende konstruksjon? Bilder i tråd - 817B2B2C-1B99-48E7-84C1-D29AFF11B8C2.jpeg - henrikhoe
Husk dette under oppussing: Lagre kvitteringer, bilder og avtaler i Boligmappa. Logg inn her

   #1
 6,507     tromsø     0
Noen bilder hjelper. Det veggene holder kanskje litt jordtrykk. Holder hjørne ute.
  (trådstarter)
   #2
 380     0
Noen bilder hjelper. Det veggene holder kanskje litt jordtrykk. Holder hjørne ute.



Ser ut som en drager, selve veggen er ganske tynn ser jeg, men går en drager derfra til muren og hviler på den, virker det som
Bærende konstruksjon? Bilder i tråd - IMG_3970.JPG - henrikhoe
Bærende konstruksjon? Bilder i tråd - IMG_3971.JPG - henrikhoe
   #3
 6,507     tromsø     0
Det går å ta av plater forsiktig og sjekke hva som er bak ? Hvordan ser det ut utvendig ? Mye trykk eller bare halvfylt? Vegg mellom garasje og soverom holder mye trykk og burde holde ? Det er vel 6 meter som er maks mellom avstiving ? https://www.leca.no/sites/leca.no/files/pdf/Leca%20Byggebok%20brosjyre.pdf
Selv om en skulle behold en avstiving i hjørne, så er vel en liten vegg på 120cm nok ?