340
13
0
Bod til utleiehybel i tomannsbolig
6
0
Hei
Vi eier 2. etasje i en tomannsbolig. (TB2)
Svigermor eier 1. etasje. (TB1)
Boligen er seksjonert TB1 og TB2 og felles.

Vi som bor i TB2 har fått ok av svigermor til å reseksjonere slik at bod 1, 2, 3 og 4 skal bli TB2.
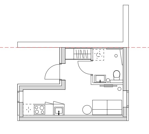
Bodene er helt nede ved carport.
Bodene har egen inngang ved siden av hovedinngangen (rødt kryss).
Etter å ha pratet med plan,bygg og eiendom i oslo kommune og skattetaten så er vi litt i tvil om hvordan vi kan leie ut denne skattefritt. Skattetaten sier de ikke vil veilede oss i hvordan vi skal slippe å betale skatt og plan og bygg kan ikke si noe.
Ettersom det ikke er felles inngang, så har vi kommet frem til at vi må bruke en ansvarlig søker for å levere inn søknad, tegninger osv. Det er greit nok, men slik jeg tolker det da vil dette da bli en ny enhet, vil det da si at det vil bli en "ny adresse" og likestilles som en sekundærbolig? Og dermed skattepliktig?
Dette er forøvrig tegningene så langt og det vil bli to store hemser med skråtak til oppbevaring/soving.

Vi eier 2. etasje i en tomannsbolig. (TB2)
Svigermor eier 1. etasje. (TB1)
Boligen er seksjonert TB1 og TB2 og felles.

Vi som bor i TB2 har fått ok av svigermor til å reseksjonere slik at bod 1, 2, 3 og 4 skal bli TB2.
Bodene er helt nede ved carport.
Bodene har egen inngang ved siden av hovedinngangen (rødt kryss).
Etter å ha pratet med plan,bygg og eiendom i oslo kommune og skattetaten så er vi litt i tvil om hvordan vi kan leie ut denne skattefritt. Skattetaten sier de ikke vil veilede oss i hvordan vi skal slippe å betale skatt og plan og bygg kan ikke si noe.
Ettersom det ikke er felles inngang, så har vi kommet frem til at vi må bruke en ansvarlig søker for å levere inn søknad, tegninger osv. Det er greit nok, men slik jeg tolker det da vil dette da bli en ny enhet, vil det da si at det vil bli en "ny adresse" og likestilles som en sekundærbolig? Og dermed skattepliktig?
Dette er forøvrig tegningene så langt og det vil bli to store hemser med skråtak til oppbevaring/soving.

Personlig hadde jeg droppet prosjektet. Med et så lite krypinn risikerer en mye skifting av leieboere og perioder uten utleie. To boenheter kan også trenge boder om det ikke er fler i kjeller.
Direktorater har uttalt at dersom man holder seg innenfor husets originale vegger, så vil en slik felles inngang tolkes som en intern forbindelse (dermed normalt sett ikke ny boenhet). Dersom man bygger en ny felles inngang utenfor husets originale vegger, så vil det ikke være en intern gjennomgang.
Så du sier at uansett hva vi velger å gjøre her vil det bli ansett som en ny boenhet?
Nei 😊
Søk på «intern dør her på forumet, så finner du mange gode tråder
ja søker og ser at man må ha intern dør. problemet hos oss er vell at seksjonen TB1 er den eneste som "grenser" til bodene slik at man kan sette inn en dør? Vi som skal leie ut har jo seksjon TB2 på tegningen som er 2. etg. (altså den planen er ikke med på tegningen) Men det har kanskje ikke noe å si hvilken seksjon som grenser til boden? Man kan søke om bruksendring så lenge det er dør?
Jeg ringte om dette til plan og bygg i går og leste ordrett det du har skrevet der, og hun jeg snakket med sa bare "har aldri hørt om noen som har fått det godkjent"..
Har du noe kilder å vise til at et vindfang med hovedinngang og boddør kan telles som intern forbindelse?
https://dibk.no/globalassets/02.-om-oss/byggesaksdagene/byggesaksdagene-2016/presentasjoner/bjorn-are-wigtil.-bruksendring.pdf