1,317
4
1
Enebolig -> Tomannsbolig. Bygge om eller rive + ferdighus?
4
0
Hei! Har fått mye gode råd etter å lese diverse tråder fra forumet her opp igjennom. Har dog nå en problemstilling jeg håper dere flinke folk kan hjelpe med.
Jeg, min kone og hennes søster + familie har mulighet til å få kjøpt en svært attraktiv tomt i et villaområde sentralt i Oslo. Tomtene her er fryktelig dyre normalt sett, men det er delvis arv inne i bildet, noe som kan gjøre dette mulig for to småbarnsfamilier med bare ok pluss økonomi.
Huset som står der idag er en enebolig, og ble bygget i 1986. Huset ble bygget av en privatperson, men som visstnok er svært nevenyttig. Han la også sin stolthet i å bruke gode materialer. Dog har huset av diverse grunner dessverre ikke vært vedlikeholdt siden byggeåret, annet en en og annen "brannslukking" av den aller mest prekære sorten.
Vi har altså to alternativer
1. Rive huset som står der idag og bygge nytt. Etter en anbudsrunde med arkitekter og anslag på kvm-pris har vi slått oss til ro med at vi ikke har råd til å bygge arkitekttegnet, derfor står vi igjen med ferdighus. Her har vi sett på muligheter for eneboliger kjedet med carport imellom, samt en mer tradisjonell tomannsbolig. Vi ønsker her også å evt få bygget med 2 utleiedeler i kjeller.
2. Bygge på en ny del på huset som står der idag, totalrenovere eksisterende bygningsmasse, og dele dette opp i to tomannsboliger. Vi har vært i møte med en pensjonert arkitekt (venn av familien) som foreslo horisontaldelt tomannsbolig som det mest fornuftige. Begge familiene er dog enige om at det er vertikaldelt vi ønsker, med helt separate hager og uten innsyn til hverandre. Vi ønsker også at begge boenhetene skal ha utsyn mot veien, motsatt inndeling (på tvers) vil gi den ene parten betydelig dårligere lysforhold etc.
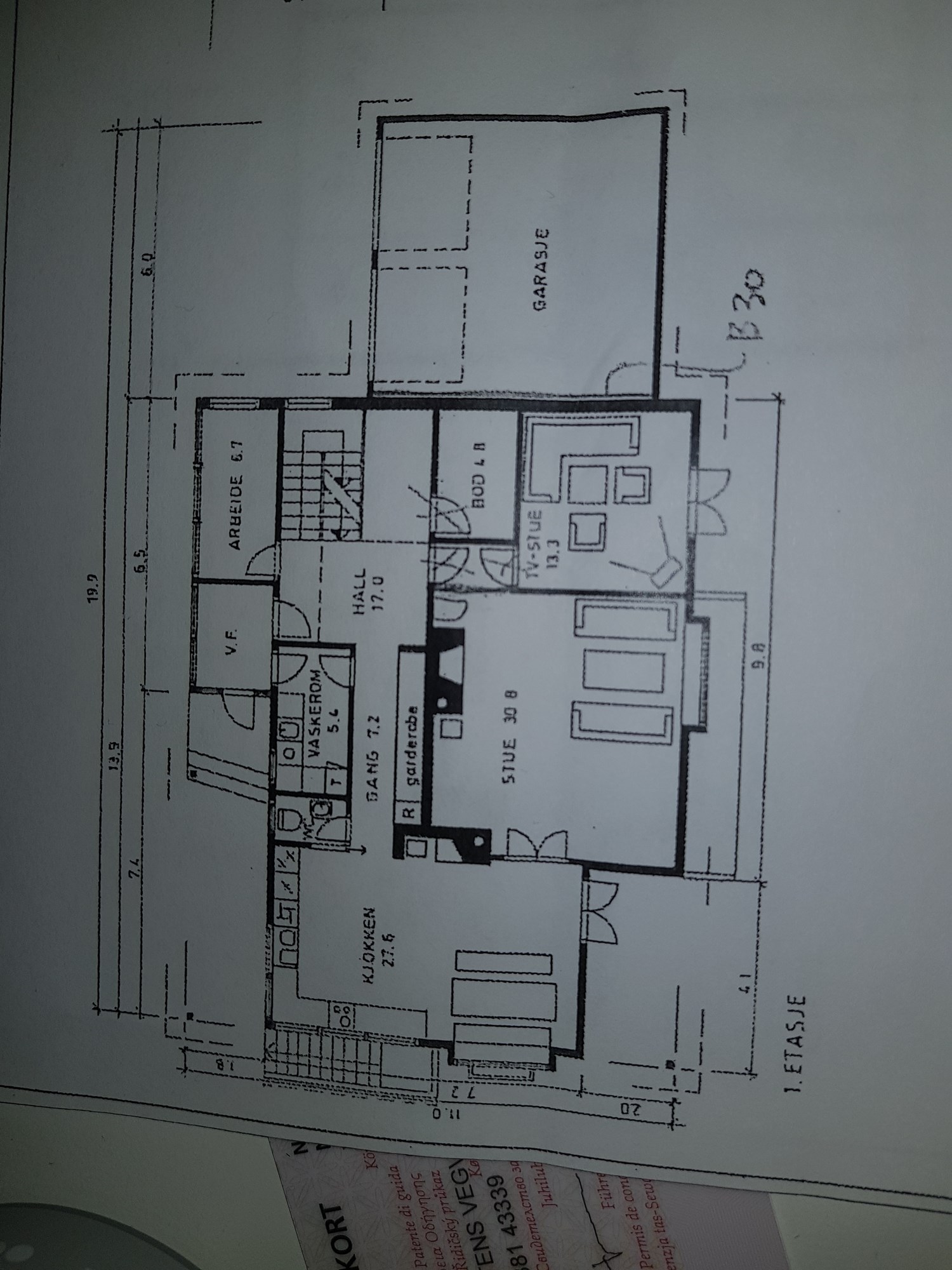
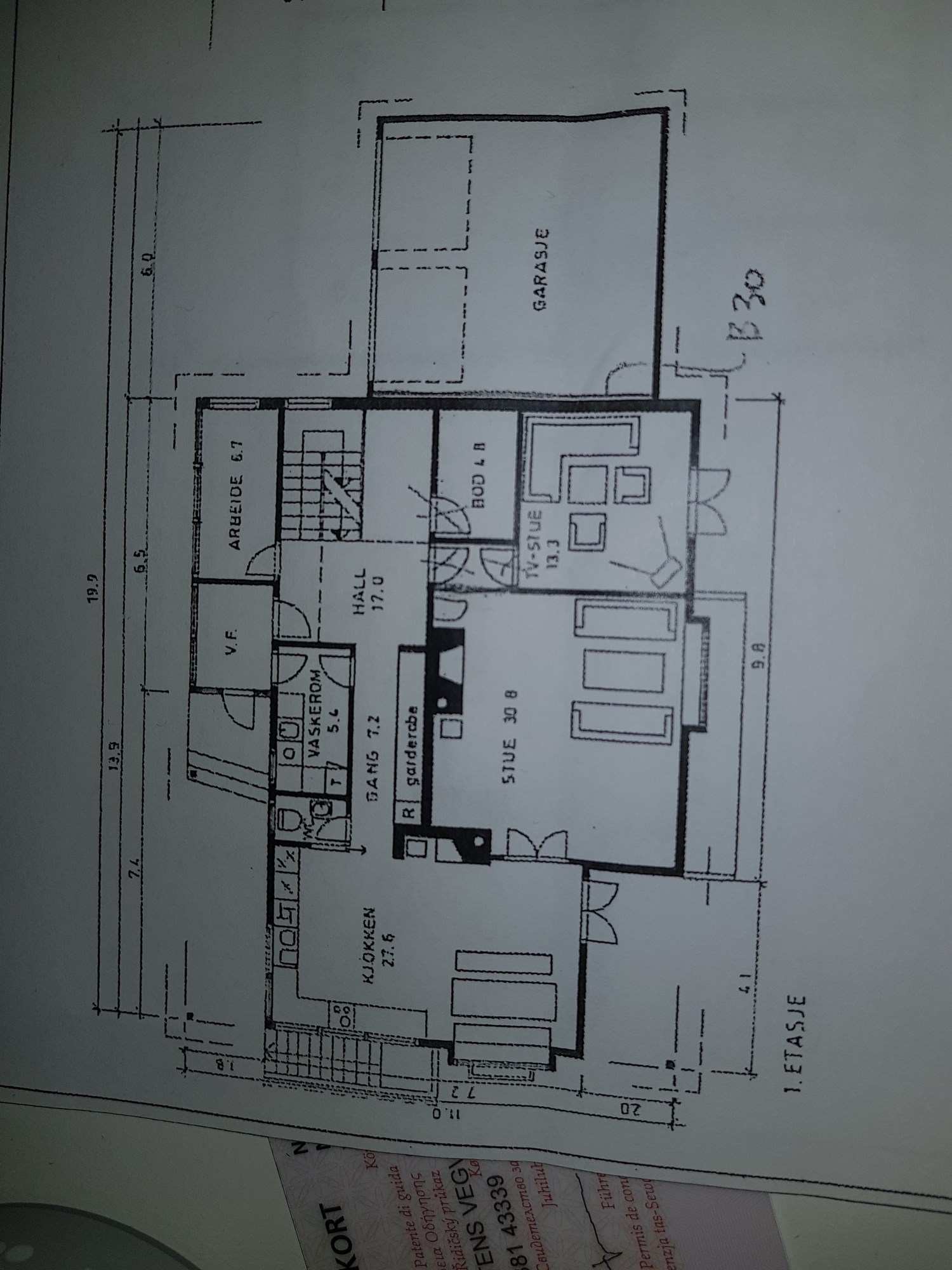
Har lagt ved tegninger av tomten og huset som står der idag. De stiplede linjene på tomten er hvor langt ut vi kan bygge mtp grense til vei og naboer. Den oransje delen var en garasje det i 1986 ble søkt om, men som aldri ble bygget.
Er det noen som har innspill til hvordan dette er mulig å løse, slik at begge parter får noenlunde lik kvalitet på boligene? Tenker da på alternativ 2. Tomten er 980,9 kvm etter fratrekk fra vei. Småhusplanen i Oslo gjelder, mao 24% utnyttelsesgrad som virker absolutt. Huset som står der idag har en grunnflate på 135,9kvm, Dermed har vi 99,5kvm igjen å bygge på, men her må vi også iberegne 4 x 18 kvm til fire parkeringsplasser (f.eks mulig å bygge carport med bolig over?)
Til slutt - det er jo også et kostnadsspørsmål. Etter deres erfaring, hva lønner seg økonomisk? Hva med tidsmessig? Hva burde vi budsjettere med dersom vi går for alternativ 2? Egeninnsats vil være lik 0 omtrent da vi begge er travle småbarnsfamilier, og er dessverre ikke veldig nevenyttige av oss.
Når det kommer til renovering+påbygg, hva slags uforutsette utgifter kan dukke opp? Stemmer det f.eks at tak, vinduer og kledning bør byttes siden huset er 32 år gammelt, eller kommer det an på materialer som har blitt brukt etc? Hva med opplegg til nye rør? ca kostnad? Noen som har sett noen gode maler for budsjett for slike prosjekter?
Så - hva er det mest fornuftige å gjøre her? Alle innspill settes stor pris på!
Jeg, min kone og hennes søster + familie har mulighet til å få kjøpt en svært attraktiv tomt i et villaområde sentralt i Oslo. Tomtene her er fryktelig dyre normalt sett, men det er delvis arv inne i bildet, noe som kan gjøre dette mulig for to småbarnsfamilier med bare ok pluss økonomi.
Huset som står der idag er en enebolig, og ble bygget i 1986. Huset ble bygget av en privatperson, men som visstnok er svært nevenyttig. Han la også sin stolthet i å bruke gode materialer. Dog har huset av diverse grunner dessverre ikke vært vedlikeholdt siden byggeåret, annet en en og annen "brannslukking" av den aller mest prekære sorten.
Vi har altså to alternativer
1. Rive huset som står der idag og bygge nytt. Etter en anbudsrunde med arkitekter og anslag på kvm-pris har vi slått oss til ro med at vi ikke har råd til å bygge arkitekttegnet, derfor står vi igjen med ferdighus. Her har vi sett på muligheter for eneboliger kjedet med carport imellom, samt en mer tradisjonell tomannsbolig. Vi ønsker her også å evt få bygget med 2 utleiedeler i kjeller.
2. Bygge på en ny del på huset som står der idag, totalrenovere eksisterende bygningsmasse, og dele dette opp i to tomannsboliger. Vi har vært i møte med en pensjonert arkitekt (venn av familien) som foreslo horisontaldelt tomannsbolig som det mest fornuftige. Begge familiene er dog enige om at det er vertikaldelt vi ønsker, med helt separate hager og uten innsyn til hverandre. Vi ønsker også at begge boenhetene skal ha utsyn mot veien, motsatt inndeling (på tvers) vil gi den ene parten betydelig dårligere lysforhold etc.
Har lagt ved tegninger av tomten og huset som står der idag. De stiplede linjene på tomten er hvor langt ut vi kan bygge mtp grense til vei og naboer. Den oransje delen var en garasje det i 1986 ble søkt om, men som aldri ble bygget.
Er det noen som har innspill til hvordan dette er mulig å løse, slik at begge parter får noenlunde lik kvalitet på boligene? Tenker da på alternativ 2. Tomten er 980,9 kvm etter fratrekk fra vei. Småhusplanen i Oslo gjelder, mao 24% utnyttelsesgrad som virker absolutt. Huset som står der idag har en grunnflate på 135,9kvm, Dermed har vi 99,5kvm igjen å bygge på, men her må vi også iberegne 4 x 18 kvm til fire parkeringsplasser (f.eks mulig å bygge carport med bolig over?)
Til slutt - det er jo også et kostnadsspørsmål. Etter deres erfaring, hva lønner seg økonomisk? Hva med tidsmessig? Hva burde vi budsjettere med dersom vi går for alternativ 2? Egeninnsats vil være lik 0 omtrent da vi begge er travle småbarnsfamilier, og er dessverre ikke veldig nevenyttige av oss.
Når det kommer til renovering+påbygg, hva slags uforutsette utgifter kan dukke opp? Stemmer det f.eks at tak, vinduer og kledning bør byttes siden huset er 32 år gammelt, eller kommer det an på materialer som har blitt brukt etc? Hva med opplegg til nye rør? ca kostnad? Noen som har sett noen gode maler for budsjett for slike prosjekter?
Så - hva er det mest fornuftige å gjøre her? Alle innspill settes stor pris på!
planløsning m7.pdf
Jeg vil påstå at det er billigere å rive og bygge nytt enn å foreta en så omfattende ombygging som det du beskriver. Jeg brukte ca. 1,5år på å renovere ca. 100m² i min forrige bolig fra 1964 og brukte 0,5 år på å gjøre nesten samme jobb i det nybygde huset vårt på 200m² (med ca. samme intensitet på arbeidet). Den store forskjellen var at jeg slapp å rive, tilpasse og plages med gamle, dårlige løsninger som var tidkrevende å rette opp. Dette kan nok overføres direkte til kostnader når man leier inn fagfolk til å gjøre jobben. I tillegg er huset fra 1964 fortsatt fra 1964 med blant annet for langt spenn på bjelkelaget så det gynger, mens det nye er helt nytt og vesentlig høyere standard.
- Rådgivende ingeniør areal og samferdsel som yrke.
- Personlig opptatt av byggtekniske løsninger. Har også et lite gravefirma sammen med min far.
Skriver her som privatperson om ikke annet er beskrevet.