5,159
10
0
Er sveitserstil dyrere enn moderne stil?
190
Ny bolig
0
Vi har tegnet hus, men jeg angrer felt på "sveitserstilooken". Jeg liker det tradisjonelle huset, men liker at huset ikke har pyntelister o.l. Så derfor lurer jeg på om det vil gjøre huset billigere om vi endrer litt på vinduene? (se tegninger). Vi er allerde sprengt budsjettet, og vil ikke at de skal tegne huset om igjen (igjen) og så går vi likevel tilbake til det vi tegnet i utgangspunktet som var sveitserstilen. Jeg tenker at pyntelister er dyre, men er det noen som vet kostnaden på disse???
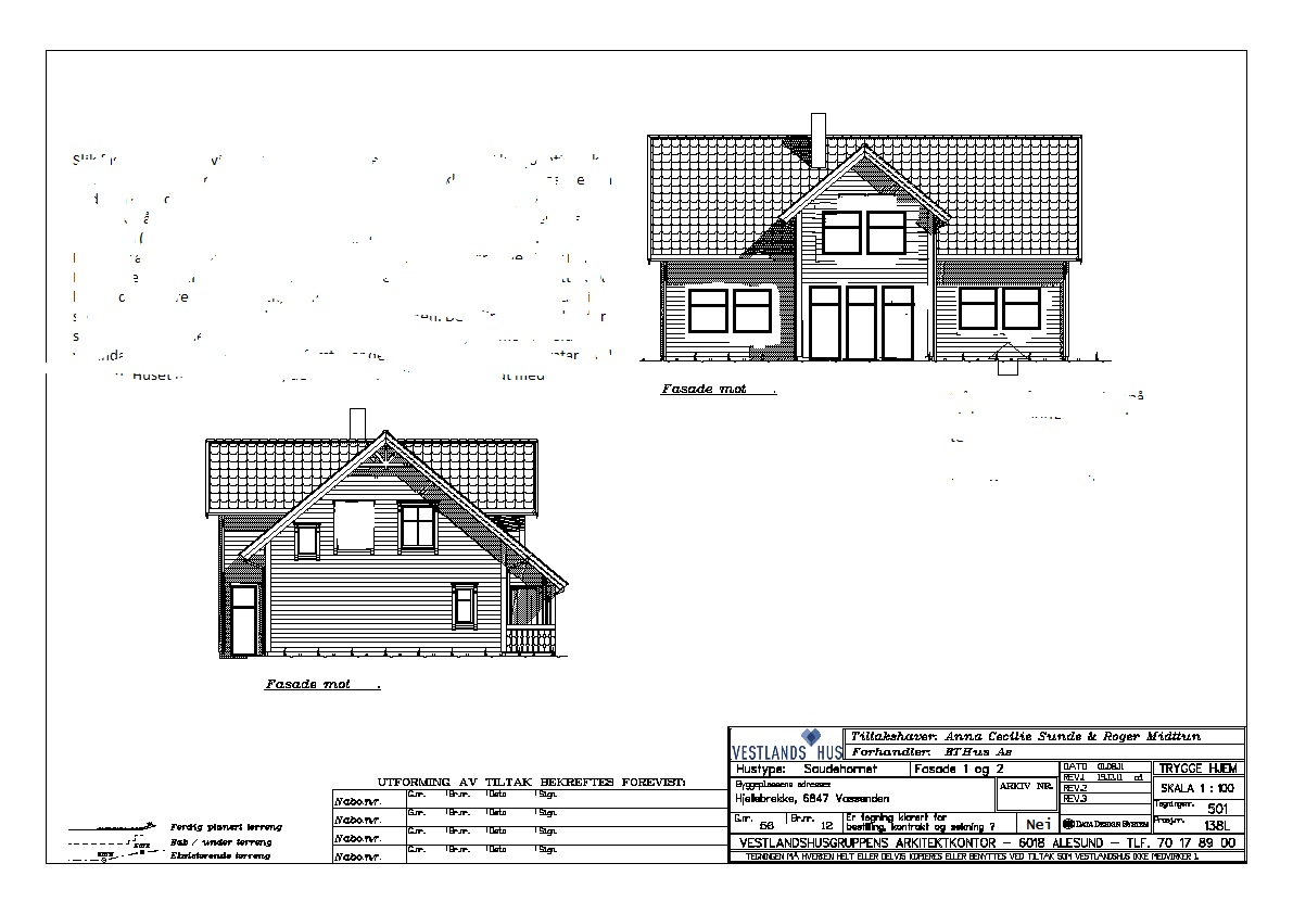
Vedlegg 1 er huset utgangspunkt (sjå vedelegget som ligg over bildet av det nye huset)
Vedlegg 2 er slik jeg ønsker vinduer... Noen som har bedre måter å tegne det på??
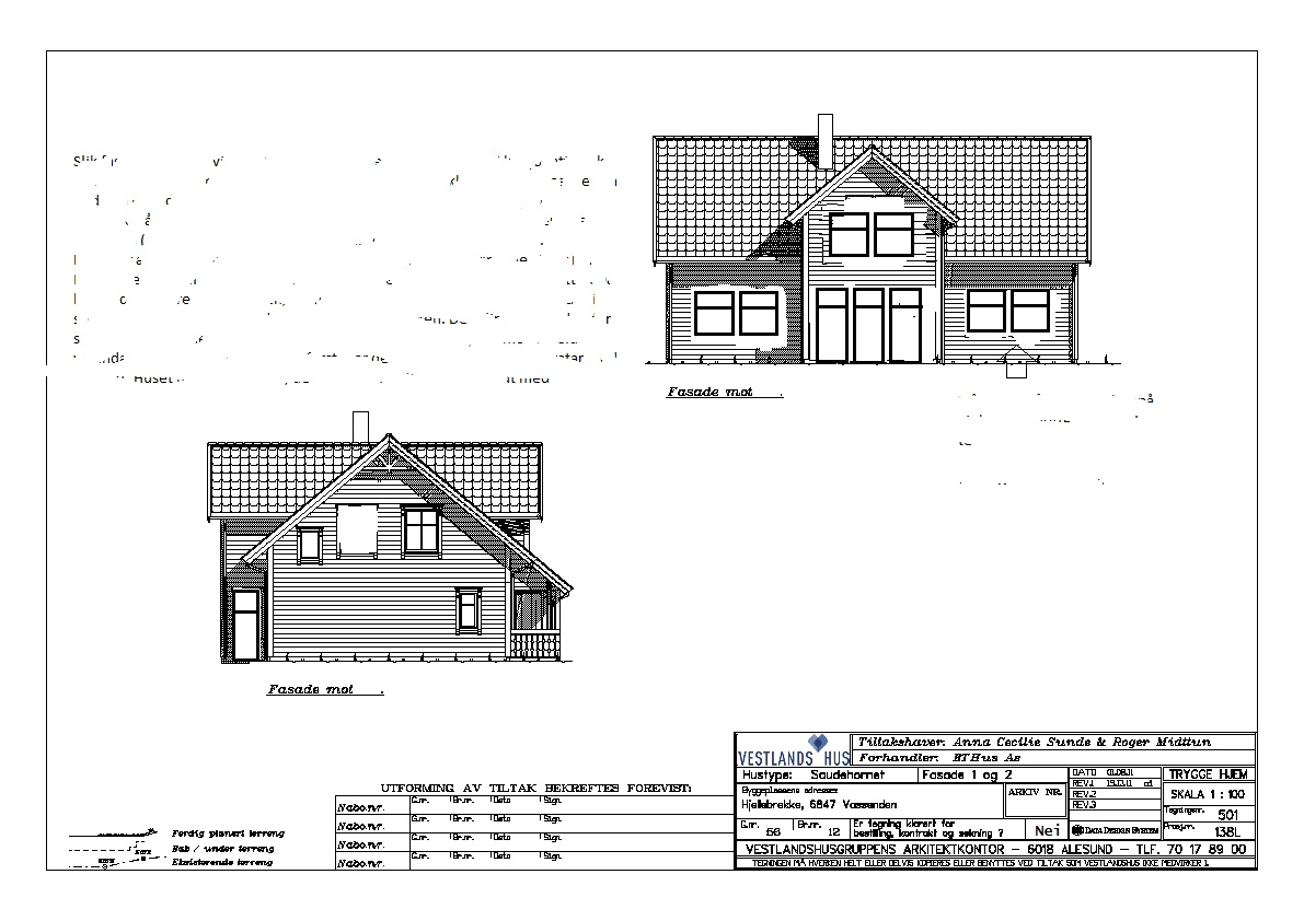
Vedlegg 1 er huset utgangspunkt (sjå vedelegget som ligg over bildet av det nye huset)
Vedlegg 2 er slik jeg ønsker vinduer... Noen som har bedre måter å tegne det på??

http://aluvegen.blogspot.com/2010/03/vinduene.html
P.S skal du ha "sveitserstil" må du ha skikkelige vinduer også, utenpåliggende sprosser er fy-fy!
http://aluvegen.blogspot.com/2009/12/en-liten-oppdatering.html Vi har 2 og 3-fags, 4 og 6 rams vinduer.
Du sparer et par hundrelapper pr vindu ved å ikke velge sprosser. Det burde ikke ta arkitekten mer enn en time å fjerne sprossene på alle vinduer.
Med mindre dette går under kategorien fasadeendring, så kan du vel drite i å tegne om og bare bestille vinduene slik du vil ha dem?
Smak og behag selvsagt, men vindu er er viktig for en fasade.
Incognito (Adm.dir i Premium Haus AS )
Selger lavenergihus fra Tyskland.
Det finnes nok wannebe-hus.. ::)
(Litt negativt ladet post fra meg i dag. Jeg er bare litt over gjennomsnittet glad i de vinduene du gjerne vil ha vekk sprossene i).
Enig med de andre her, ekte vindu, er og blir ekte vindu!
Det skal være bra nød for at man jukser det til med fake-sprosser:)
Uansett, lykke til videre med husbyggingen. Men ville nok tatt en ny runde med husfruen og tenkte grundig igjennom om dette faktisk er huset dere vil bygge:) Kjipt og sitte igjen og være misfornøyd..
PS: Skulle vi bygget idag, tror jeg at vi ville godt for Holm fra Block Watne. Super planløsningen, og 'fuglekassa' på sida er råstillig.
Frekhaug er vår vindusprodusent