6,870
9
0
Hva synes dere om denne leveransebeskrivelsen til nytt hus?
441
0
Vi er i dialog med Mesterhus om å føre opp et hus og har nå fått et pristilbud med en leveransebeskrivelse. Setter stor pris på om noen har mulighet til å se over denne og gi innspill til hva som evt. bør endres.
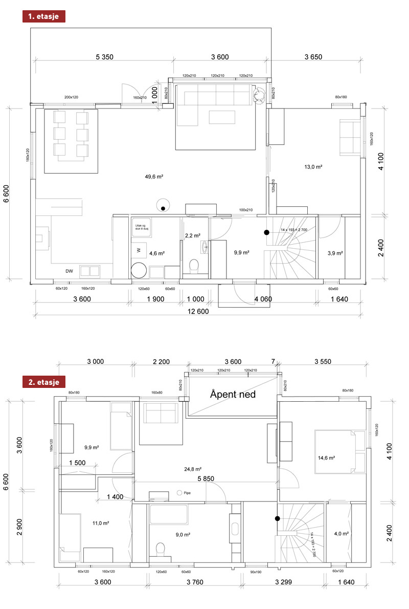
Legger også ved bilder av huset det er snakk om. Disse har vi tegnet selv med utgangspunkt i Mesterhus huset "Mia" men med en del endringer.
Totalprisen ligger på 4.225.000 for nøkkelferdig hus (inkl. hvitevarer) med tomt på drøyt 900m2 som blir sprengt og gravet samt dobbelgarasje med bod. I dette beløpet er det også satt opp flere elpunkter osv enn det som står i beskrivelsen men vi har ikke sett detaljert på dette enda. BRA for hus ca. 180, P-rom ca 160m2.
På forhånd takk for tilbakemeldinger.
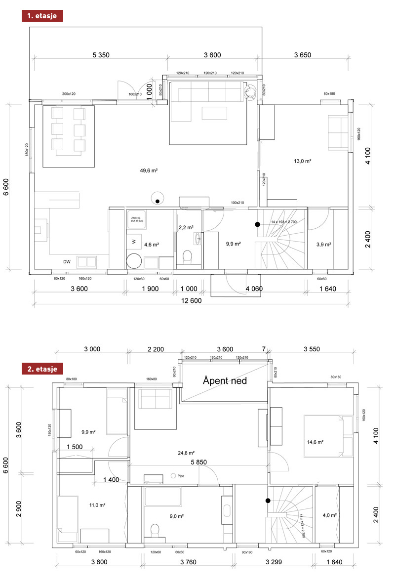
Legger også ved bilder av huset det er snakk om. Disse har vi tegnet selv med utgangspunkt i Mesterhus huset "Mia" men med en del endringer.
Totalprisen ligger på 4.225.000 for nøkkelferdig hus (inkl. hvitevarer) med tomt på drøyt 900m2 som blir sprengt og gravet samt dobbelgarasje med bod. I dette beløpet er det også satt opp flere elpunkter osv enn det som står i beskrivelsen men vi har ikke sett detaljert på dette enda. BRA for hus ca. 180, P-rom ca 160m2.
På forhånd takk for tilbakemeldinger.
Signatur


Setter stor pris på innspill.
Siste hus bygget i 2013 - til tross for brukernavnet.
Ellers høres det ut som en rimelig grei pris, men mange uklare forhold selvføelgelig, og vanskelig å bedømme... tomt b.la.
Fint hus:) Lykke til!
- Isolasjon innervegger: øke fra 50 til 70mm. Pris: Bare noen tusenlapper. (ja bra svar)
- Isolasjon yttervegger - øke med 5 cm til 25cm? Pris: ca. 40.000kr
- Isolasjon tak - øke med 5 cm? Pris: ca. 6.000kr
- 3-lags vinduer i stedenfor 2 lags-vinduer. Pris ca. 20.000kr
Hvilke av disse bør vi satse på (hvilken prioriteringsrekkefølge om vi bare skal velge noe) - og ser prisene greie ut?
Siste hus bygget i 2013 - til tross for brukernavnet.
Nå vet jeg ikke hvilken type isolasjon dere har med i tilbudet, men et alternativ til 5cm ekstra kan være å bytte type isolasjon, til en som er litt bedre. Vi fikk i alle fall fortalt at det var rimeligere, da vi vurderte det samme.
Synes det høres kjekt ut om man kan gjøre dette slik at vi ikke må øke tykkelsen på veggene utover 20 cm for man mister vel romplass av å legge på ekstra.
Er det så stor forskjell på disse to typene at det er verdt prisforskjellen?
Siste hus bygget i 2013 - til tross for brukernavnet.
Minstekravet til isolasjon er 20 cm i yttervegg i følge denne linken..
http://www.ipf.as/forskrifter.htm
Yttervegger:
25 cm med isolasjon i et gjennomgående stenderverk (isolasjonsklasse 37).
Minstekravet til isolasjon i yttervegg er 20 cm.
Tak:
30 cm med isolasjon mot et kaldt loft (kl. 37 og undergurt inntil 48x148 mm).
35 cm med isolasjon mellom taksperrer (isolasjonsklasse 37).
Minstekravet til isolasjon i taket er 25 cm.
Gulv på grunn:
Isolasjonstykkelsen er avhengig av bygningens geometri (form), størrelse, fundament/ringmursutforming, grunnforhold og eventuell tilbakefylling. For en normal enebolig vil rundt 25 cm isolasjon være nødvendig (isolasjonsklasse 38). For større næringsbygg kan 15 cm isolasjon være tilstrekkelig.
Gulv mot det fri:
30 cm med isolasjon i et trebjelkelag.
Vinduer og dører:
2-lag isolerglass med lavemisjonsbelegg, gassfylling og isolert karm, evt 3-lags vinduer.
Minstekravet tilsier 2-lag isolerglass med lavemisjonsbelegg og gassfylling.
Siste hus bygget i 2013 - til tross for brukernavnet.