523    2    0  

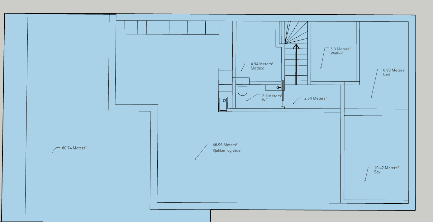
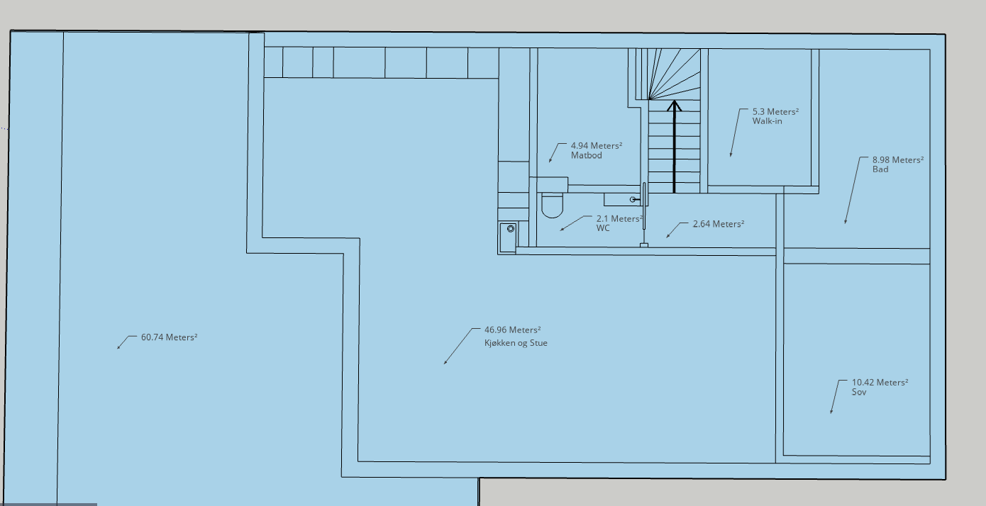
Matbod med inngang fra kjøkken

 5     0
Hei,

Sitter å holder på med planløsninger for nytt hus som snart skal bygges. Vi skal ha en matbod med tilknytning til kjøkkenet og har lyst å lage dette "skjult" med en inngang via en kjøkkenfront. Stusser så litt på om det i hele tatt er mulig, Hvordan kan dette løses med sokkellist på kjøkken? Må gulvet i boden bygges opp tilsvarende, eller finnes det andre smarte løsninger.

Setter pris på svar og tilbakemeldinger:)

Husk dette under oppussing: Lagre kvitteringer, bilder og avtaler i Boligmappa. Logg inn her

   #1
 25,752     Akershus     0
Sokkel kan vel festes nederst på dørbladet? Du får imidlertid et bredere/tykkere dørblad nede og risikerer noe mer snublefare.

Sidesprang: ikke bygg trappa slik den er vist. Her går du ett trinn frem og faller 1 meter i innersvingen, rett ned! Trinnene bør «trekkes", men mange moderne trappesnekkere kan ikke å bygge gode trapper.
Signatur
  (trådstarter)
   #2
 5     0
Takk for svar. Ja det er mulig det kan la seg gjøre på den måten du sier.

Angående trappen så er det bare jeg som har lekt meg i google sketch-up for å illustrere trappen Smile Vi er fortsatt i startfasen av planleggingen.