338
0
0
Oppussing og tilbygg på laftethus ifra 1816, trenger inspirasjon.
6
0
Hei.
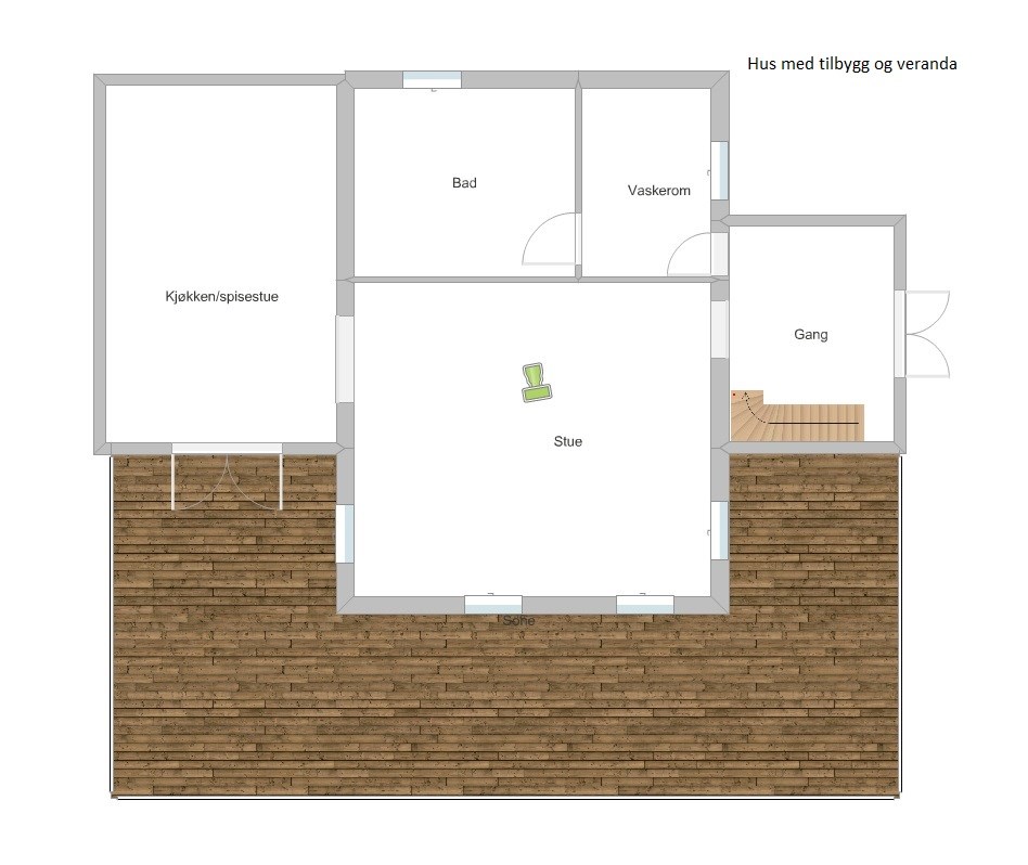
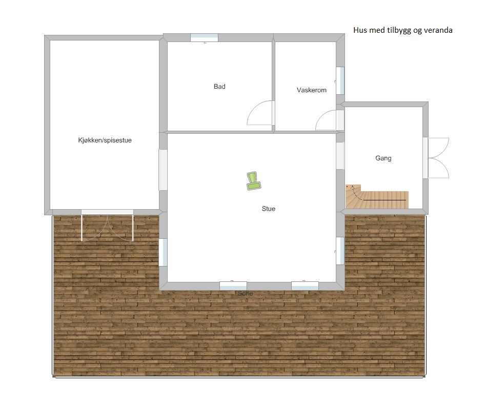
Er snart igang med overtagelse av gammelt gårdsbruk som samboeren min er arvtager av. Huset har et påbygg ved inngangsparti fra 1993. Se tegningene over hvordan huset ser ut idag. Som mange andre gamle hus, består det av en stor stue, og flere mindre rom. Vi har ønske om nytt og større kjøkken, samt nytt og større bad. Tenkte og nygge kjøkken i nye tilbygget, og utvide badet til der kjøkkenet er idag. Har tegnet opp hva vi tenker, men er veldig åpen for andre ideer og forslag.
Det vi trenger mest tips og ideer om, er fasaden utvendig, hvordan skal en løse det for at huset skal få en fin helthet. Er ikke avhengige og å ha laften synlig, så huset kan godt kles igjen, men er ikke et must. Også usikre på om vi skal ha ark ut på tilbygget, eller om vi vil ha skråtak som skal starte litt under eksisterende tak, da første tanken var og kun bygge på en etasje.
Trenger sårt tips og ideer, så hiv ut. Om noen er flinke til og tegne på bildene, setter vi stor pris på det også.
Takk
Er snart igang med overtagelse av gammelt gårdsbruk som samboeren min er arvtager av. Huset har et påbygg ved inngangsparti fra 1993. Se tegningene over hvordan huset ser ut idag. Som mange andre gamle hus, består det av en stor stue, og flere mindre rom. Vi har ønske om nytt og større kjøkken, samt nytt og større bad. Tenkte og nygge kjøkken i nye tilbygget, og utvide badet til der kjøkkenet er idag. Har tegnet opp hva vi tenker, men er veldig åpen for andre ideer og forslag.
Det vi trenger mest tips og ideer om, er fasaden utvendig, hvordan skal en løse det for at huset skal få en fin helthet. Er ikke avhengige og å ha laften synlig, så huset kan godt kles igjen, men er ikke et must. Også usikre på om vi skal ha ark ut på tilbygget, eller om vi vil ha skråtak som skal starte litt under eksisterende tak, da første tanken var og kun bygge på en etasje.
Trenger sårt tips og ideer, så hiv ut. Om noen er flinke til og tegne på bildene, setter vi stor pris på det også.
Takk







