296
0
0
Påbygg og total rehabilitering av 60-tallshus
1
0
Hei!
Vi har kjøpt et enkelt 60-tallshus med god beliggenhet sentralt på Østlandet.
Huset har 1 etg. på ca. 100 kvm + 65 kvm. kjeller (2m takhøyde).
Planen er å bygge et tilbygg på ca. 50 kvm, samt en etasje på toppen av det eksisterende huset.
Foreløpige plantegninger, samt dagens planløsning følger under.
Setter pris på alle gode innspill til planløsningen (feil, mangler, gode ideer m.m.).
Årsaken til at vi har flyttet stue og kjøkken til 2.etg er for å utnytte utsikten best mulig.
Huset vil ha "panoramautsikt" fra 2.etg og bare begrenset utsikt fra 1.etg.
På forhånd takk for alle gode innspill!
"Ny" 1.etg. med pågygd masterfløy til venstre og utleiefløy til høyre:

Ny 2. etg med takterrasse til venstre:
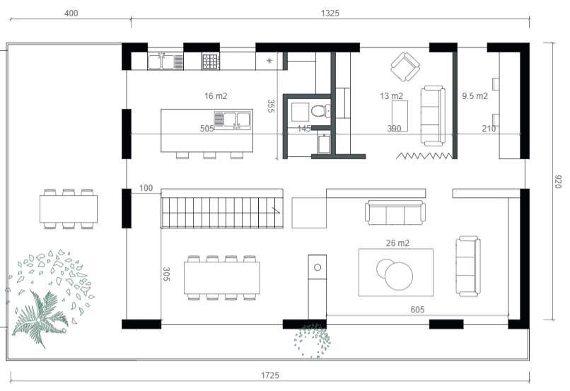
Dagens planløsning:

Vi har kjøpt et enkelt 60-tallshus med god beliggenhet sentralt på Østlandet.
Huset har 1 etg. på ca. 100 kvm + 65 kvm. kjeller (2m takhøyde).
Planen er å bygge et tilbygg på ca. 50 kvm, samt en etasje på toppen av det eksisterende huset.
Foreløpige plantegninger, samt dagens planløsning følger under.
Setter pris på alle gode innspill til planløsningen (feil, mangler, gode ideer m.m.).
Årsaken til at vi har flyttet stue og kjøkken til 2.etg er for å utnytte utsikten best mulig.
Huset vil ha "panoramautsikt" fra 2.etg og bare begrenset utsikt fra 1.etg.
På forhånd takk for alle gode innspill!
"Ny" 1.etg. med pågygd masterfløy til venstre og utleiefløy til høyre:

Ny 2. etg med takterrasse til venstre:

Dagens planløsning:
