5,383
13
0
Planløsning Kjøkken. Innspill/Forslag
29
Oslo/Østfold
0
Hei.
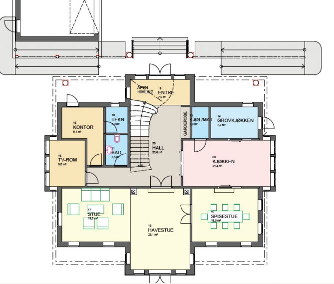
Har kommet litt lengre i husprosjektet og tenker på kjøkkenløsning.
Er det noen som har inspill til løsning her?
Dører til spisestue og vaskerom(grovkjøkken) kan flyttes på.
Ville dere hatt kjølerom eller droppet det?
Vi ønsker å ha en mulighet for et kjøkkenbord eller tilsvarende ved vinduet. -Blir koselig med morgensola.
Har kommet litt lengre i husprosjektet og tenker på kjøkkenløsning.
Er det noen som har inspill til løsning her?
Dører til spisestue og vaskerom(grovkjøkken) kan flyttes på.
Ville dere hatt kjølerom eller droppet det?
Vi ønsker å ha en mulighet for et kjøkkenbord eller tilsvarende ved vinduet. -Blir koselig med morgensola.

Så er det smak og behag hvilken side du ønsker å ha komfyr og vask på. Økonomisk sett bør vasken komme nærmest mulig andre vann-instalasjoner.
I.o.m. at du har kjølerom trenger du ikke stort kjøleskap. Da ville jeg satset på å ha kun underskap, ingen høyskap, ingen overskap. Kjøleskap av typen som passer under benk. Så gjør du bare benken så lang at du får nok lagringsplass i form av underskap.
En vinklet benkeplate er absoultt en løsning.
Hva tror dere om kjøkkenøy?
Ønsker også komfyr, dampkomfyr i benkehøyde.
Tror dere det er mulig å få et lite kjøkkenbord mot vinduene uten at det vil fløes krampeaktig og gi en dårlig løsning?
En kjøkkenøy vil ende med å være liten hvis den ikke skal oppleves som at den står i veien. En kjøkkenhalvøy kan gå.
Oppløftet ovn vil kreve høye skap, og høye skap tror jeg vil gi følelsen av å sperre for lyset fra vinduene.
Hvordan ser du for deg en benkeløsning? Har vi sett oss blinde på å ha spiseløsning mot vinduet? -Noen som ser en bedre løsning?
Forøvrig, utfra det lille jeg ser, tror jeg jeg ville gjort om mye på planløsningen.
Legger også ved planløsning av huset dersom du vil komme med litt feedback blir det satt pris på.
Når det gjelder kontor/tv-rom erdet to forsjellige løsninger, føler egentlig at ingen av de er helt 100.
Tv-rom er tenkt som et leke/underholdningsrom for barn.pluss noen av mine gitarer....
Nederst bilder av fasade, for å gi et intrykk av type hus.
Personlig ville eg ha laget en større åpning mellom kjøkken og spisestue, og heller bruke den til alle måltider!
Typisk at en spisestue blir lite brukt, men da unngår man det:)
Og samtidig får en mange flere muligheter på kjøkkenet:)
Hvilket tegneprogram er brukt til å tegne huset på tomten?
Mvh MoJa:)