207
2
0
Skal bygge på huset, råd og tips tas imot
6
Frekhaug
0
Hei.
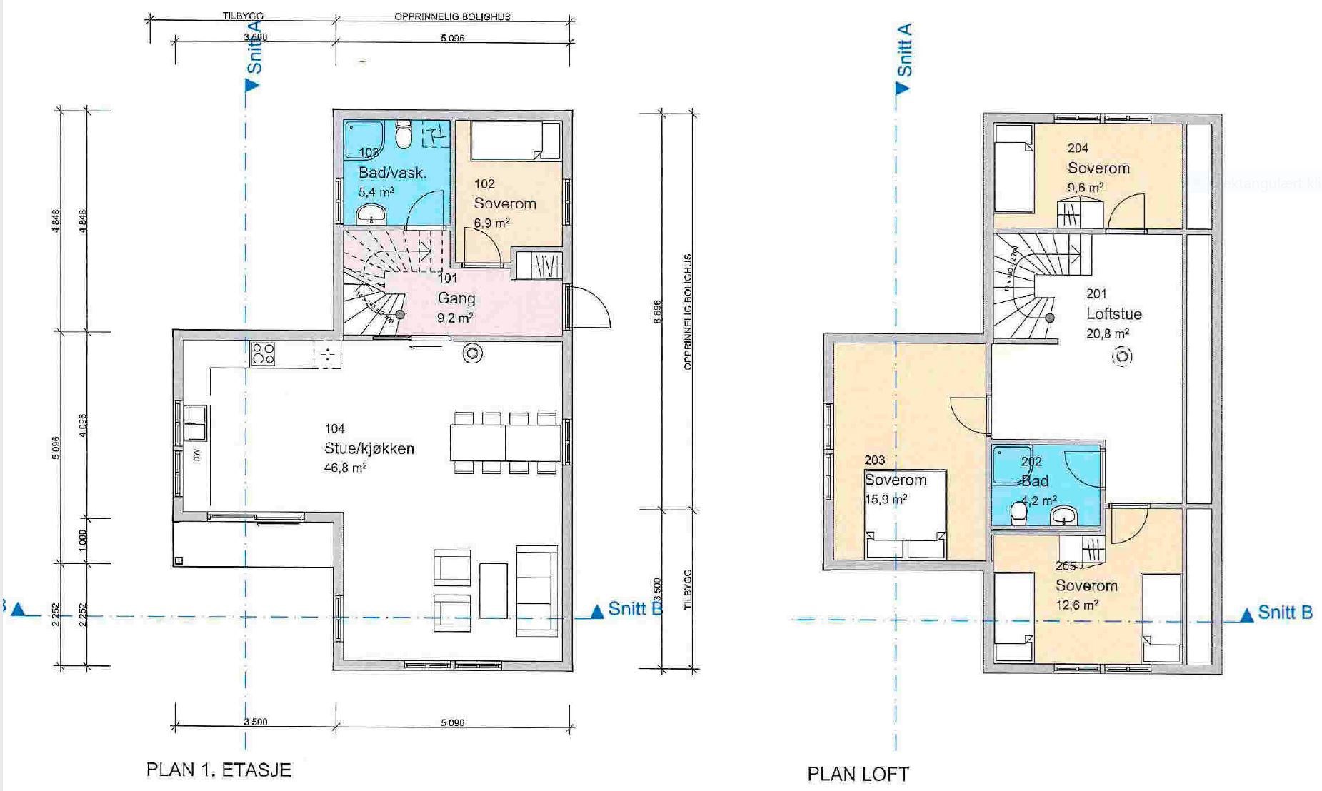
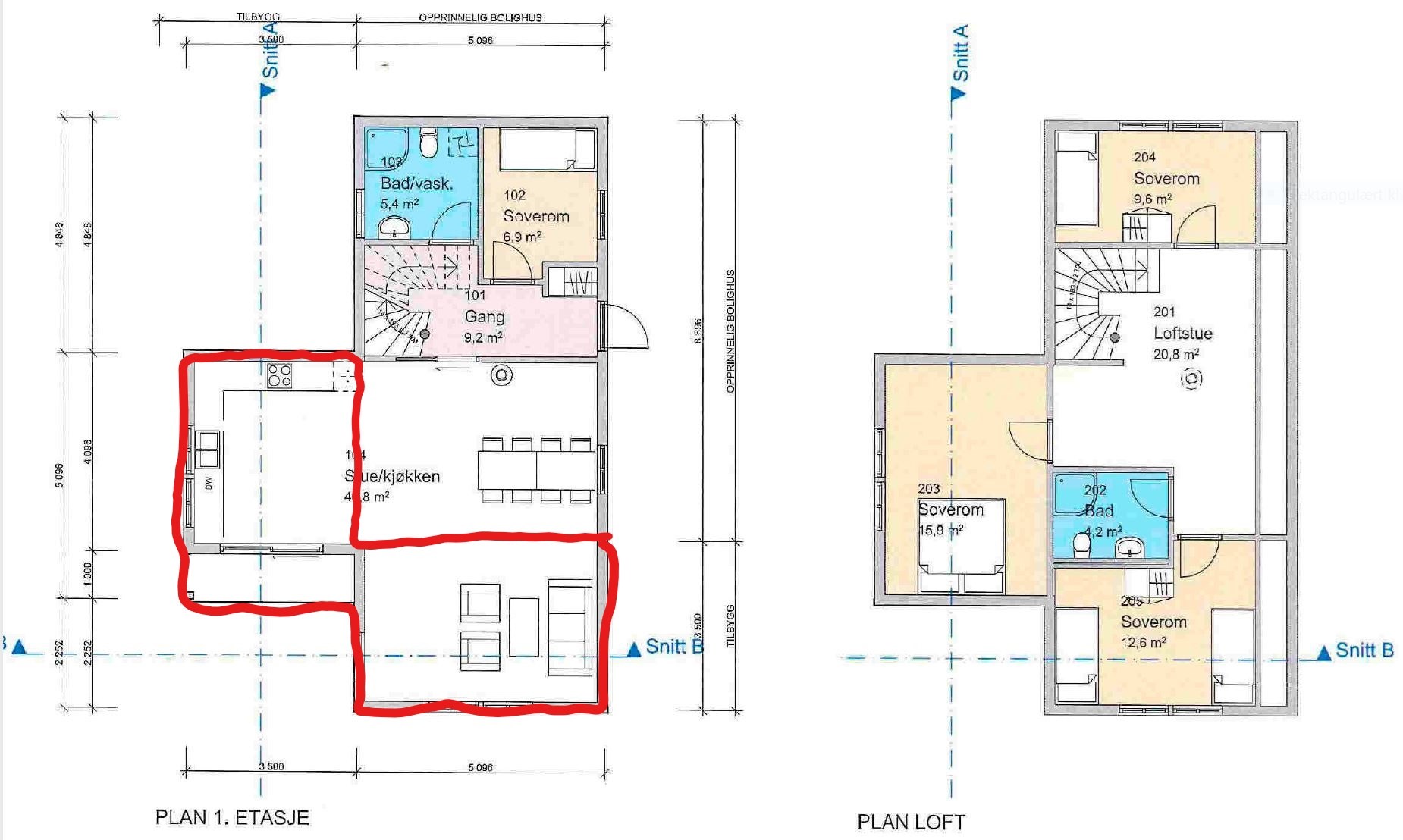
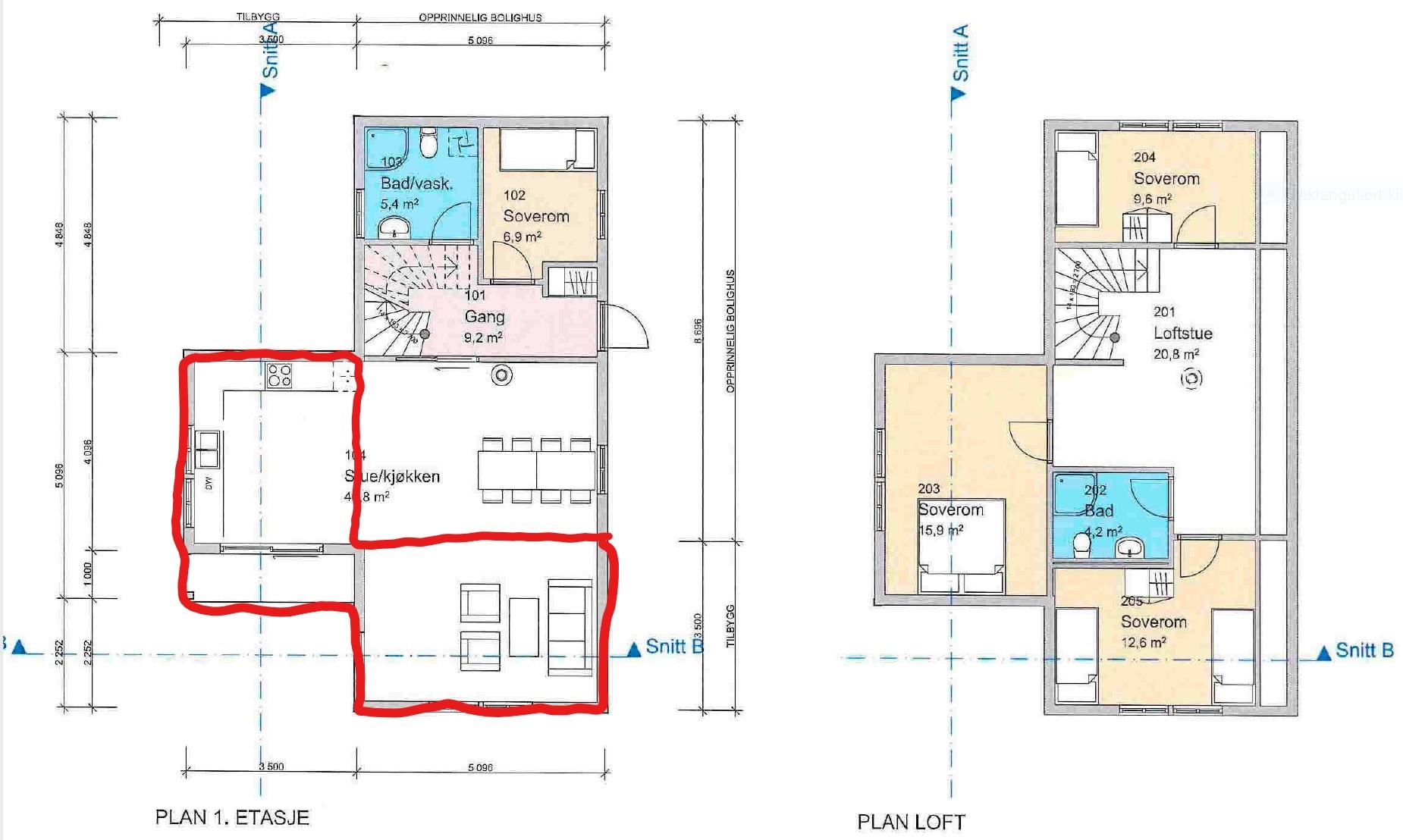
Går med planer om å bygge på huset da det er litt lite. Det er tegnet opp og godkjent av kommunen men starter nok ikkje før til våren. Legger ved tegningene så dere får sjå korleis det er tenkt.


Er det noe dere ser som vi burde endre på angående planløsningen? Noen opplagte fallgruver som vi må være obs på?
Blir ein del egeninnsats på dette, grunnarbeid og støping tar vi selv men setter bort tømrerarbeidet for å få opp skallet. Innvendig satser vi på å få gjort mest mulig selv også, bortsett fra elektrisk og rørarbeid.
Går med planer om å bygge på huset da det er litt lite. Det er tegnet opp og godkjent av kommunen men starter nok ikkje før til våren. Legger ved tegningene så dere får sjå korleis det er tenkt.


Er det noe dere ser som vi burde endre på angående planløsningen? Noen opplagte fallgruver som vi må være obs på?
Blir ein del egeninnsats på dette, grunnarbeid og støping tar vi selv men setter bort tømrerarbeidet for å få opp skallet. Innvendig satser vi på å få gjort mest mulig selv også, bortsett fra elektrisk og rørarbeid.
Soverommet nede har eg lyst å ta vekk og bruke litt til garderobe i yttergangen og lage til vaskeromsløsning med gjennomgang fra badet.