272
3
0
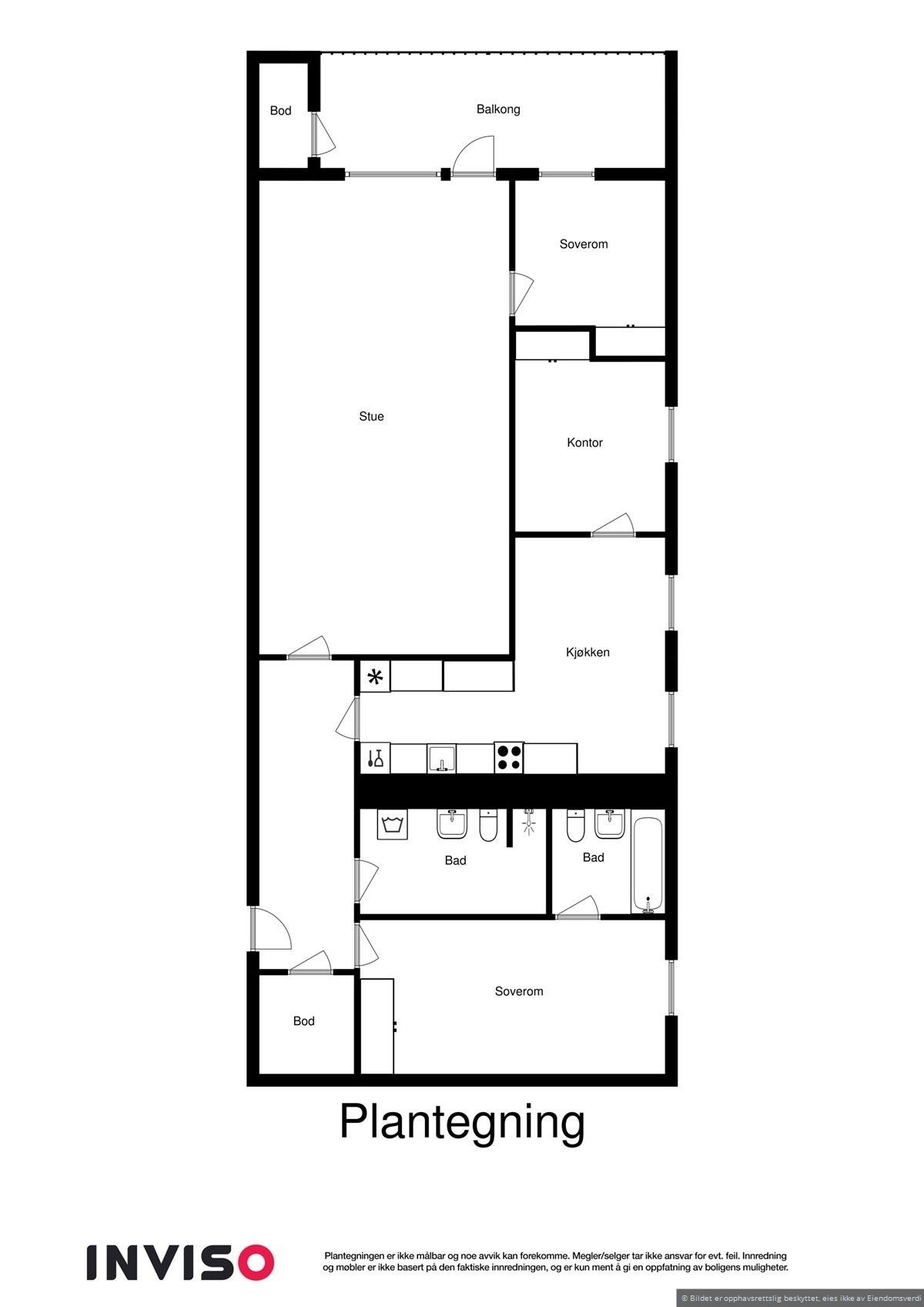
Totalrenovering 106m2 Selvaag bolig -82.
2
0
Hei,
Er ny på forumet. Går rett på sak. Overtar en Selvaag bolig fra -82, som er 106m2 med planløsning(se under). Boligen er i -2 ett med garasje under oss. Vi planlegger totalrenovering med oppstart om 1,5 mnd :O.
Som dere ser er det er tykkere vegg på planløsningen hvor rørene holder til. Kjøkkenet kan flyttes, men det vil innebære enten pumpe, borre ned i underetasjen(hvor det er garasje da gjennom brannsikring). Har gått til innkjøp av Live Home 3D som jeg er meget fornøyd med.
Har dere noen innspill til planløsning? Største problemet slik jeg ser nå er konstruksjon/løsning på rommene "nord" for den tykke veggen.
Spesielt om noen har erfaringer med oppussing av Selvaag leilighet.
Målene er
Bod 2x1.5m. Balkong 6x2m.
Stue 8.5x4.5m
Soverom 2.5x3m
Kontor 2.5x2.5m
Kjøkken 4x2.5 / 2x1.5m
Hall 5x1.5m
Bod 1.5x1.5m
Soverom 5x2.5mBad 3x1.5m
Wc 2x1.5m
Yttermål er ca 16x7m
Er ny på forumet. Går rett på sak. Overtar en Selvaag bolig fra -82, som er 106m2 med planløsning(se under). Boligen er i -2 ett med garasje under oss. Vi planlegger totalrenovering med oppstart om 1,5 mnd :O.
Som dere ser er det er tykkere vegg på planløsningen hvor rørene holder til. Kjøkkenet kan flyttes, men det vil innebære enten pumpe, borre ned i underetasjen(hvor det er garasje da gjennom brannsikring). Har gått til innkjøp av Live Home 3D som jeg er meget fornøyd med.
Har dere noen innspill til planløsning? Største problemet slik jeg ser nå er konstruksjon/løsning på rommene "nord" for den tykke veggen.
Spesielt om noen har erfaringer med oppussing av Selvaag leilighet.
Målene er
Bod 2x1.5m. Balkong 6x2m.
Stue 8.5x4.5m
Soverom 2.5x3m
Kontor 2.5x2.5m
Kjøkken 4x2.5 / 2x1.5m
Hall 5x1.5m
Bod 1.5x1.5m
Soverom 5x2.5mBad 3x1.5m
Wc 2x1.5m
Yttermål er ca 16x7m
Alle veggene bortsett fra veggen mellom kjøkken og bad kan sansynligvis endres på (rives/flyttes). Men sjekk for sikkerhets skyld.
Det neste er funksjonelle krav. Hvor mange soverom trenger du f.eks.
Her er et utkast. Litt usikker på hvor langt ned vinduene går på veggen mot høyre.
Her tenker jeg meg langsgående kjøkkenbenk. Vask og oppvaskmaskin bør lokaliseres mot vegg mot bad.
Kjøkkenøy og spisebord utenfor der.
Mener du at vi setter vask/tørk mot den tykke vekken? Den tykke veggen har visst rørene, skal høre med styre om den er bærende - men tviler egentlig på at den er det.
Alt utstyr som krever vann/avløp må plasseres slik at de får tilgang på det. Du har jo greit med plass langs den tykke veggen både på kjøkkensiden og på badesiden så alt kan i utgangspunktet plasseres der.
Veggen mellom toalett og dusjnisje var veldig tykk. Hvorfor det i det hele tatt er en vegg der er også noe du må finne ut av. Taket er også senket over dusjnisjen, sikkert noe oppi der også.
Hvis du skal rive mye av innmaten kan du vurdere og flytte servant til vegg mot stort soverom. Krever da at du legger vann og avløp i vegg mot soverom og vegg mot bad2. Vet ikke om det godkjennes at du tar dette fra garasjen under.
Selvaag elsker å legge alt som trenger vann/avløp langs en vegg. Men da blir det trangt og ikke optimal utnyttelse av plassen ellers i rommet.