539
15
1
Trenger mer plass - Kjeller eller 2. etg?
86
0
Har et dilemma her. Alle saklige og for så vidt usaklige innspill mottas med takk 
Vi trenger mer plass. To soverom og ett bad.
Per i dag bor vi i første etasje, leier ut andre etasje og bruker kjeller til lager (boder, frysere, ved, utleiers bod).
Hva er best: si opp leietaker, miste leieinntekten og pusse opp andre etasje, eller tømme kjeller, inkl finne plass til det som må ut og pusse opp den?
Andreetasjen kan brukes som den er, men vil nok bli pusset opp ganske mye med blant annet nytt bad.
Kjelleren er betong fra femtitallet med takhøyde 2.14.
Kjeller:

2. etg:

Vi trenger mer plass. To soverom og ett bad.
Per i dag bor vi i første etasje, leier ut andre etasje og bruker kjeller til lager (boder, frysere, ved, utleiers bod).
Hva er best: si opp leietaker, miste leieinntekten og pusse opp andre etasje, eller tømme kjeller, inkl finne plass til det som må ut og pusse opp den?
Andreetasjen kan brukes som den er, men vil nok bli pusset opp ganske mye med blant annet nytt bad.
Kjelleren er betong fra femtitallet med takhøyde 2.14.
Kjeller:

2. etg:

Sier du opp leieboer må du ikke gjøre noe som helst, alt er klart for å kunne leie ut igjen når ungene er blitt store. Å renovere en slik gammel kjeller er kostbart og en oppnår arealer som er mindre trivelige. Kostnadene «må kompenseres med utleie i mange år.
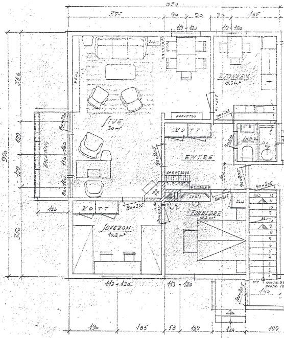
Må dere sette inn ny trapp mellom første og annen etasje hvis dere skal bruke hele huset? Jeg ser ingen på tegningen?
Venstre på tegningene er mot sør. Der går skråningen slik at hele kjellerveggen vises, og har fire stykk 120x120 vinduer, under en veranda. På nordsiden, der trappa er ligger kjelleren helt under terreng.
Trappa kan ses på nedre høyre del av tegningene (nordøst) og går fra kjeller via første til andre etasje. Første og andre etasje er lik siden det er en sammenslått horisontaldelt tomannsbolig. Kjelleren har altså utgang både direkte til hagen og opp til første etasje.
Slagretningen på trappedørene er helt riktig upraktisk. De forsvinner nok.
Kjelleren er nylig drenert på utsiden med knorteplast og 100 mm XPS. Kjellergulvet er nesten helt sikkert uten fuktsperre, siden det er fra femtitallet. Tror kjelleren er tørr nå, men kan ikke være 100% sikker. Ingen kjellerlukt.
Vi ser at vi før eller senere vil ønske å ta over andre etasjen. Det blir rett og slett ikke god nok plass eller gode nok løsninger i kjelleren.
Da blir spørsmålet om vi skal lage oss et soverom og et bad i kjelleren i første omgang, for å drøye tiden før vi må si opp leietaker?
Hva vil det koste å lage et soverom og et bad i kjeller?
Leieinntekten for andre etasje er betydelig, så et enkelt bad og soverom som tilsvarer 2-3 års leie vil i praksis være "gratis".
Hvis det blir tomt i huset når ungene er ute tenker jeg vi da kan etablere et lite kjøkken i andreetasjen og leie ut igjen. Mer sannsynlig er det vel at store barn kommer hjem på besøk i høytider og utider, og kan tenke seg å ha rommene sine i noen år til. Da er det mer sannsynlig å lage utleieleilighet i kjelleren. Dessverre er etasjeskillerenne laget av papir.
Er det noen som har endt opp med å leie ut så fort ungene har forlatt redet?
Utfra det lille som er å lese her, så tenker jeg at jeg ville gjort mye for å beholde inntektene fra leie i 2. et., innredet best mulig i kjelleren, og heller bygget en bod/garasje ute med mulighet for lagring av ræl.
Grave? Flytte masser? Komprimere? Støype? www.budsjettmaskiner.no Eidsvoll, Arendal. Noe du vil leie ut? Ta kontakt, vi har plass til flere.
Har lagt ned en del timer i å lese Byggforsk og forumet her (Frodes sitt tredve sider epos er bokmerket for en regnfull dag) samt tegnet og forkastet en bunke skisser.
Det som må på plass før vi kan gå fra fundering til faktisk prosjekt er to ting
1. En god romløsning med minst et bad og et soverom.
2. Et kostnadsoverslag som gir en ca pekepinn på hvor mye det vil koste.
Et villedende kostnadsoverslag er bare arbeid og prat med gode håndverkere, det finner vi ut av etter hvert. Utfordringen er å finne en god plass for soverom.
Lærer meg Revit som tegneprogram, det gjør planleggingen adskillig enklere. Her er en grov plan- og 3D-skisse av eks situasjon (mangler blant annet ytterdøra):