1,482
5
0
Uinnredet loft - Pris?
19
0
Hei,
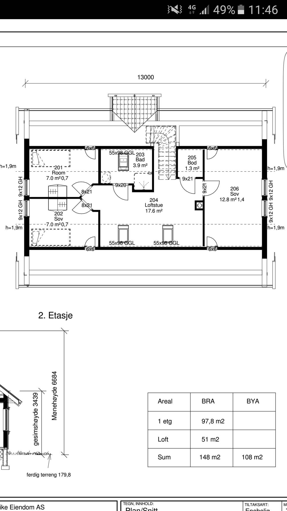
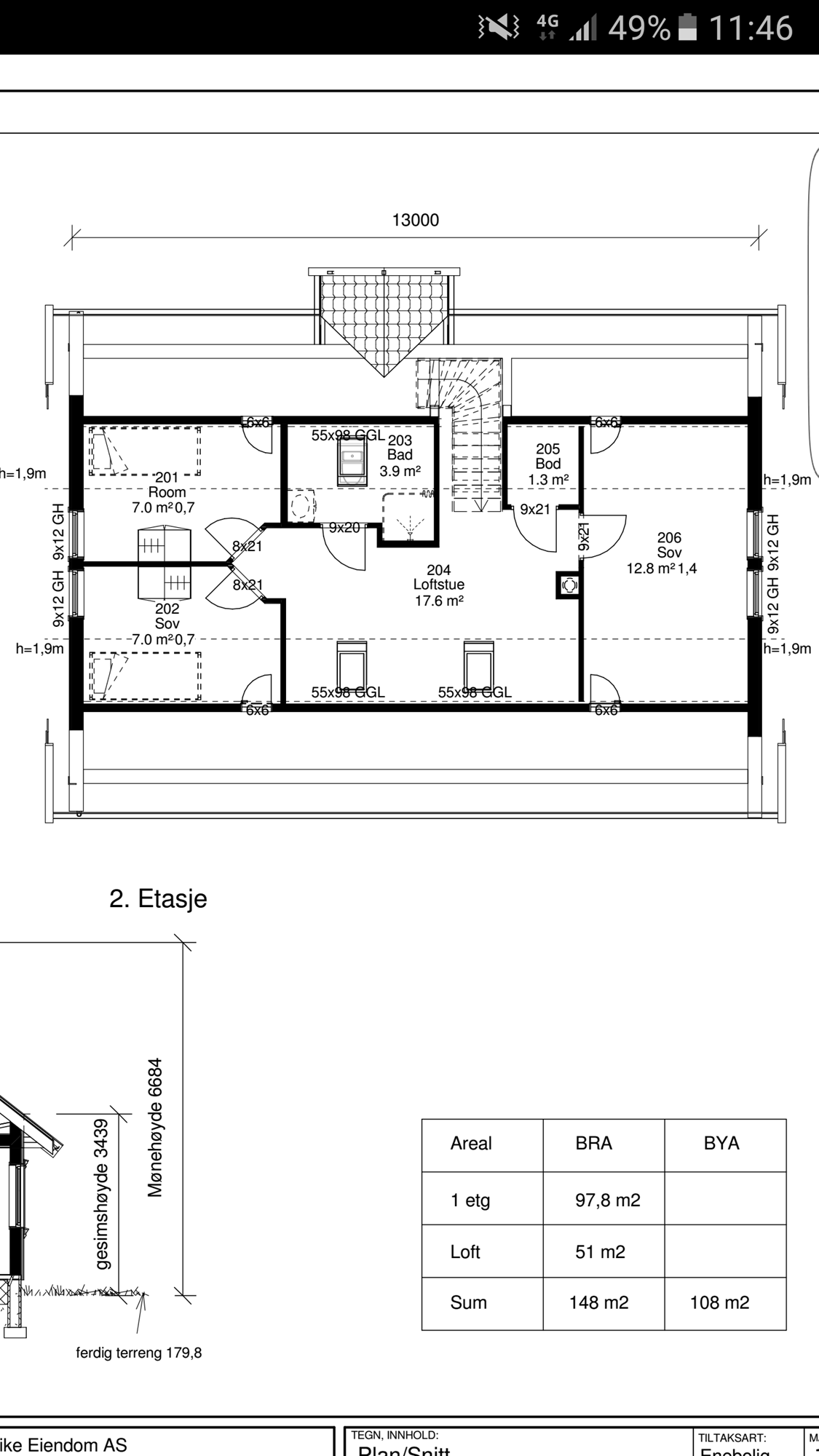
Jeg og min samboer har valgt å komme oss inn på boligmarkedet ved å bygge hus. Dette gjennom ett byggefirma som bruker Mesterhus som leverandør. Det er nøkkelferdig 1.etg, men uinnredet loft.
Spørsmålet er: Hvor mye vil det koste å gjøre ferdig loftet? Har to kamerater som tar snekkerarbeidet, men må ha elektriker osv. De to soverommene på venstre side skal bli til ett.
Jeg og min samboer har valgt å komme oss inn på boligmarkedet ved å bygge hus. Dette gjennom ett byggefirma som bruker Mesterhus som leverandør. Det er nøkkelferdig 1.etg, men uinnredet loft.
Spørsmålet er: Hvor mye vil det koste å gjøre ferdig loftet? Har to kamerater som tar snekkerarbeidet, men må ha elektriker osv. De to soverommene på venstre side skal bli til ett.

Dermed tipper jeg rundt 20' per m2 for deres del, avhengig av standard etc etc - egeninnsats.
.... 1 million virker da mye
Tekniker med verktøy.......Festool, Makita, Paslode
(gassverktøy med lav vekt), Millvaukee ....og litt til
Loftet er uinnredet, så alt må gjøres oppe. Gulv, isolasjon, vegger, tak osv. Jeg kan minimalt om dette og prøver bare å finne en ca. Kostnad på det materielle. Vi kan se bort i fra badet ettersom at dette er noe vi tar senere. Standarden skal være enkel. Smartpanel, ferdigmalte lister, samme med dører osv.
La forresten ut feil bildet i stad, så her kommer ett nytt.
- trapp, hvis det ikke er der allerede
- bad
- elektriker - inkl oppvarming, feks varmefolie
- ventilasjon - nytt bygg med tek krever nok balansert
- godkjent rømningsvei, ser ut som at du må ha stige?