302
4
2
Byggebudsjett - Moderne fjellhytte - 142 kvm
81
0
Hei,
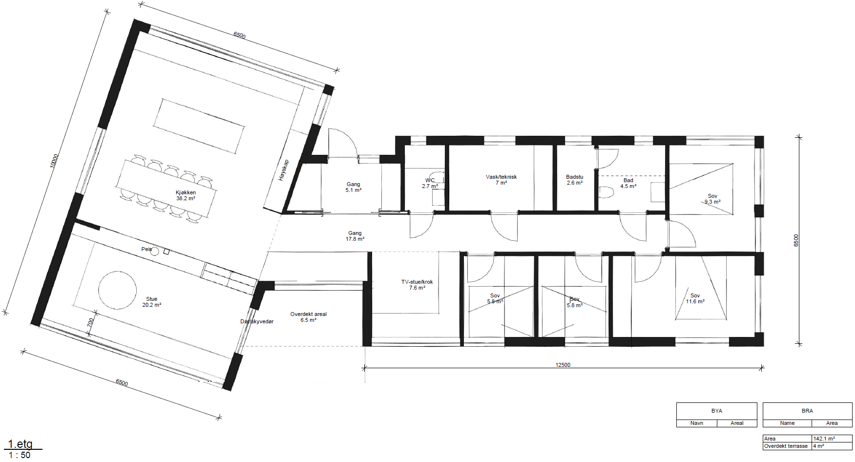
Vi er i fastfasen mht prosjektering av en moderne fjellhytte på omlag 142 kvm.

Vi har fått de første skissene fra arkitekt og vi syns det ser veldig lovende ut.
Nå forsøker vi legge opp et noenglunde realistisk budsjett (vi har selvsagt hatt et guesstimat tidligere).
Vi tenker jevnt over god standard men ingen overdådige løsninger.
Vi nevner:
Jeg har satt opp følgende budsjett (tomt er allerede kjøpt og inngår ikke).
Vann (boring etc) - 150.000 kr
Strøm (graving/tilkobling - 100.000 kr
Grunnarbeider (tomtearbeid) 300.000 kr
Infiltrasjonsanlegg - 150.000 kr
Sum grunnarbeider/infrastruktur : 700.000 kr
Rørlegger: 400.000 kr
Elektriker: 400.000 kr
Sum rørlegger/elektriker : 800.000 kr (mulig denne posten er for høy.)
Elbillader: 15.000 kr
Gebyrer: 70.000 kr
Plassbygdemøbler: 250.000 kr
Sum diverse: 335.000 kr
Entreprenør/Tømring: 2.500.000
Totalt: 4.335.000 kr
Er dette et realistisk estimat. Vi hadde håpet å havne rundt 4 mill (men det er vel vanskelig)
Vi er i fastfasen mht prosjektering av en moderne fjellhytte på omlag 142 kvm.

Vi har fått de første skissene fra arkitekt og vi syns det ser veldig lovende ut.
Nå forsøker vi legge opp et noenglunde realistisk budsjett (vi har selvsagt hatt et guesstimat tidligere).
Vi tenker jevnt over god standard men ingen overdådige løsninger.
Vi nevner:
- Gulvvarme i alle rom (fortrinnsvis vannbåren varme - fyrt med elkasset inntil videre)
- Kvistfri furupanel (innendørs)
- 1 stavs parkett eller et fornuftig gulv til en hytte.
- Flislagte bad og teknisk-rom/vaskerom
- Må bore etter vann (ikke noe kommunalt i området)
- Må ha egen kloakk (Infiltrasjonsanlegg eller mini-renseanlegg)
- Strøm/Fiber er rett i nærheten (10-15 meter ish)
- Peisovn (med innsyn fra to sider - stue/kjøkken) - stuen er trappesert ned 2 trinn.
Jeg har satt opp følgende budsjett (tomt er allerede kjøpt og inngår ikke).
Vann (boring etc) - 150.000 kr
Strøm (graving/tilkobling - 100.000 kr
Grunnarbeider (tomtearbeid) 300.000 kr
Infiltrasjonsanlegg - 150.000 kr
Sum grunnarbeider/infrastruktur : 700.000 kr
Rørlegger: 400.000 kr
Elektriker: 400.000 kr
Sum rørlegger/elektriker : 800.000 kr (mulig denne posten er for høy.)
Elbillader: 15.000 kr
Gebyrer: 70.000 kr
Plassbygdemøbler: 250.000 kr
Sum diverse: 335.000 kr
Entreprenør/Tømring: 2.500.000
Totalt: 4.335.000 kr
Er dette et realistisk estimat. Vi hadde håpet å havne rundt 4 mill (men det er vel vanskelig)
.Thag
trenger jo ikke å sette den i drift med en gang. må få iallefall hølet boret
Har solfangerene på huset også, det skal jeg definitivt ikke ha på hytta. Det har vært en kostbar affære..
har selv l-v pumpe. og skulle gentlig ønske jeg kunne tatt med råa med den ekstra store 100 lappen å boret energibrønn.
er sikkert mye å spare når bore-riggen alikevel står der og borer etter vann