7,094
8
0
Fjellstad: Bygge hus prisoverslag
10
Tromsø
0
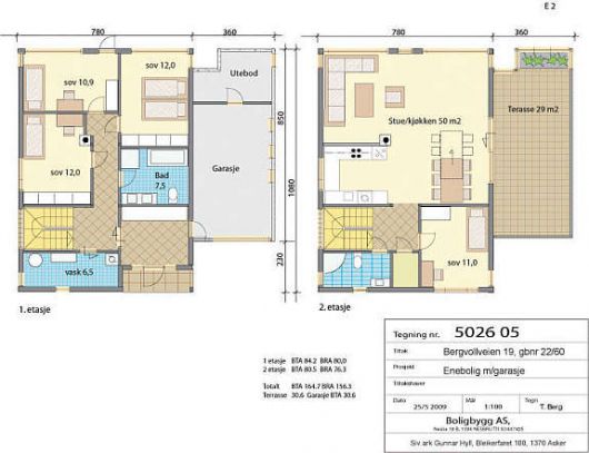
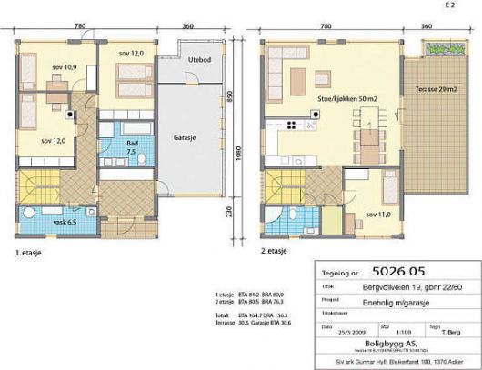
Hva syntes dere om dette huset:
http://www.finn.no/finn/realestate/plots/object?finnkode=24031644&sid=xz0681285055449974y
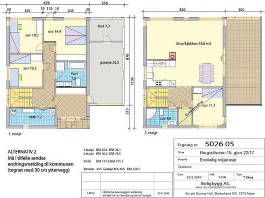
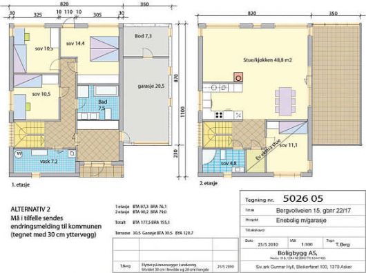
Er det mulig å få dette huset ferdig inklusiv tomt for 3 200 000,-?
Eller vil det koste oss mer?
http://www.finn.no/finn/realestate/plots/object?finnkode=24031644&sid=xz0681285055449974y
Er det mulig å få dette huset ferdig inklusiv tomt for 3 200 000,-?
Eller vil det koste oss mer?





Trolig er det mye som mangler også i "totalprisen" på 3,9, slik at endelig kostnad sikkert passerer 4 med glans (ferdig oppsatt)
Er det mulig å spare 800k på å hente priser på annbud og gjøre mye selv, ja trolig, men mange jokere i denne kort-stokken...
Lykke til
Incognito (Adm.dir i Premium Haus AS )
Selger lavenergihus fra Tyskland.
Jeg hadde håpet å kunne bygge et hus ferdig til maks kr. 3 400 000,- Hvis vi reduserer standarden litt, ikke bygger i økologisk massivtre og kutter ut vannbåren varme og gjenvinningsanlegg så kanskje vi klarer det... Vi får regne litt på det...
Takk for tilbakemelding uansett! Hvis noen flere har tilbakemeldinger så kom gjerne med de
Eg er veldig enig med Orrfuglen her.
Me kikker etter hus for tida, og da er det uaktuellt å kjøpe nyere hus uten vannbåren varme og balansert ventilasjon for vår del. Ser og helst at huset har sentralstøvsuger.
Gå inn her: http://www.holtebyggsafe.no/smartkalk.aspx og last ned programmet, da vil du få tilgang til et veldig godt program som du kan regne ut etter standard priser.
Om, du får en NS3459 fil eller om du er så heldig at erkitekt har tegnet i 3D og kan få en IFC fil, kan du laste inn denne filen og få gjort kalkulasjonen veldig fort.
De leverer 15 dg gratis prøvetid på programmet og dette er som regel nok av tid for en kalkulasjon. Hvis du har fått en ifc fil, vil du enkelt også kunne se bygget i 3D på skjermen og kunne klikke på bygningsdeler og finne priser på disse. (og forandre dem om ønskelig)
Jeg var veldig positivt overasket når jeg prøvde første gang.
Om ikke annet er det verdt å prøve.
Hvor langt har dere kommet i planleggingen?
Hilsen
Montasje AS
www.montasjeas.no
www.montasjeas.no
400 tusen koster vel rundt 1,500.- ekstra pr mnd. Skal ikke så mye til å bruke det ekstra i strøm pr mnd.