103
2
0
Innspill?? Bygge tyrolerhus - jotunheim B
3
0
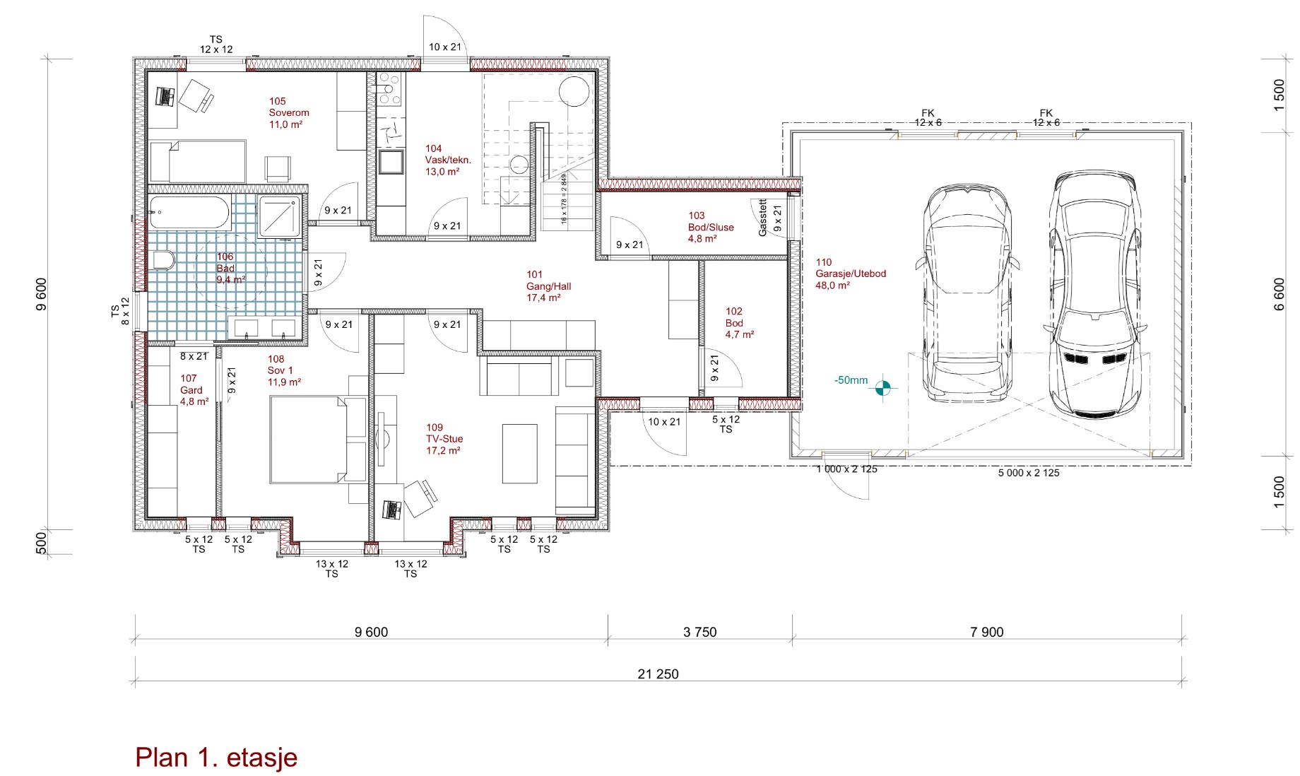
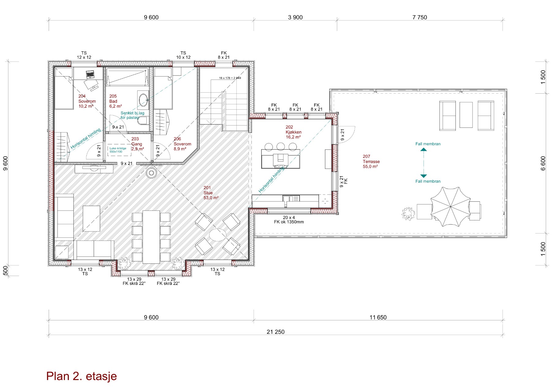
Hei. Me vurderer sterkt å bygge tyrolerhus, og har sett ein del på Jotunheim B. Men blir ikkje heilt enig om planløsning. Så håper å få nokon gode innspill her inne :D
- Ønsker meg vaskerom med garderoberom, der alle klær for heile familien er samla. Så me vurderer å bytte plassering av vaskerom og bad, og gjere garderoben større.
- Vil ha hovedsoverom i 2 etasje, og barna nede. (Ønsker ikkje å ha barnesoverom i tilknytning til stova)
Alt av forslag og tips mottas med takk! Er vårt første byggeprosjekt, så ønsker jo at alt skal klaffe på første forsøk ;)
- Ønsker meg vaskerom med garderoberom, der alle klær for heile familien er samla. Så me vurderer å bytte plassering av vaskerom og bad, og gjere garderoben større.
- Vil ha hovedsoverom i 2 etasje, og barna nede. (Ønsker ikkje å ha barnesoverom i tilknytning til stova)
Alt av forslag og tips mottas med takk! Er vårt første byggeprosjekt, så ønsker jo at alt skal klaffe på første forsøk ;)
Jenk
(trådstarter)
3
0

Jenk
(trådstarter)
3
0
