6,958    8    1  

Krav til tegninger ved endringsmelding

 519     0
Hei.

Har godkjent rammeløyve, og skal inn med en endringmelding da jeg ønsker større kjeller rom.
Huset blir uforandret utvendig, og det gjelder kun mer areal i kjelller under en del av huset.

Holder det med å sende inn tegning av kjellerplan, eller må jeg inn med full tegningspakke att(snitt, plan 1, plan 2, fasade etc)

Mvh
Husk dette under oppussing: Lagre kvitteringer, bilder og avtaler i Boligmappa. Logg inn her

   #1
 257     Sunnmøre     0
hva ville konsekvenser være av å sende inn for mye tegninger enn for lite:)

så hvorfor ikke sende inn alt, slik at de kan ignorere de som ikke teller, enn at de ber om de i etterkant og forsinker prosessen:)

bare en tankegang, og har på ingen måte noe kunnskap om det:)
Signatur
  (trådstarter)
   #2
 519     0
Tenkte det var unødvendig siden de har fått desse tegnigene(snitt, plan, fasde, terreng, etc)  i fbm rammeløyve, og de har ingen endringer. Endring gjelder kun kjeller under bakkenivå og ingen fasadendring.

mvh
   #3
 257     Sunnmøre     1
det er mye en tror er unødvendig, men en vet aldri med en kommune.

Ring til dem på teknisk etat, og spørr om de skal ha alt eller ikke, så får du svaret fra dem som faktisk skal behandle dette.
Signatur
  (trådstarter)
   #4
 519     0
Hei.

Kan jeg selv tegne desse endringen, eller må det gjøres av arkitekten?

Arkitekt skulle ha 3k for å tegne inn 3 vegger på plan 1. Synest det var mye.
Har lagt ved tidligere innsente tegning(org), og min reviderte tegn med de endringer som ønskes.  Kan min tegning nyttes. Er vel mulig å få den printet ut i 1:100 fra sketchup også.

Evt kan jeg bruke org.tegninger og tegne direkte inn på desse med rød penn, og så sende desse inn?

Mvh
Krav til tegninger ved endringsmelding - Org.jpg - innafør
Krav til tegninger ved endringsmelding - Revidert.jpg - innafør
   #5
 425     0
Det ser nå ut som du gjør vesentlig mer enn å bare sette opp 3 vegger. Det ser ut til at du flytter trapperom (har du kontrollert at dette stemmer oppe?), utvider kjeller som fører til økt BRA, lager kjeller hvor du i dag har plate på mark. Stemmer bærende vegger? Du bør også revidere snittet så det blir riktig. Du må også revidere betongtegningene og gravetegningene. Elektriker og rør må også revideres etter behov.

3K er ca 2-3 timers jobb. Er dette inkludert å sende inn endring til kommunen er det en ganske riktig pris.
  (trådstarter)
   #6
 519     0
Ikke inkludert endringmelding,

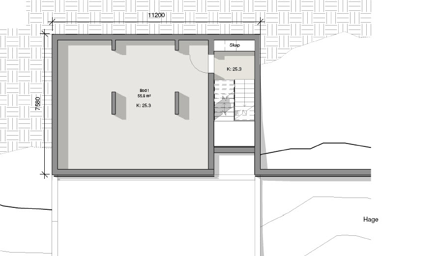
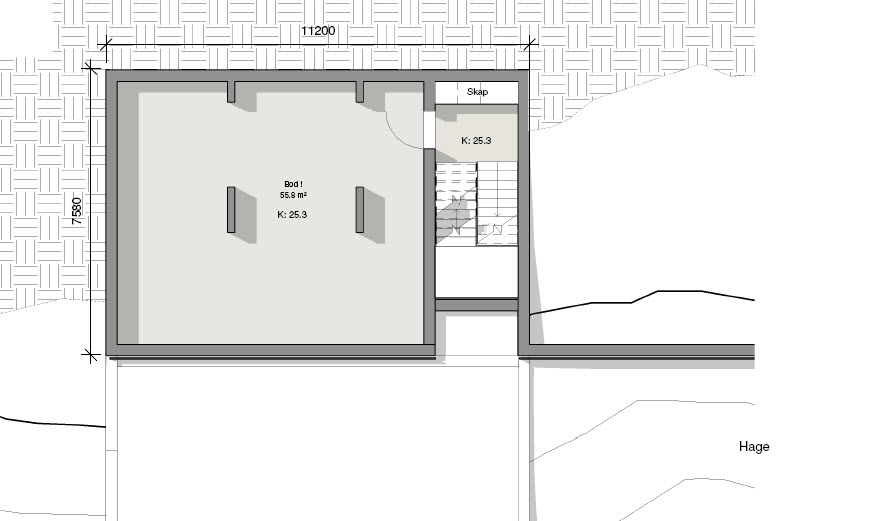
Ikke endret trappesjakt. Kun utvidet kjeller under hus. Gir økt BRA, derfor ednringsmelding.

Dette gjelder skisser og ingen detaljtegninger. Byggtegninger har jeg fått revidert fra min ansvarlig prosjekterende(byggingeniør) som ikke er arkitekten(ansvarlig søker).

Men mitt spm er om jeg kan nytte mine tegninger eller ikke?

mvh
   #7
 425     0
Jeg vet noen kommuner ikke aksepterer håndtegnede tegninger. Så du må nesten høre med kommunen. På revidert tegning bør det uansett komme tydelig fram hva som er nytt og hva som er gammelt.

  (trådstarter)
   #8
 519     0
Skal ta en sjekk med komunen. Har alle tegninger i sketchup, og bygging. har brukt desse for å beregne, og lage arb.tegninger til betong og trekonstr. Burde derfor også være gode nok for komunen, men hvem vet. :)

Har fått muntlig godkjening på denne endringen, så den er bare en formell søknad som må inn for registerering.  Vedl korrekt tegning som viser faktisk endring noe bedre.(trapp plassering er ikke helt korrekt)
Krav til tegninger ved endringsmelding - plan1.jpg - innafør