8,200    2    0  

Pris for innredning av kjeller / sokkelleilighet?

 6     0
Hei,

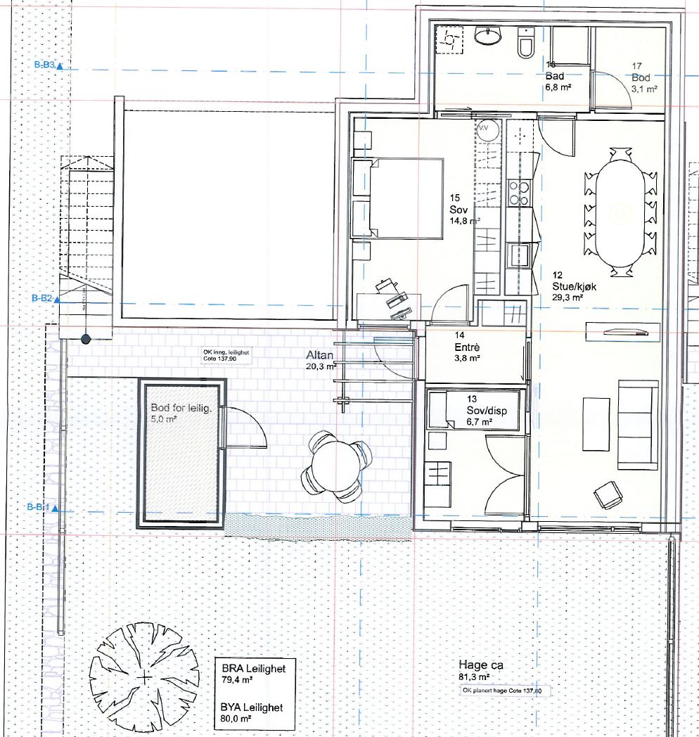
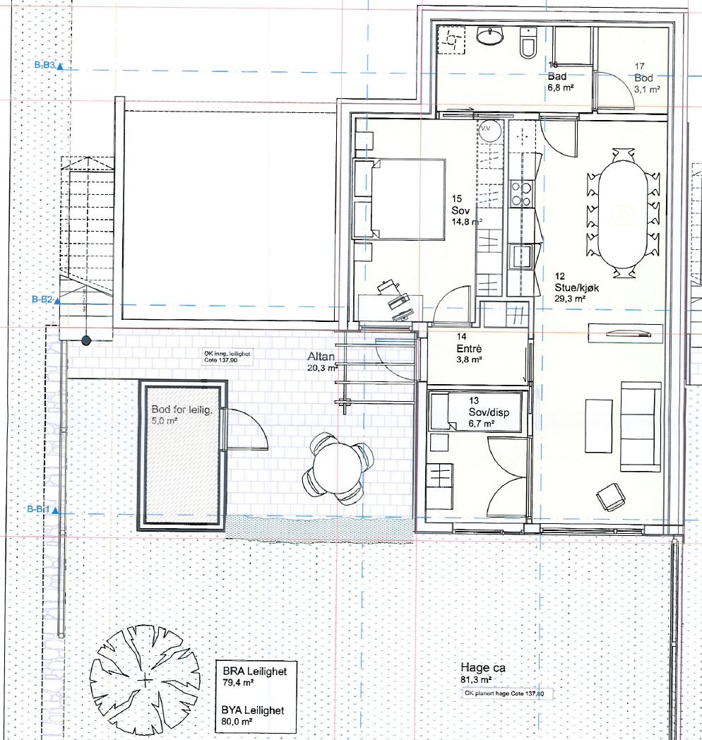
kjøpte prosjektert hus med uinnredet kjeller for utleieleilighet i Rogaland. 2 av etasjene blir gjort av byggefirma klar for maler.  Kjeller (79kvm BRA) blir bare betong på gulv/vegg himling (etasjeskille mellom hoved bolig og leil. blir betong), byggefirma skal bygge leilighet sånn, at det blir mulig å få godkjent leil. i kommunen (skal bygge 5 kvm ute bod for leilighet).

Jeg har opsjon for å få leilighet innredet av sammen byggefirma, og har fått pris for det. Lurer på om det er grei pris, eller jeg kan spare betydelig med å leie inn  annen firma for å innredde leil.?

Har er prisene:

- Innredet leilighet klar for maler (gips, dører og listverk) 130000 
(fått muntlig beskjed at det inkluderer balansert ventilasjon
og enkelt kjøkken fra HTH)

- Elektrikkeropplegg for leilighet 45 punkt + vk bad 91000
- Rørleggeropplegg for leilighet 63270
(inkludert helt enkelt utstyr for bad: dusj, vask, toalett.)

- Bad med fliser på vegg og gulv 74000



Maler arbeid og gulv jeg skal ta selv.
Hva tror dere om prisen?
bør jeg prøve med andre byggefirmaene, eller det er ganske greit pris?

Fordel med å innrede med sammen firma som bygger bolig, er det at jeg får kjeller leilighet nesten ferdig, og kan utleie ganske fort. Hvis det skal gjøres av en ande firma – jeg kan ikke begynne før overtakelsen.

Hvor land tid tar det fra betong til helt ferdig leilighet?

På forhånd takk for forslag og kommentarer!

Pris for innredning av kjeller / sokkelleilighet? - Leilighet.JPG - forpaulius
Husk dette under oppussing: Lagre kvitteringer, bilder og avtaler i Boligmappa. Logg inn her

   #1
 25,744     Akershus     0
Er det godkjent vindusareal i den leiligheten?
Signatur
  (trådstarter)
   #2
 6     0

Er det godkjent vindusareal i den leiligheten?


vet ikke om det, hus er bare på "papirene" nå. men det må godkjennes på en eller annen mote, siden di selger hus med godkjent leilighet. og di bygger rundt 10 helt like eneboliger i kjede, så jeg regner med at selve godkjenning blir ok, bare lurer på pris:) om det er verdt å begynne med andre byggefirmaene?