3,886
2
0
Vurderer Garasje og tilbygg, hvordan gå frem?
86
Lunner
0
Har idag et hus på 60 kvm i grunnflate, med full kjeller.
Har planer om å bygge en garasje ved siden av huset på ca. 60-70 kvm.
Oppå garasjen har jeg tenkt til å utvide eksisterende hus, slik at jeg får en grunnflate på ca. 110 kvm.
Kan man søke om dette uten å ha en ansvarlig søker, eller blir dette vanskelig? Er det lov?
Se gjerne på bildet under, og kom med kommentarer.
Huset skal bygges i 1 1/2 etasje.
Takker for alle svar!
Har planer om å bygge en garasje ved siden av huset på ca. 60-70 kvm.
Oppå garasjen har jeg tenkt til å utvide eksisterende hus, slik at jeg får en grunnflate på ca. 110 kvm.
Kan man søke om dette uten å ha en ansvarlig søker, eller blir dette vanskelig? Er det lov?
Se gjerne på bildet under, og kom med kommentarer.
Huset skal bygges i 1 1/2 etasje.
Takker for alle svar!

Videre informasjon er et småbruk, og saksbehandler i kommunen har gitt meg følgende "begrensninger" max 400 kvm i grunnflate, 8 m gesims og 9 mønehøyde.
Det jeg lurer på er om det er gjennomførbart.
Huset er idag 60 kvm, etter hva jeg har forstått kan man bygge på 50 uten ansvarlig søker?
da kan jeg i teori ha 110 kvm grunnflate.
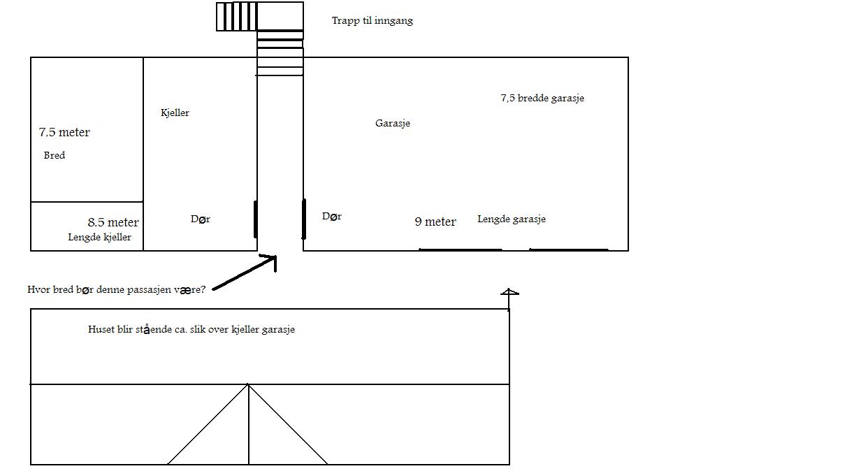
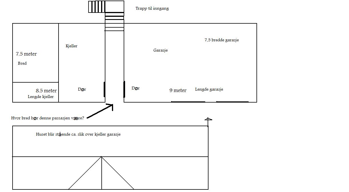
I tillegg vil jeg bygge en garasje i kjellernivå, men plassere den slik at jeg får en passasje mellom eksisterende hus og garasje, slik at jeg kan gå imellom til inngangsdøra.
Garasjen ved siden av kjelleren tenker jeg 60-70 kvm, for dobbeltgarasje pluss ekstra oppbevaring.
Det nærmeste med tanke på situasjonskart ligger vedlagt, tenker garasjen og utbygging av hus mot låven.